Bildegalleri

Ellen Celine Heireth v/EIE eiendomsmegling har gleden av å presentere Festningslia 7B!
Solgt
Påkostet og lekker tomannsbolig fra 2025 | Solfylt og flott utsikt | Vannbåren varme| Garasje | 5 års garanti!
Prisantydning6 790 000 kr
Nøkkelinfo
- Boligtype
- Tomannsbolig
- Eieform
- Selveier
- Soverom
- 3
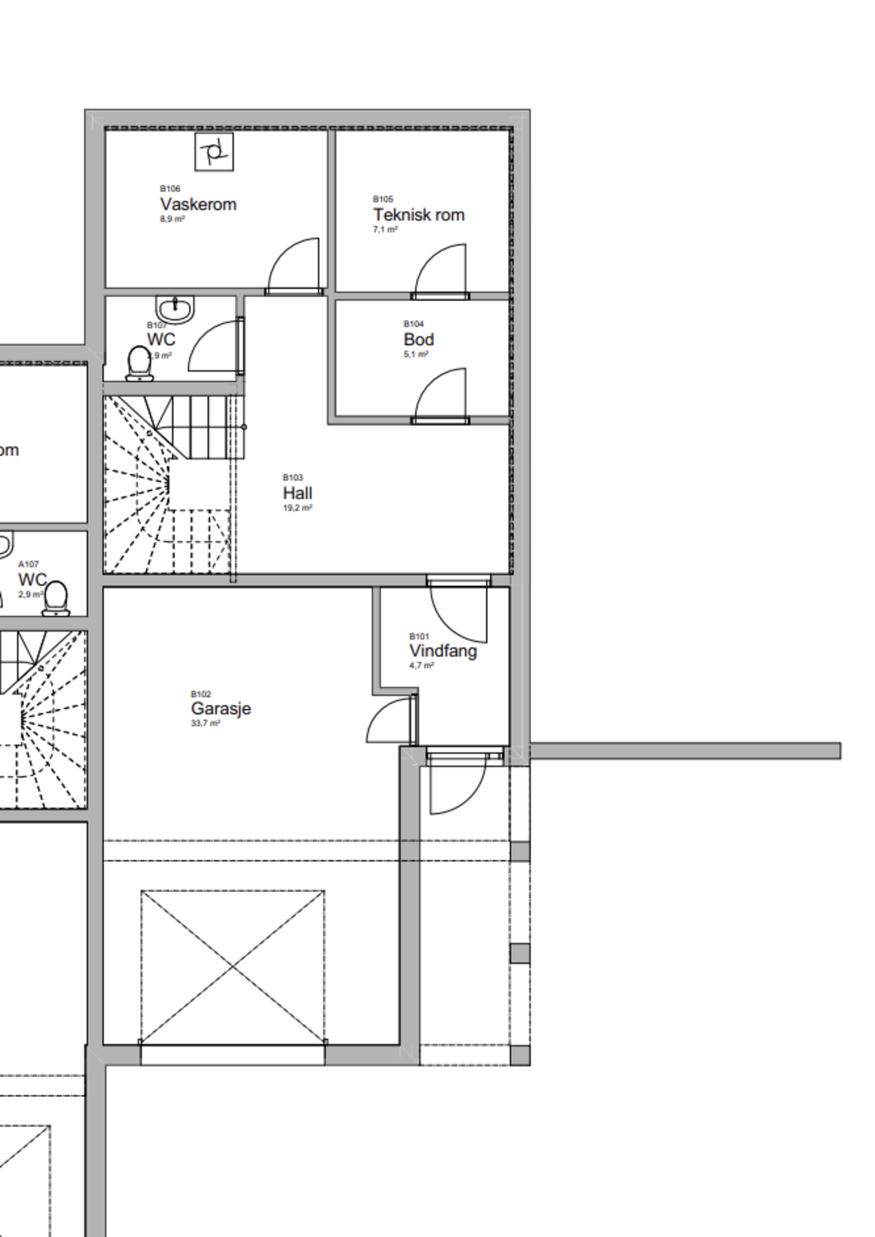
- Internt bruksareal
- 229 m² (BRA-i)
- Bruksareal
- 229 m²
- Balkong/Terrasse
- 52 m² (TBA)
- Etasje
- 3
- Byggeår
- 2025
- Energimerking
- B - Lysegrønn
- Rom
- 4
- Tomteareal
- 906 m² (eiet)
Fasiliteter
Barnevennlig
Balkong/Terrasse
Garasje/P-plass
Kabel-TV
Fiskemulighet
Offentlig vann/kloakk
Ingen gjenboere
Turterreng
Utsikt
Sentralt
Bredbåndstilknytning
Moderne
Rolig
Bademulighet
Lademulighet
Balansert ventilasjon
Om boligen
Ellen Celine Heireth v/EIE eiendomsmegling har gleden av å presentere Festningslia 7B!
En rålekker og ny halvpart av en tomannsbolig som ble ferdigstilt i mai 2025. Her kan du flytte rett inn uten å bekymre deg for vedlikehold og med 5 års nybygg garanti kan man virkelig senke skuldrene. Boligen ligger i et meget populært og nyere etablert boligområde på Bjørkelangen.
Høydepunkter:
En rålekker og ny halvpart av en tomannsbolig som ble ferdigstilt i mai 2025. Her kan du flytte rett inn uten å bekymre deg for vedlikehold og med 5 års nybygg garanti kan man virkelig senke skuldrene. Boligen ligger i et meget populært og nyere etablert boligområde på Bjørkelangen.
Høydepunkter:
- Påkostet, moderne og tidsriktig bolig.
- 5 års nybygg garanti.
- Vestvendt med kveldsol.
- Beliggende rolig til innerst i blindvei.
- Fantastisk utsikt over nærområdet.
- Energimerke grønn B (grønt lån).
- Gode og gjennomtenkte planløsninger.
- Vannbåren varme i alle rom.
- Her bor man med skogen som nærmeste nabo!
- Ekstra takhøyde i stue/kjøkken på ca. 2,65m.
- Vedlikeholdsfritt uteområde.
NB: Knappen for å vise hele beskrivelsen har kun en visuell effekt.
NB: Knappen for å vise hele beskrivelsen har kun en visuell effekt.
Salgsoppgaven beskriver vesentlig og lovpålagt informasjon om eiendommen
Se komplett salgsoppgaveNærområdet
EIE eiendomsmegling Lørenskog
Annonseinformasjon
| FINN-kode | 410941473 |
|---|---|
| Sist endret | 25. okt. 2025 13:34 |
| Referanse | 32250135 |
Annonsene kan være mangelfulle i forhold til lovpålagt opplysningsplikt. Før bindende avtale inngås oppfordres interessenter til å innhente komplett informasjon fra meglerforetaket, selger eller utleier.



























































