Bildegalleri

Slalåmbakken 7F presenteres av Krogsveen. Nye baderomsmøbler og nytt sanitærutstyr ble installert i 2020.
Slalåmbakken
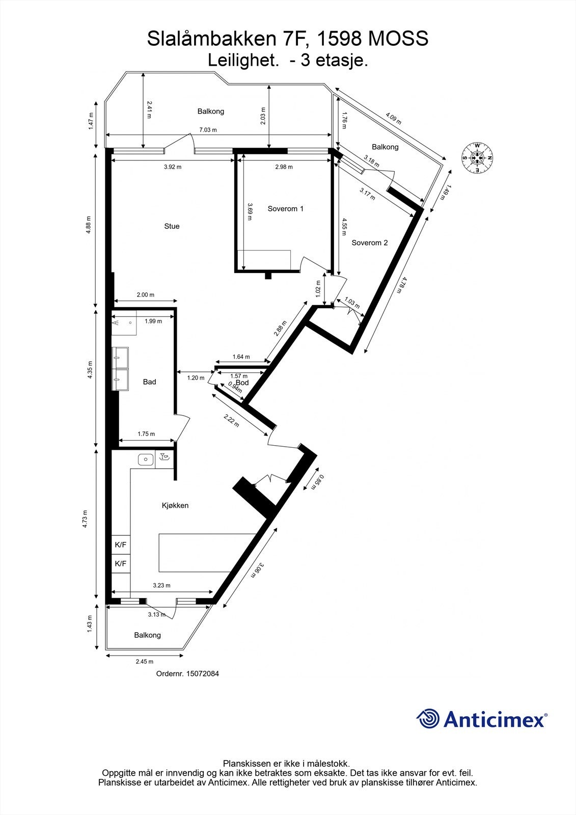
Gjennomgående 3-roms hjørneleilighet med 3 balkonger og flott utsikt. Kjøkken og stort bad fra 2020. Mulighet for 3 sov.
Prisantydning3 200 000 kr
Nøkkelinfo
- Boligtype
- Leilighet
- Eieform
- Andel
- Soverom
- 2
- Internt bruksareal
- 95 m² (BRA-i)
- Bruksareal
- 98 m²
- Eksternt bruksareal
- 3 m² (BRA-e)
- Balkong/Terrasse
- 25 m² (TBA)
- Etasje
- 3
- Byggeår
- 1970
- Rom
- 3
- Tomteareal
- 127 582 m² (eiet)
Fasiliteter
Balkong/Terrasse
Barnevennlig
Bredbåndstilknytning
Golfbane
Kabel-TV
Offentlig vann/kloakk
Rolig
Sentralt
Utsikt
Vaktmester-/vektertjeneste
Bademulighet
Fiskemulighet
Turterreng
Lademulighet
Visning
Privatvisninger avtales fortløpende - Kontakt megler!
For å delta på visning, ber vi om at du melder deg på. Da sikrer vi at du får nødvendig informasjon og at det er satt av tilstrekkelig med tid. Kontakt megler dersom annet tidspunkt ønskes.
Husk å lese salgsoppgaven før visningen, så du stiller forberedt. NB. Visning utgår dersom det ikke er noen påmeldte.
Ønsker du kun å bli holdt orientert, kan du fra eiendommens hjemmeside få varsel om solgtpris, eller kontakte megler.
VisningspåmeldingOm boligen
Stor, gjennomgående tre-roms med åpen og luftig planløsning
- Innsynsfri og usjenert i tredje etasje, med vidstrakt utsikt over landskapet i vest
- To balkonger med sol fra tidlig ettermiddag til sen kveld sommerstid
- Kjøkkenbalkong med morgen- og formiddagssol, ypperlig for kaffe og helgefrokost
- Tidsaktuell standard etter oppussing og modernisering i senere år
- Kjøkken utvidet og oppgradert med ny Epoq innredning i 2020
- Stort og lekkert bad, renovert i 2020
- To soverom - et tredje kan skilles ut fra kjøkkenet
- Turvei til Mossemarka fra nabolaget
- Sykkelavstand til Moss sentrum
- Tilbaketrukket i luftige og fredelige omgivelser
- Kort vei til E6 - ca. 40min. til Oslo
NB: Knappen for å vise hele beskrivelsen har kun en visuell effekt.
NB: Knappen for å vise hele beskrivelsen har kun en visuell effekt.
Salgsoppgaven beskriver vesentlig og lovpålagt informasjon om eiendommen
Se komplett salgsoppgaveNyttige lenker
Nærområdet
Krogsveen Moss
Velkommen til en enklere boligreise.
Annonseinformasjon
| FINN-kode | 410923806 |
|---|---|
| Sist endret | 08. des. 2025 14:02 |
| Referanse | KR30.2594 |
Annonsene kan være mangelfulle i forhold til lovpålagt opplysningsplikt. Før bindende avtale inngås oppfordres interessenter til å innhente komplett informasjon fra meglerforetaket, selger eller utleier.




























