Bildegalleri

Velkommen til Heimdalsgata 37, presentert av Schala & Partners ved Henrik Jensen, tlf. 996 92 427.
Moderne og gjennomført 2-roms med innglasset balkong | Kjøkken fra 2020 | Bad fra 2024 | Heis | Varmtvann inkl.
Nøkkelinfo
- Boligtype
- Leilighet
- Eieform
- Andel
- Soverom
- 1
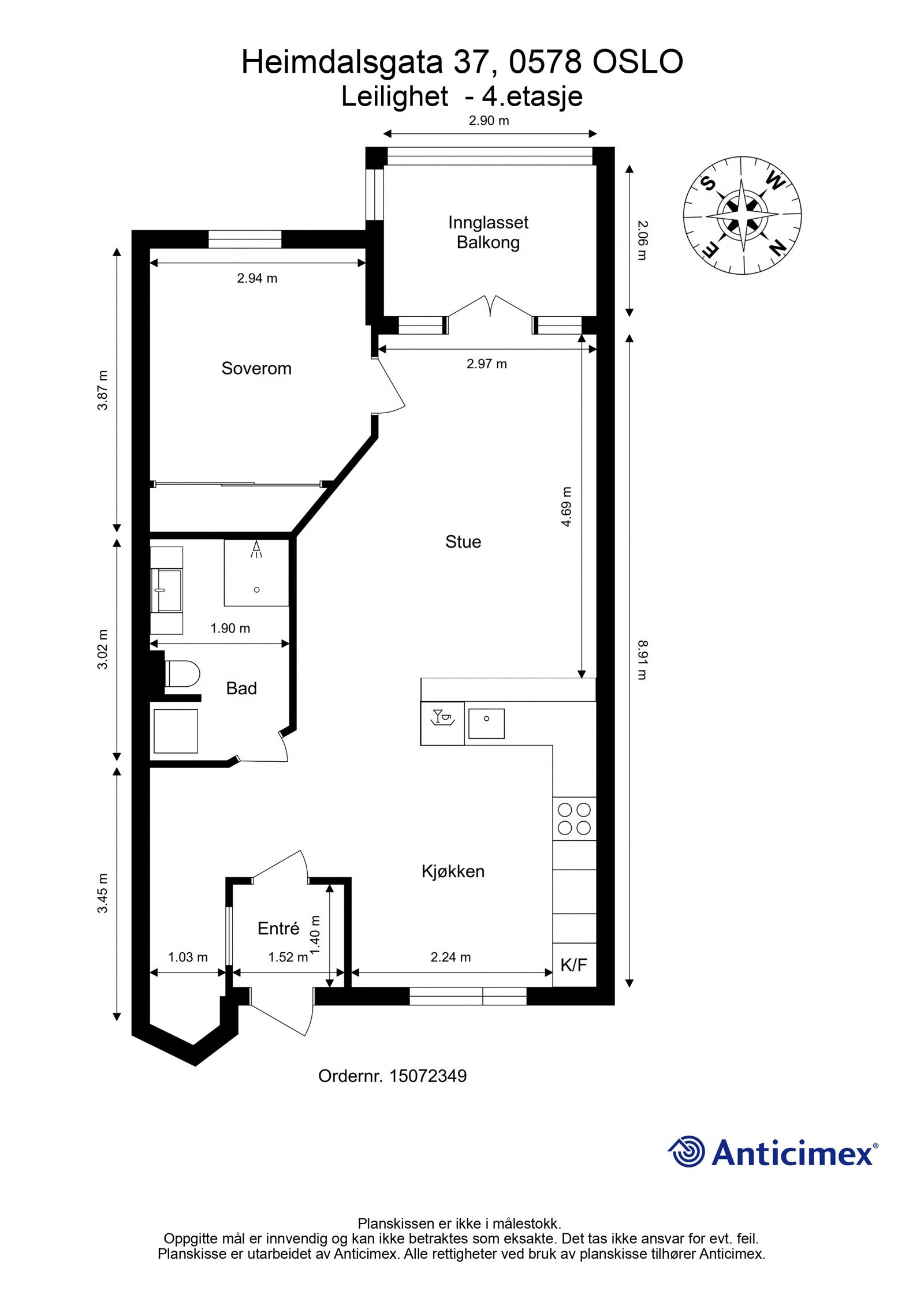
- Internt bruksareal
- 58 m² (BRA-i)
- Bruksareal
- 70 m²
- Eksternt bruksareal
- 6 m² (BRA-e)
- Innglasset balkong
- 6 m² (BRA-b)
- Etasje
- 4
- Byggeår
- 1988
- Energimerking
- E - Rød
- Rom
- 2
- Tomteareal
- 399 m² (eiet)
Fasiliteter
Om boligen
Velkommen til en moderne og gjennomført 2-R midt i hjertet av Oslo - perfekt for deg som vil bo sentralt og urbant. Leiligheten ligger i 4. etg og har en luftig, åpen planløsning med gjennomlys fra begge sider, samt en stor, innglasset balkong som fungerer som en forlengelse av stuen store deler av året. Leiligheten har blitt oppgradert med nytt kjøkken som er lekkert og funksjonelt, og nytt bad med varmekabler og smarte løsninger. Dette er et hjem med særpreg, funksjonalitet og komfort, pakket inn i en livlig og sjarmerende bygård.
- Sydvestvendt innglasset balkong på 6m²
- Nye vinduer
- Kjøkken fra 2020
- Bad fra 2024
- Parkettgulv fra 2019
- Oppgardert balkong i 2021
- Varmtvann inkl.
- Kjellerbod på 6m²
- Få minutter til T-bane på Tøyen og Grønland
- Kort vei til Botanisk hage, Tøyenparken, Tøyen Torg og Tøyenbadet
Salgsoppgaven beskriver vesentlig og lovpålagt informasjon om eiendommen
Se komplett salgsoppgaveNyttige lenker
Nærområdet
Schala & Partners Bjørvika/Gamle Oslo
Prisstatistikk
Heimdalsgata 37
på annonsen
prisantydning per kvadratmeter
Prisfordeling
Pris per m² ligger 10 341 kr under snittet for leiligheter i Gamle Oslo.
Grafen viser antall leiligheter solgt i Gamle Oslo siste året fordelt på pris per m² - totalt 2 065 leiligheter
Antall boliger
Kvadratmeterpris tilsvarer prisantydning pluss fellesgjeld per kvadratmeter (p-rom eller BRA-i). Prisene i grafen er avrundet til nærmeste 1000 kr.
Annonseinformasjon
| FINN-kode | 410836112 |
|---|---|
| Sist endret | 21. juni 2025 18:49 |
| Referanse | 55250090 |
Annonsene kan være mangelfulle i forhold til lovpålagt opplysningsplikt. Før bindende avtale inngås oppfordres interessenter til å innhente komplett informasjon fra meglerforetaket, selger eller utleier.




























