Bildegalleri

- Velkommen til Ortuflaten 76! -
Solgt
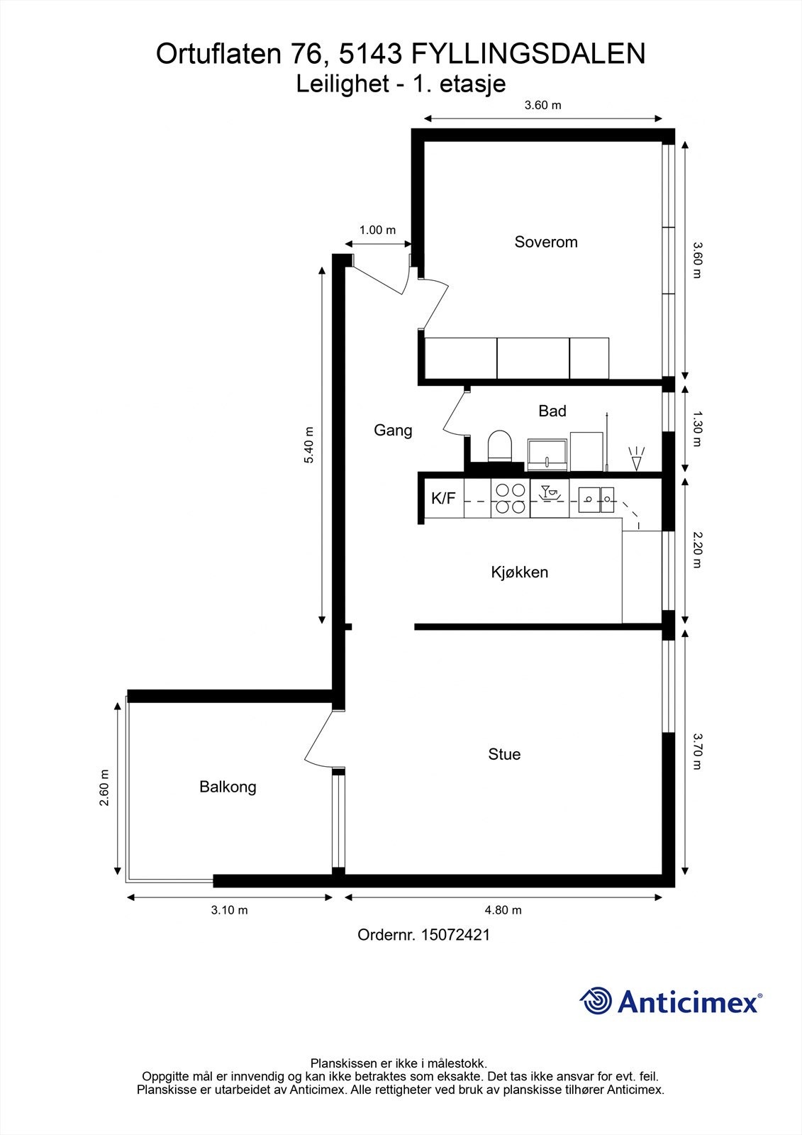
Lekker og lys 2-roms hjørneleilighet i høy 1. etasje. Gjennomgående god standard, bad fra 2024 og kjøkken fra 2018.
Prisantydning2 790 000 kr
Nøkkelinfo
- Boligtype
- Leilighet
- Eieform
- Andel
- Soverom
- 1
- Internt bruksareal
- 53 m² (BRA-i)
- Bruksareal
- 59 m²
- Eksternt bruksareal
- 6 m² (BRA-e)
- Balkong/Terrasse
- 8 m² (TBA)
- Etasje
- 1
- Byggeår
- 1970
- Energimerking
- F - Mørkegrønn
- Rom
- 2
- Tomteareal
- 79 525 m² (eiet)
Fasiliteter
Balkong/Terrasse
Barnevennlig
Kabel-TV
Offentlig vann/kloakk
Rolig
Sentralt
Utsikt
Turterreng
Om boligen
Velkommen til denne romslige 2-roms leiligheten i Ortuflaten 76! En meget sentral leilighet med populær beliggenhet i Fyllingsdalen - nært alt man trenger i hverdagen! Leiligheten har en vestvendt beliggenhet
Høydepunkter:
Høydepunkter:
- Nytt bad oppgradert 2024 av brl.
- Solrik, vestvendt balkong
- Delvis åpen kjøkkenløsning
- Tidløs IKEA kjøkkeninnredning fra 2018
- Gjennomgående oppussede overflater i leiligheten
- Ingen dokumentavgift
- Attraktiv beliggenhet i Fyllingsdalen med nærhet til flotte turområder
- Gode bussforbindelser, samt skoler, barnehager, idrettsanlegg og butikker m.m.
- Oasen/bybane innen gåavstand
NB: Knappen for å vise hele beskrivelsen har kun en visuell effekt.
NB: Knappen for å vise hele beskrivelsen har kun en visuell effekt.
Salgsoppgaven beskriver vesentlig og lovpålagt informasjon om eiendommen
Se komplett salgsoppgaveNyttige lenker
Nærområdet
Krogsveen Fyllingsdalen
Verdien av en god megler.
Annonseinformasjon
| FINN-kode | 410779344 |
|---|---|
| Sist endret | 18. aug. 2025 13:30 |
| Referanse | KR70.2569 |
Annonsene kan være mangelfulle i forhold til lovpålagt opplysningsplikt. Før bindende avtale inngås oppfordres interessenter til å innhente komplett informasjon fra meglerforetaket, selger eller utleier.
























