Bildegalleri

EiendomsMegler 1 v/Adrian Stokstad har gleden av å presentere Gøteborggata 31 C!
Lys og moderne 2-roms leilighet i 4. etg | Vestvendt balkong | Heis | Parkering m/elbillader | Sentralt og attraktivt
Nøkkelinfo
- Boligtype
- Leilighet
- Eieform
- Andel
- Soverom
- 1
- Internt bruksareal
- 55 m² (BRA-i)
- Bruksareal
- 59 m²
- Eksternt bruksareal
- 4 m² (BRA-e)
- Balkong/Terrasse
- 7 m² (TBA)
- Etasje
- 4
- Byggeår
- 2000
- Energimerking
- D - Rød
- Rom
- 2
- Tomteareal
- 1 337 m² (eiet)
Fasiliteter
Om boligen
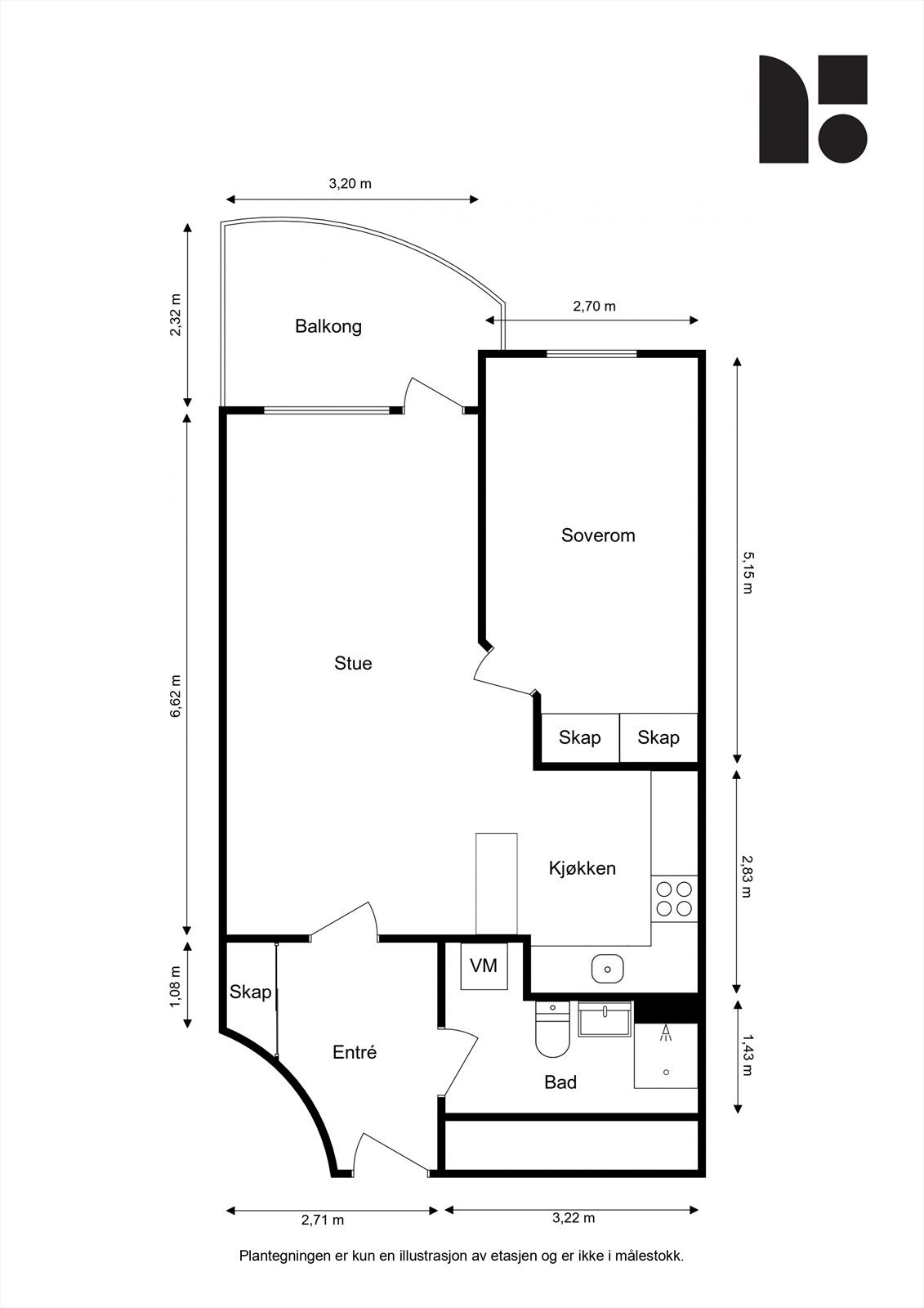
Dette er en lys og pen 2-roms leilighet som ligger fint til i byggets 4. etasje. Leiligheten har en innbydende entré, en åpen løsning mellom stue og kjøkken, et praktisk bad og et behagelig soverom. Her bor du svært sentralt i Oslo, og det er kort vei til trikk fra Birkelunden, buss fra Dælenenga og T-bane fra Carl Berner. Også flere fine turmuligheter.
Kort fortalt:
- Åpen og sosial planløsning
- Pent KVIK-kjøkken fra 2016
- Vestvendt balkong på 7m²
- Internett&tv inkl i månedlig felleskostnad
- Garasjeplass m/elbillader
- Loftsbod på 4m² (7m² GUA)
- IN-ordning: Ved innbetaling av 110 000,- av fellesgjeld vil felleskost pr mnd bli kr: 3 789,-
- Nærhet til vakre parker, treningssentre og flere servicetilbud
Salgsoppgaven beskriver vesentlig og lovpålagt informasjon om eiendommen
Se komplett salgsoppgaveNyttige lenker
Nærområdet
EiendomsMegler 1 Stovner
Prisstatistikk
Gøteborggata 31 C
på annonsen
prisantydning per kvadratmeter
Prisfordeling
Pris per m² ligger 4 110 kr under snittet for leiligheter i Grünerløkka - Sofienberg.
Grafen viser antall leiligheter solgt i Grünerløkka - Sofienberg siste året fordelt på pris per m² - totalt 2 419 leiligheter
Antall boliger
Kvadratmeterpris tilsvarer prisantydning pluss fellesgjeld per kvadratmeter (p-rom eller BRA-i). Prisene i grafen er avrundet til nærmeste 1000 kr.
Annonseinformasjon
| FINN-kode | 410283749 |
|---|---|
| Sist endret | 13. sep. 2025 14:04 |
| Referanse | 3286250295 |
Annonsene kan være mangelfulle i forhold til lovpålagt opplysningsplikt. Før bindende avtale inngås oppfordres interessenter til å innhente komplett informasjon fra meglerforetaket, selger eller utleier.






































