Bildegalleri

Eiendomsmegler Norge ved Elida Waage har stor glede av å presentere denne perlen!
Solgt
Austevollshella
RÅLEKKER ENEBOLIG MED FANTASTISK BELIGGENHET PÅ AUSTEVOLLSHELLA | NYDELIG UTSIKT + GODE SOLFORHOLD | STOR HAGE | GARASJE
Prisantydning7 650 000 kr
Nøkkelinfo
- Boligtype
- Enebolig
- Eieform
- Selveier
- Soverom
- 5
- Internt bruksareal
- 254 m² (BRA-i)
- Bruksareal
- 287 m²
- Eksternt bruksareal
- 33 m² (BRA-e)
- Balkong/Terrasse
- 110 m² (TBA)
- Byggeår
- 1912
- Energimerking
- B - Oransje
- Rom
- 6
- Tomteareal
- 1 293 m² (eiet)
Fasiliteter
Balkong/Terrasse
Barnevennlig
Garasje/P-plass
Hage
Kjæledyr tillatt
Ingen gjenboere
Offentlig vann/kloakk
Peis/Ildsted
Rolig
Sentralt
Utsikt
Turterreng
Balansert ventilasjon
Om boligen
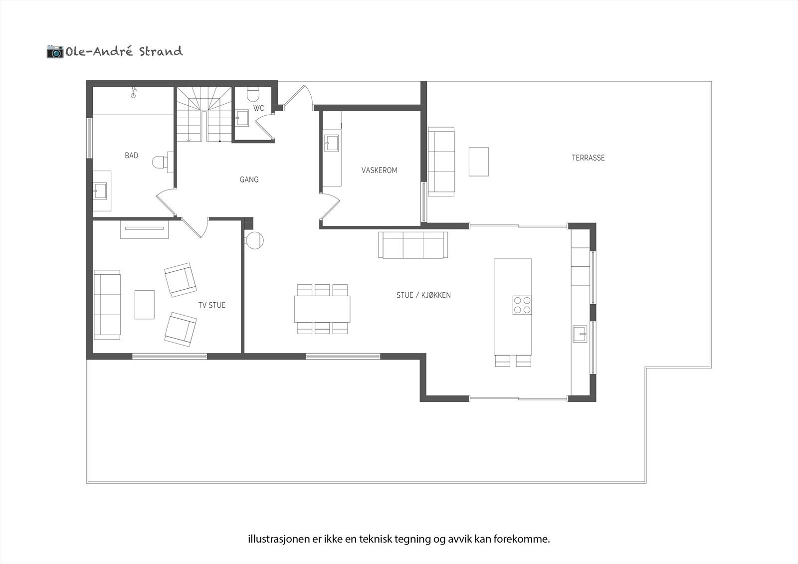
Eiendomsmegler Norge ved Elida Waage har stor glede av å presentere Austevollshellevegen 17! Sjelden mulighet! Fantastisk boligvilla + frittstående garasje med svært attraktiv beliggenhet i etablert boligstrøk på Hundvåkøy. Huset har en høy & fri plassering, med upåklagelig utsikt mot nærområde, sjø og fjell. Boligen har gjennomgått vesentlig renovering, og fikk ferdigattest på ombygging i 2024.
Høydepunkter:
- Alle rom i hoved- og loftetasjen pusset opp mellom 2022 og 2024.
- Gjennomgående eksklusive og påkostede kvaliteter.
- Hele 5 godkjente soverom, 2 komplette baderom og toalettrom.
- Flotte utearealer, med hele 110kvm altan/terrasse.
- Knappe 5-6 minutter til Storebø m/bl.a. dagligvarebutikker, skoler og barnehage.
Velkommen til visning mandag 14.juli kl. 17:15. Husk påmelding.
Høydepunkter:
- Alle rom i hoved- og loftetasjen pusset opp mellom 2022 og 2024.
- Gjennomgående eksklusive og påkostede kvaliteter.
- Hele 5 godkjente soverom, 2 komplette baderom og toalettrom.
- Flotte utearealer, med hele 110kvm altan/terrasse.
- Knappe 5-6 minutter til Storebø m/bl.a. dagligvarebutikker, skoler og barnehage.
Velkommen til visning mandag 14.juli kl. 17:15. Husk påmelding.
NB: Knappen for å vise hele beskrivelsen har kun en visuell effekt.
NB: Knappen for å vise hele beskrivelsen har kun en visuell effekt.
Salgsoppgaven beskriver vesentlig og lovpålagt informasjon om eiendommen
Se komplett salgsoppgaveNyttige lenker
Nærområdet
Eiendomsmegler Norge Bergen Sentrum
Best der du bor
Annonsene kan være mangelfulle i forhold til lovpålagt opplysningsplikt. Før bindende avtale inngås oppfordres interessenter til å innhente komplett informasjon fra meglerforetaket, selger eller utleier.





















































