Bildegalleri

objpict_1376137586439115_0.jpg
Ølen
Innholdsrik enebolig fra 2011 - Garasje - Fin utsikt - Pent opparbeidet tomt
Prisantydning3 290 000 kr
Nøkkelinfo
- Boligtype
- Enebolig
- Eieform
- Selveier
- Soverom
- 4
- Internt bruksareal
- 183 m² (BRA-i)
- Bruksareal
- 208 m²
- Eksternt bruksareal
- 25 m² (BRA-e)
- Balkong/Terrasse
- 38 m² (TBA)
- Byggeår
- 2011
- Energimerking
- C - Oransje
- Rom
- 5
- Tomteareal
- 1 262 m² (eiet)
Fasiliteter
Balkong/Terrasse
Barnevennlig
Garasje/P-plass
Hage
Peis/Ildsted
Rolig
Utsikt
Turterreng
Visning
Ønsker du å delta på visningen ber vi deg melde deg på slik at vi vet at du kommer. Da kan vi bistå alle best mulig og gi deg tiden du trenger på visningen. Kontakt gjerne megler før visning hvis du har spørsmål. Visningen avholdes bare dersom det er påmeldte. Hvis det ikke er oppsatt visningstidspunkt eller tidspunkt ikke passer, kontakt megler.
VisningspåmeldingOm boligen
Populært beliggende boligeiendom med nydelig utsikt. Usjenert beliggenhet med lekeplass like ved. Kort avstand til skole, barnehage og sentrum med dens fasiliteter. Nyere turløype i umiddelbar nærhet.
I tillegg til garasje er det meget god parkering i eget asfaltert gårdsrom. Ellers er tomten pent opparbeidet og beplantet, samt noe naturtomt.
Boligen inneholder:
Underetasje P-rom: gang, entrè, soverom, bad. S-rom: garasje, teknisk rom.
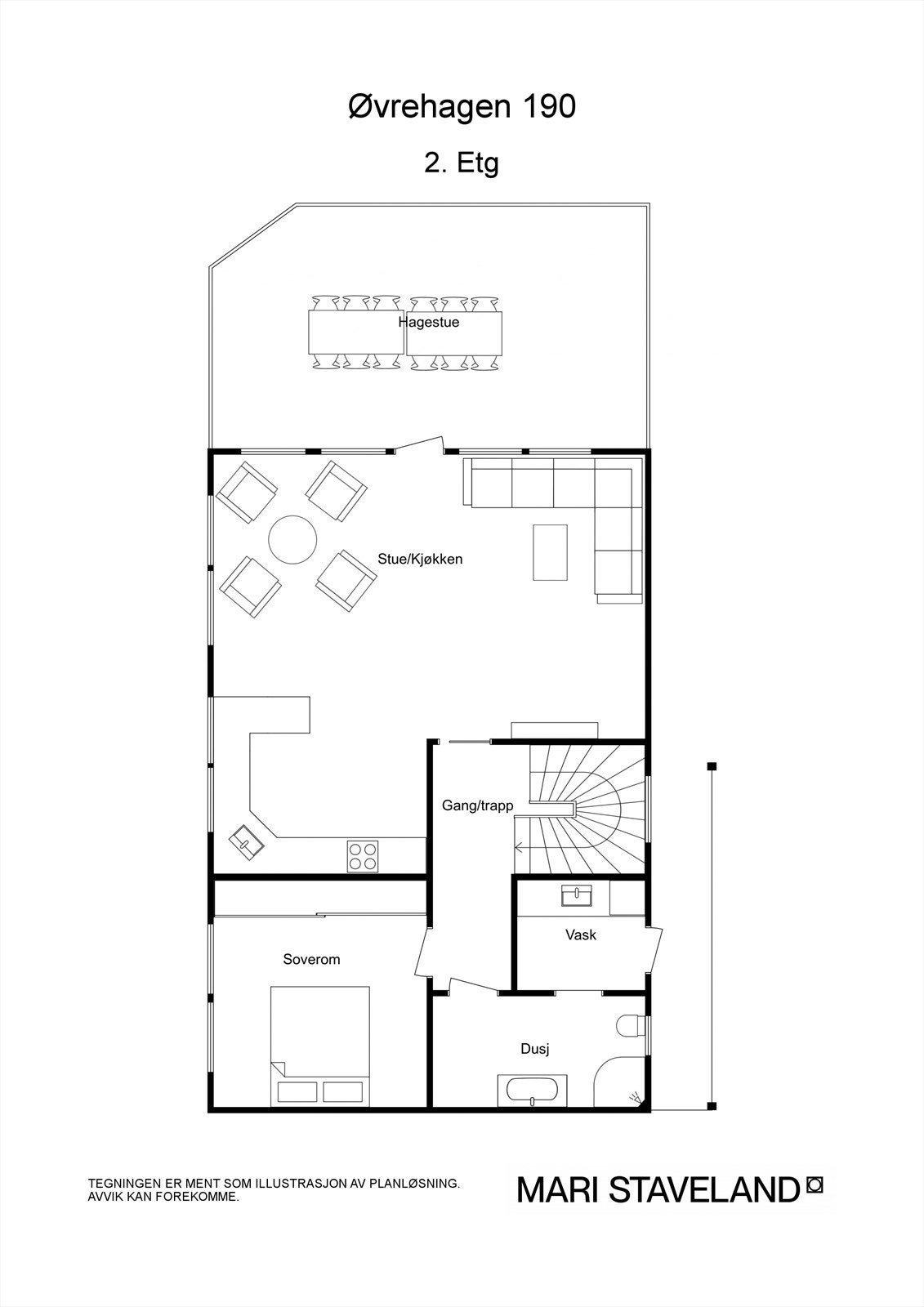
1. etasje P-rom: stue/kjøkken, stue, bad, vaskerom, soverom, gang.
Loft P-rom: 2 soverom og rom brukt som soverom, bad, gang. S-rom: bod.
I tillegg til garasje er det meget god parkering i eget asfaltert gårdsrom. Ellers er tomten pent opparbeidet og beplantet, samt noe naturtomt.
Boligen inneholder:
Underetasje P-rom: gang, entrè, soverom, bad. S-rom: garasje, teknisk rom.
1. etasje P-rom: stue/kjøkken, stue, bad, vaskerom, soverom, gang.
Loft P-rom: 2 soverom og rom brukt som soverom, bad, gang. S-rom: bod.
NB: Knappen for å vise hele beskrivelsen har kun en visuell effekt.
NB: Knappen for å vise hele beskrivelsen har kun en visuell effekt.
Salgsoppgaven beskriver vesentlig og lovpålagt informasjon om eiendommen
Se komplett salgsoppgaveNyttige lenker
Nærområdet
Eiendomsmegler 1 avd Tysvær
En del av Sparebank 1 Sør-Norge
Annonseinformasjon
| FINN-kode | 410098126 |
|---|---|
| Sist endret | 27. feb. 2026 07:15 |
| Referanse | 2503250086 |
Annonsene kan være mangelfulle i forhold til lovpålagt opplysningsplikt. Før bindende avtale inngås oppfordres interessenter til å innhente komplett informasjon fra meglerforetaket, selger eller utleier.

























































