Bildegalleri

Nordvik avd. Frogner har gleden av å presentere Setra vei 22b.
Holmenkollen
Nybygget, unik og eksklusiv enebolig tegnet av LOGG arkitekter. Fantastisk utsikt. Gode solforhold. Dobbelgarasje.
Prisantydning42 750 000 kr
Nøkkelinfo
- Boligtype
- Enebolig
- Eieform
- Eier (Selveier)
- Soverom
- 5
- Internt bruksareal
- 223 m² (BRA-i)
- Bruksareal
- 294 m²
- Eksternt bruksareal
- 71 m² (BRA-e)
- Balkong/Terrasse
- 16 m² (TBA)
- Byggeår
- 2025
- Energimerking
- B - Mørkegrønn
- Rom
- 6
- Tomteareal
- 1 295 m² (eiet)
Fasiliteter
Balkong/Terrasse
Barnevennlig
Bredbåndstilknytning
Garasje/P-plass
Hage
Kjæledyr tillatt
Ingen gjenboere
Offentlig vann/kloakk
Parkett
Peis/Ildsted
Rolig
Utsikt
Turterreng
Lademulighet
Balansert ventilasjon
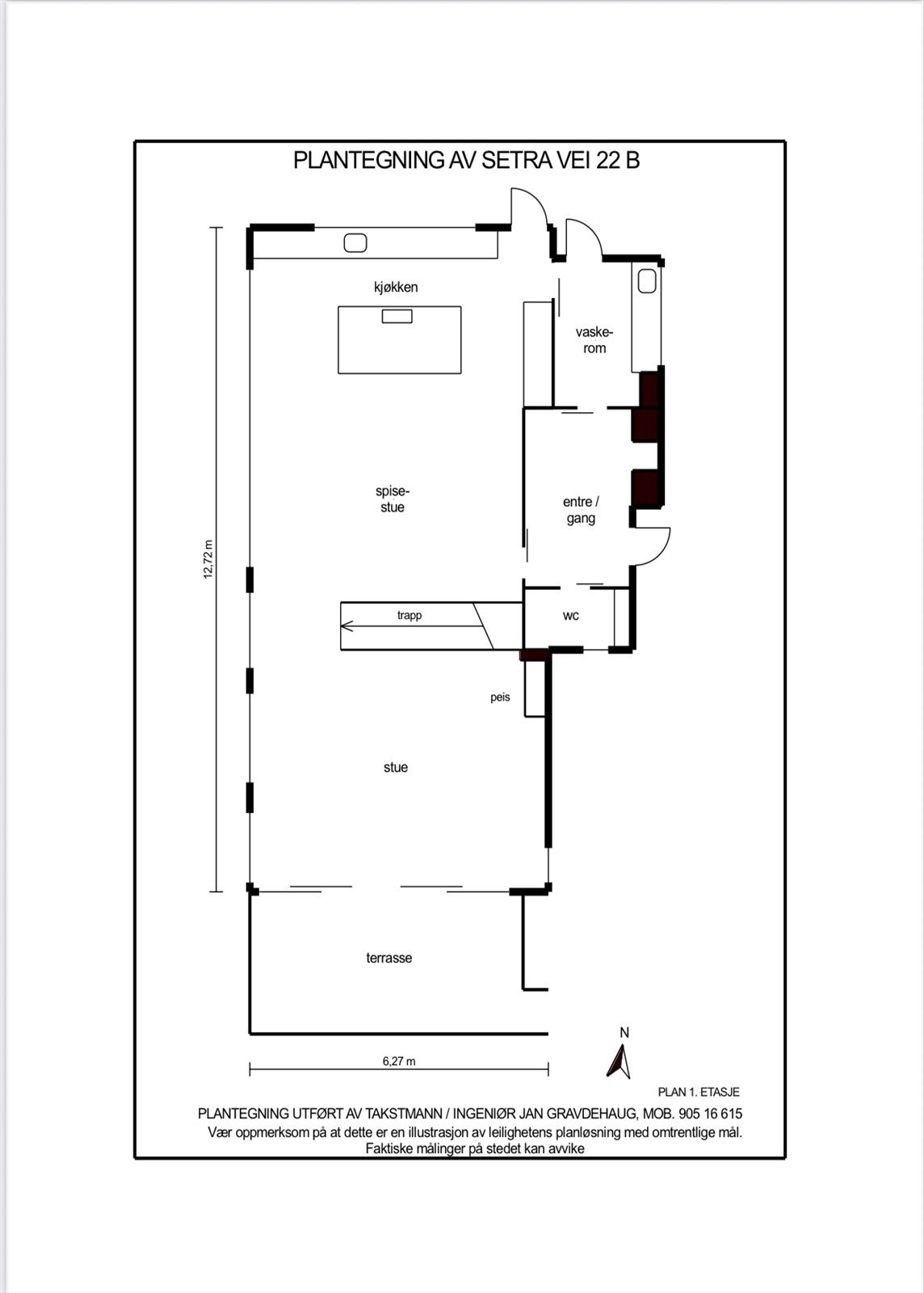
Om boligen
Eksklusiv og nyoppført enebolig signert LOGG Arkitekter. Et hjem hvor førsteklasses materialvalg og gjennomtenkte løsninger møtes. Her får du en unik kombinasjon av estetikk, funksjonalitet og luksus, alt pakket inn i et hjem med fantastisk utsikt og gode solforhold.
Denne arkitekttegnede eneboligen er bygget med fokus på eksklusivitet og lavt vedlikeholdsbehov. Fasaden og de åpne romløsningene gir et moderne uttrykk, mens store vindusflater fra gulv til tak inviterer lyset og landskapet inn i hjemmet.
Denne arkitekttegnede eneboligen er bygget med fokus på eksklusivitet og lavt vedlikeholdsbehov. Fasaden og de åpne romløsningene gir et moderne uttrykk, mens store vindusflater fra gulv til tak inviterer lyset og landskapet inn i hjemmet.
- Bergvarmesystem fra Nibe. Vannbåren gulvvarme i huset og garasje
- Hakwood parkett
- SieMatic kjøkken
- Gaggenau hvitevarer
- Dornbracht armaturer
- Integrert belysning fra SG
- Italiensk baderomsinnredning og fliser
- Romslig dobbelgarasje med mul. for treningsrom
NB: Knappen for å vise hele beskrivelsen har kun en visuell effekt.
NB: Knappen for å vise hele beskrivelsen har kun en visuell effekt.
Salgsoppgaven beskriver vesentlig og lovpålagt informasjon om eiendommen
Se komplett salgsoppgaveNyttige lenker
Nærområdet
Nordvik Frogner
Annonseinformasjon
| FINN-kode | 410093892 |
|---|---|
| Sist endret | 02. feb. 2026 09:00 |
| Referanse | 14-0203/25 |
Annonsene kan være mangelfulle i forhold til lovpålagt opplysningsplikt. Før bindende avtale inngås oppfordres interessenter til å innhente komplett informasjon fra meglerforetaket, selger eller utleier.



















































