Bildegalleri

Velkommen til Sørligata 46C - Presentert av Joakim Hjelm ved Nordvik Bolig!
Solgt
Sjelden mulighet på Tøyen
Unikt townhouse i indre gård over 3 plan med tre uteplasser, spennende planløsning og takhøyde 3,5m - Skjermet i bakgård
Prisantydning10 600 000 kr
Nøkkelinfo
- Boligtype
- Leilighet
- Eieform
- Andel
- Soverom
- 1
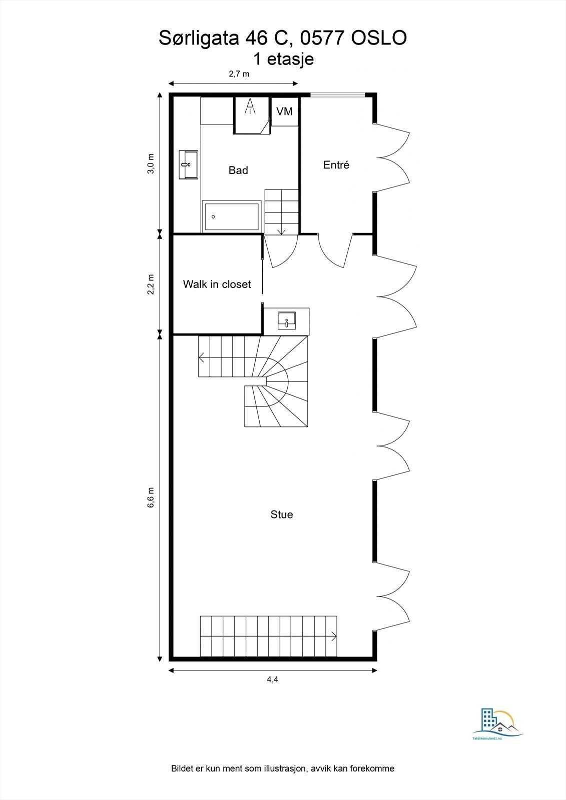
- Internt bruksareal
- 125 m² (BRA-i)
- Bruksareal
- 131 m²
- Eksternt bruksareal
- 6 m² (BRA-e)
- Byggeår
- 1894
- Energimerking
- G - Mørkegrønn
- Rom
- 3
- Tomteareal
- 1 899 m² (eiet)
Fasiliteter
Balkong/Terrasse
Barnevennlig
Bredbåndstilknytning
Kjæledyr tillatt
Kabel-TV
Offentlig vann/kloakk
Parkett
Peis/Ildsted
Rolig
Sentralt
Balansert ventilasjon
Om boligen
Joakim Hjelm v/Nordvik har gleden av å presentere et unikt townhouse over 3 plan på Tøyen/Enerhaugen. Boligen er en renovert stallbygning med egen inngang fra skjermet bakgård, og har hele tre uteplasser. En uteplass mot skjermet bakgård og to balkonger med utgang fra 2. etasje. Dette er en bolig utenom det vanlige, med etasjer- og halvetasjer som gir både sjarm og en smart utnyttelse av arealene!
Her bor du supersentralt med ca. 3 min til T-bane og gangavstand til noen av byens beste park-, trenings- og badeanlegg.
- Moderne og unik bolig
- Stallbygning renovert i 2006
- Tre uteplasser mot bakgård
- Bad pusset opp i 2014
- Nytt kjøkken i 2024
- Egen inngang fra skjermet bakgård
- Takhøyde opptil 3,56 m
- Originale detaljer teglsten
- Vannbåren gulvvarme
- Ingen dok.avgif
Her bor du supersentralt med ca. 3 min til T-bane og gangavstand til noen av byens beste park-, trenings- og badeanlegg.
- Moderne og unik bolig
- Stallbygning renovert i 2006
- Tre uteplasser mot bakgård
- Bad pusset opp i 2014
- Nytt kjøkken i 2024
- Egen inngang fra skjermet bakgård
- Takhøyde opptil 3,56 m
- Originale detaljer teglsten
- Vannbåren gulvvarme
- Ingen dok.avgif
NB: Knappen for å vise hele beskrivelsen har kun en visuell effekt.
NB: Knappen for å vise hele beskrivelsen har kun en visuell effekt.
Salgsoppgaven beskriver vesentlig og lovpålagt informasjon om eiendommen
Se komplett salgsoppgaveNyttige lenker
Nærområdet
Nordvik Løren
Annonseinformasjon
| FINN-kode | 410091587 |
|---|---|
| Sist endret | 03. juli 2025 11:54 |
| Referanse | 21-0234/24 |
Annonsene kan være mangelfulle i forhold til lovpålagt opplysningsplikt. Før bindende avtale inngås oppfordres interessenter til å innhente komplett informasjon fra meglerforetaket, selger eller utleier.
























































