Bildegalleri

Velkommen til Elias Blix` gate 1 - Boligen presenteres av Kristina O. Myhre for EiendomsMegler1 Sør-Norge
St.Hanshaugen
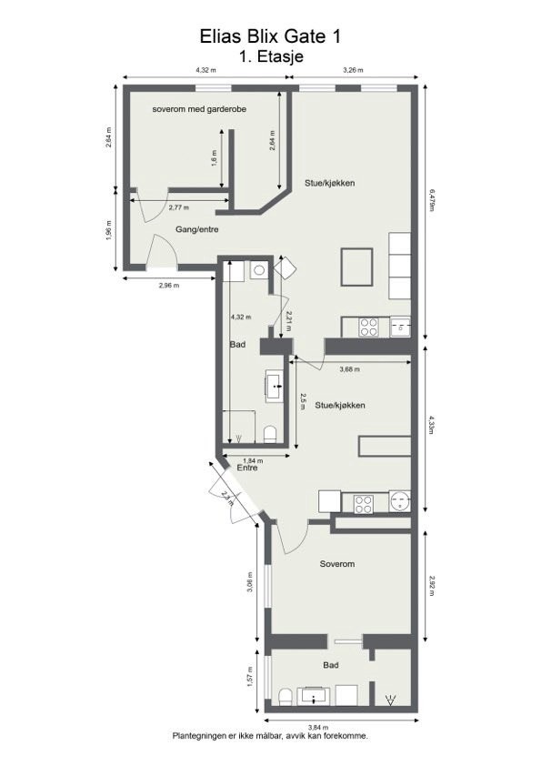
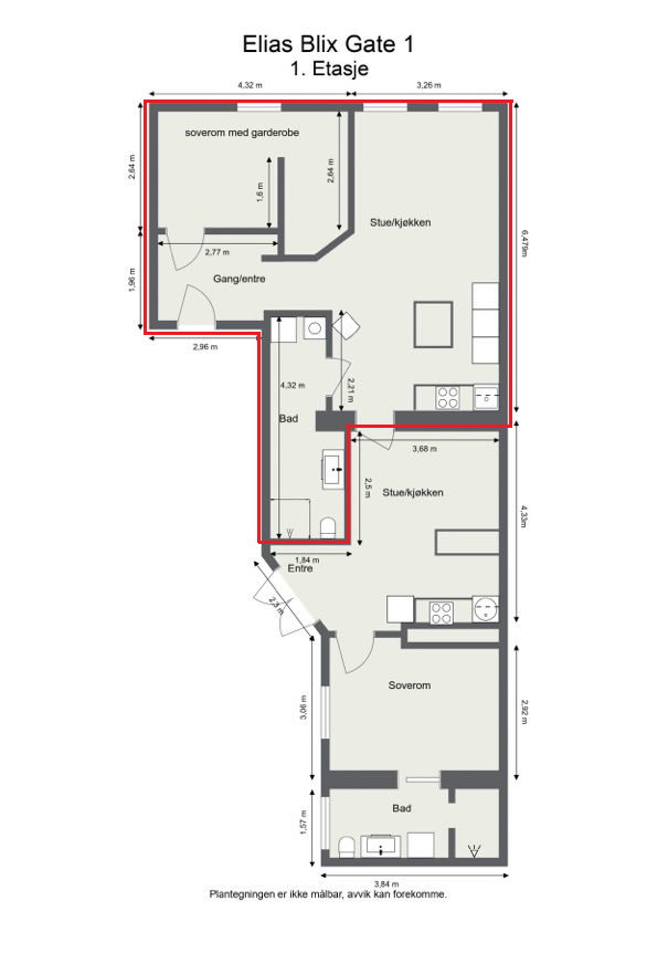
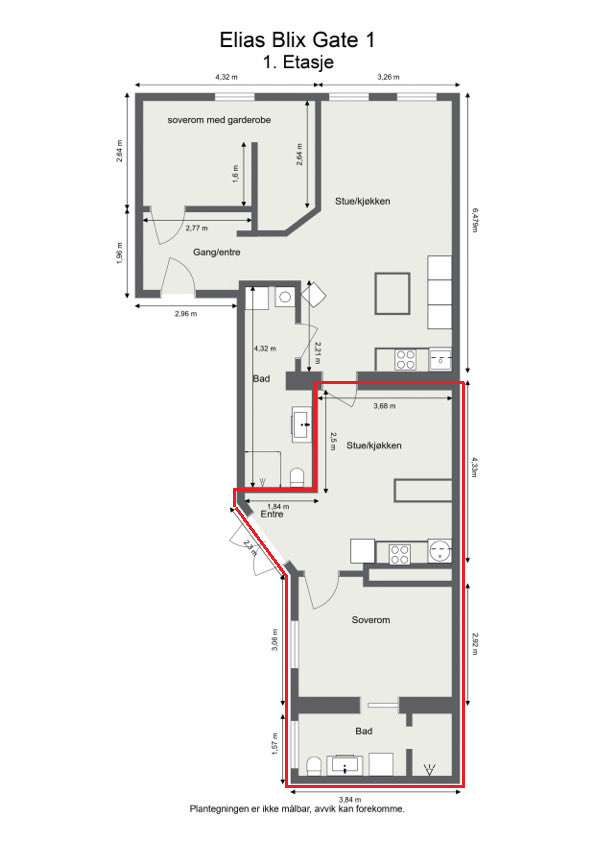
2 leiligheter i 1 | Delikat pusset opp i 2020 | Skattefrie leieinntekter | Sentral og skjermet beliggenhet
Prisantydning8 990 000 kr
Nøkkelinfo
- Boligtype
- Leilighet
- Eieform
- Aksje
- Soverom
- 2
- Internt bruksareal
- 92 m² (BRA-i)
- Bruksareal
- 94 m²
- Eksternt bruksareal
- 2 m² (BRA-e)
- Etasje
- 1
- Byggeår
- 1904
- Energimerking
- E - Oransje
- Rom
- 4
- Renovert år
- 2020
- Tomteareal
- 784 m² (eiet)
Fasiliteter
Bredbåndstilknytning
Kjæledyr tillatt
Kabel-TV
Offentlig vann/kloakk
Peis/Ildsted
Rolig
Sentralt
Vaktmester-/vektertjeneste
Turterreng
Visning
onsdag, 07. januar
16:30 – 17:30
Ønsker du å delta på visningen ber vi deg melde deg på slik at vi vet at du kommer. Da kan vi bistå alle best mulig og gi deg tiden du trenger på visningen. Kontakt gjerne megler før visning hvis du har spørsmål. Visningen avholdes bare dersom det er påmeldte. Hvis det ikke er oppsatt visningstidspunkt eller tidspunkt ikke passer, kontakt megler.
VisningspåmeldingOm boligen
Velkommen til Elias Blix` gate 1 - Her får du en stor og fleksibel leilighet, bestående av to komplette boenheter. Leilighetene har egen inngang og hvert sitt bad, kjøkken og soverom. Boligen ligger en velholdt og klassisk bygård, og bygget er organisert som et boligaksjeselskap, noe som medfører at man heller ikke må betale dokumentavgift ved kjøp.
Meget sentral, men samtidig stille og skjermet beliggenhet i rolig sidegate på Ila/St. Hanshaugen. Kort vei til Alexander Kiellands plass med butikker, kollektiv transport og diverse servering/bespisning. St. Hanshaugen med omfangsrike turveier og grøntområder ligger også rett rundt hjørnet.
- Pusset opp i 2020
- Skattefrie leieinntekt på kr. 19 500,- per mnd.
- Velholdt og klassisk bygård
- Sentral og skjermet beliggenhet
Meget sentral, men samtidig stille og skjermet beliggenhet i rolig sidegate på Ila/St. Hanshaugen. Kort vei til Alexander Kiellands plass med butikker, kollektiv transport og diverse servering/bespisning. St. Hanshaugen med omfangsrike turveier og grøntområder ligger også rett rundt hjørnet.
- Pusset opp i 2020
- Skattefrie leieinntekt på kr. 19 500,- per mnd.
- Velholdt og klassisk bygård
- Sentral og skjermet beliggenhet
NB: Knappen for å vise hele beskrivelsen har kun en visuell effekt.
NB: Knappen for å vise hele beskrivelsen har kun en visuell effekt.
Salgsoppgaven beskriver vesentlig og lovpålagt informasjon om eiendommen
Se komplett salgsoppgaveNyttige lenker
Nærområdet
EiendomsMegler 1 Sør-Norge avd Oslo
En del av Sparebank 1 Sør-Norge
Annonseinformasjon
| FINN-kode | 410017869 |
|---|---|
| Sist endret | 31. des. 2025 09:08 |
| Referanse | 2801250030 |
Annonsene kan være mangelfulle i forhold til lovpålagt opplysningsplikt. Før bindende avtale inngås oppfordres interessenter til å innhente komplett informasjon fra meglerforetaket, selger eller utleier.
































