Bildegalleri

Velkommen til Solvikveien 1A, presentert av eiendomsmegler Edvard Chapsang v/EIE eiendomsmegling avdeling Sandvika.
Solgt
BLOMMENHOLM
KLASSISK OG HERSKAPELIG VILLA MED STOR, FRODIG OG VAKKER HAGE - BÅTPLASS - LYSTHUS - SOLRIKT - U.ETG M/EGEN INNGANG
Prisantydning20 800 000 kr
Nøkkelinfo
- Boligtype
- Enebolig
- Eieform
- Eier (Selveier)
- Soverom
- 4
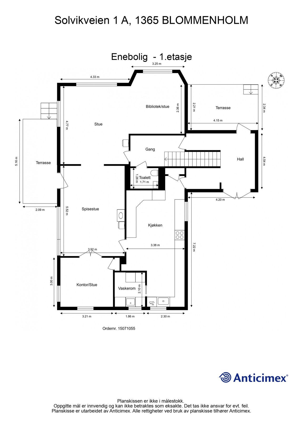
- Internt bruksareal
- 383 m² (BRA-i)
- Bruksareal
- 433 m²
- Eksternt bruksareal
- 50 m² (BRA-e)
- Balkong/Terrasse
- 19 m² (TBA)
- Byggeår
- 1913
- Energimerking
- G - Gul
- Tomteareal
- 1 451 m² (eiet)
Fasiliteter
Barnevennlig
Balkong/Terrasse
Garasje/P-plass
Kabel-TV
Offentlig vann/kloakk
Parkett
Peis/Ildsted
Turterreng
Sentralt
Bredbåndstilknytning
Moderne
Rolig
Bademulighet
Om boligen
På en liten kolle, tilbaketrukket og skjermet, ligger denne særegne og herskapelige eneboligen omgitt av en stor, opparbeidet hage med variert beplantning og gode solforhold. Eiendommen har en attraktiv beliggenhet med kort vei til sjøen, Henie Onstad Kunstsenter, barnehager, skoler, off.kom. og nærbutikker.
Eiendommen fremstår som noe utenom det vanlige - med vakre originale detaljer og et tydelig bevart særpreg. Boligen har mange av sine opprinnelige kvaliteter intakt som stukkatur, brede listverk, rosett og en gjennomgående god takhøyde, spesielt i første etasje. Planløsningen er svært romslig og det er store vinduer som gir en luftig og åpen atmosfære.
Hagen er en opplevelse i seg selv, med blomsterbed, syrintrær, hortensia, peoner og roser. Et nydelig lysthus med murt peis er plassert i hagen. I tillegg er det både drivhus og et klassisk dukkehus.
Boligen byr også på u.etg m/egen inngang og garasje. I tillegg følger tinglyst båtplass på Solvik Marina med eiendommen.
Eiendommen fremstår som noe utenom det vanlige - med vakre originale detaljer og et tydelig bevart særpreg. Boligen har mange av sine opprinnelige kvaliteter intakt som stukkatur, brede listverk, rosett og en gjennomgående god takhøyde, spesielt i første etasje. Planløsningen er svært romslig og det er store vinduer som gir en luftig og åpen atmosfære.
Hagen er en opplevelse i seg selv, med blomsterbed, syrintrær, hortensia, peoner og roser. Et nydelig lysthus med murt peis er plassert i hagen. I tillegg er det både drivhus og et klassisk dukkehus.
Boligen byr også på u.etg m/egen inngang og garasje. I tillegg følger tinglyst båtplass på Solvik Marina med eiendommen.
NB: Knappen for å vise hele beskrivelsen har kun en visuell effekt.
NB: Knappen for å vise hele beskrivelsen har kun en visuell effekt.
Salgsoppgaven beskriver vesentlig og lovpålagt informasjon om eiendommen
Se komplett salgsoppgaveNyttige lenker
Nærområdet
EIE eiendomsmegling Bærum
Annonseinformasjon
| FINN-kode | 409856077 |
|---|---|
| Sist endret | 30. juli 2025 11:15 |
| Referanse | 36251142 |
Annonsene kan være mangelfulle i forhold til lovpålagt opplysningsplikt. Før bindende avtale inngås oppfordres interessenter til å innhente komplett informasjon fra meglerforetaket, selger eller utleier.




















































































































