Bildegalleri

Velkommen til Myragutua 21B!
Gjerdrum/Ask
Tomannsbolig på 144 kvm BRA med unikt preg | Sentral beliggenhet | Takterrasse | Integrert dobbelgarasje
Prisantydning5 950 000 kr
Nøkkelinfo
- Boligtype
- Tomannsbolig
- Eieform
- Selveier
- Soverom
- 2
- Internt bruksareal
- 106 m² (BRA-i)
- Bruksareal
- 144 m²
- Eksternt bruksareal
- 38 m² (BRA-e)
- Balkong/Terrasse
- 17 m² (TBA)
- Byggeår
- 2022
- Energimerking
- B - Oransje
- Tomteareal
- 162 m² (eiet)
Fasiliteter
Balkong/Terrasse
Parkett
Barnevennlig
Rolig
Moderne
Sentralt
Garasje/P-plass
Turterreng
Visning
mandag, 01. juni
18:00 – 19:00
Alle våre visninger har påmelding. På denne måten sikrer vi at megler har god oversikt og tid til å imøtekomme alle interessenter på beste måte. Dette er veldig verdifullt for boligkjøpere og for oss. Det er enkelt å melde seg på, og du kan like enkelt melde deg av.
Kontakt også gjerne megler i forkant av visning dersom du har spørsmål.
VisningspåmeldingOm boligen
Tomannsbolig fra 2022 på Ask i Gjerdrum. Her er det svært praktiske og gode løsninger, noe som er ekstra kjærkomment for familier med små barn! Beliggenheten appellerer til en bred kjøpegruppe, og er særs barnevennlig med umiddelbar nærhet til skoler og forskjellige typer idrettsanlegg, enten man er glad i vinter- eller sommeridrett.
Høydepunkter
- Sentral beliggenhet
- Parkering i dobbel garasje
- Solrik takterrasse
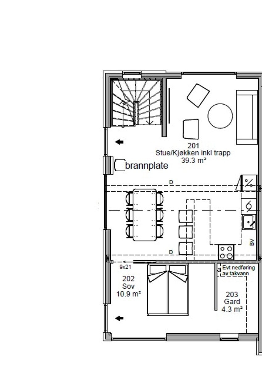
- Flislagt entré med gulvvarme
- Sportsbod
- Balansert ventilasjon med gjenvinning
- Montert plisségardiner i flere rom
- Sentralstøvsuger med uttak i hver etasje
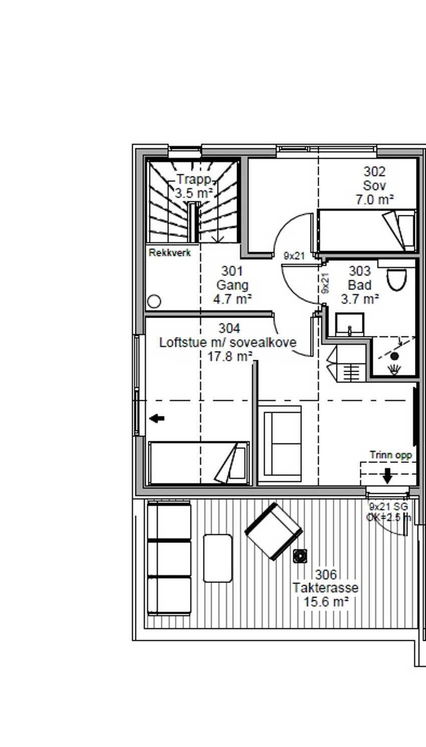
- 2 soverom
- 2 bad
- Loftstue med sovealkove som gir ekstra spillerom
Velkommen til visning!
NB: Knappen for å vise hele beskrivelsen har kun en visuell effekt.
NB: Knappen for å vise hele beskrivelsen har kun en visuell effekt.
Salgsoppgaven beskriver vesentlig og lovpålagt informasjon om eiendommen
Se komplett salgsoppgaveNyttige lenker
Nærområdet

PrivatMegleren Lillestrøm
Kun det beste på dine vegne
Annonsene kan være mangelfulle i forhold til lovpålagt opplysningsplikt. Før bindende avtale inngås oppfordres interessenter til å innhente komplett informasjon fra meglerforetaket, selger eller utleier.






































