Bildegalleri

Moderne og stilrent enderekkehus med utmerket beliggenhet i et familievennlig felt på Utleir.
Moderne og innholdsrikt enderekkehus fra 2007. Flott utsikt og ypperlige solforhold. 4 soverom. Takterrasse. Parkering.
Nøkkelinfo
- Boligtype
- Rekkehus
- Eieform
- Andel
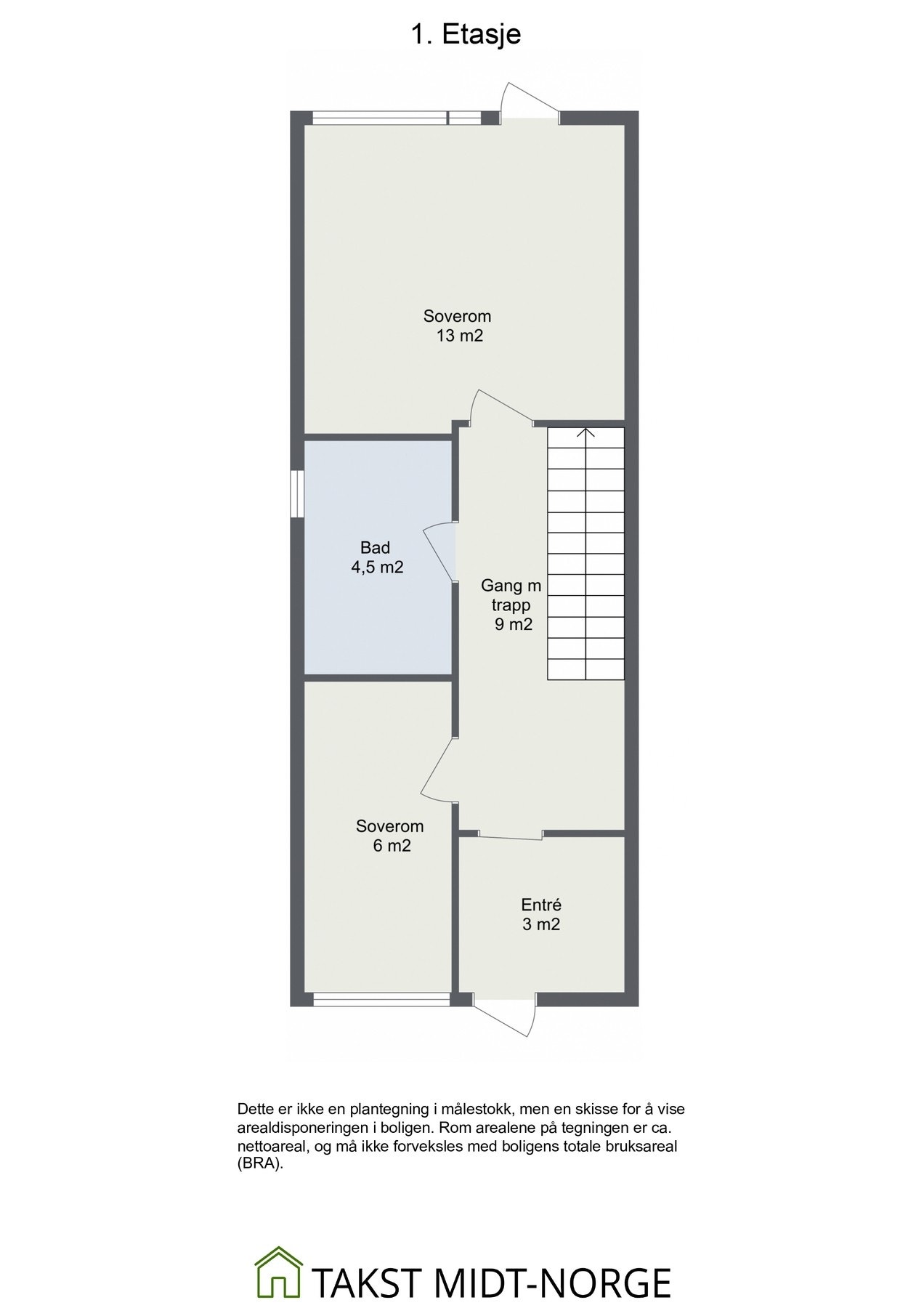
- Soverom
- 4
- Internt bruksareal
- 139 m² (BRA-i)
- Bruksareal
- 141 m²
- Eksternt bruksareal
- 2 m² (BRA-e)
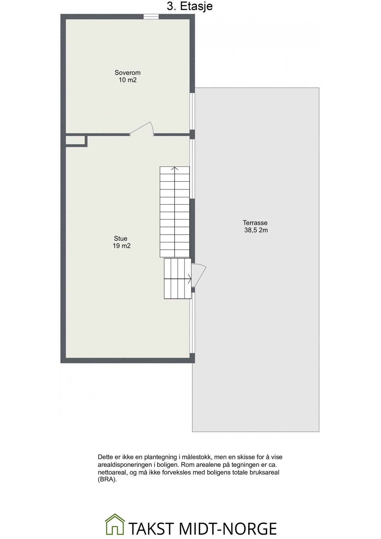
- Balkong/Terrasse
- 64 m² (TBA)
- Byggeår
- 2007
- Energimerking
- D - Mørkegrønn
- Tomteareal
- 4 837 m² (eiet)
Fasiliteter
Om boligen
- Innholdsrikt med bl.a. totalt fire soverom og to stueareal.
- Takterrasse med sol fra morgen til kveld samt markterrasse og hage.
- Svært familievennlig felt med begrenset trafikk, barnehage i feltet, aktivt idrettsanlegg med kunstgressbane og idrettshall like ved.
Salgsoppgaven beskriver vesentlig og lovpålagt informasjon om eiendommen
Se komplett salgsoppgaveNyttige lenker
Nærområdet

PrivatMegleren Trondheim
Prisstatistikk
Signe Swenssons veg 30
på annonsen
prisantydning per kvadratmeter
Prisfordeling
Pris per m² ligger 6 640 kr under snittet for rekkehus i Trondheim Øst.
Grafen viser antall rekkehus solgt i Trondheim Øst siste året fordelt på pris per m² - totalt 194 rekkehus
Antall boliger
Kvadratmeterpris tilsvarer prisantydning pluss fellesgjeld per kvadratmeter (p-rom eller BRA-i). Prisene i grafen er avrundet til nærmeste 1000 kr.
Annonseinformasjon
| FINN-kode | 409851551 |
|---|---|
| Sist endret | 02. sep. 2025 10:51 |
| Referanse | 114251030 |
Annonsene kan være mangelfulle i forhold til lovpålagt opplysningsplikt. Før bindende avtale inngås oppfordres interessenter til å innhente komplett informasjon fra meglerforetaket, selger eller utleier.

































