Bildegalleri

Velkommen til Alexander Kiellands plass & Uelands gate 57E!
Lys & fin 2-roms med sentral beliggenhet I Vinduer 2024 I Kjøkken 2018 I Vv / fyring inkl. I IN-ordning I Ingen forkjøp
Nøkkelinfo
- Boligtype
- Leilighet
- Eieform
- Andel
- Soverom
- 1
- Internt bruksareal
- 31 m² (BRA-i)
- Bruksareal
- 36 m²
- Eksternt bruksareal
- 5 m² (BRA-e)
- Etasje
- 1
- Byggeår
- 1936
- Energimerking
- G - Mørkegrønn
- Rom
- 2
- Tomteareal
- 4 874 m² (eiet)
Fasiliteter
Om boligen
Velkommen til Alexander Kiellands plass & Uelands gate 57E!
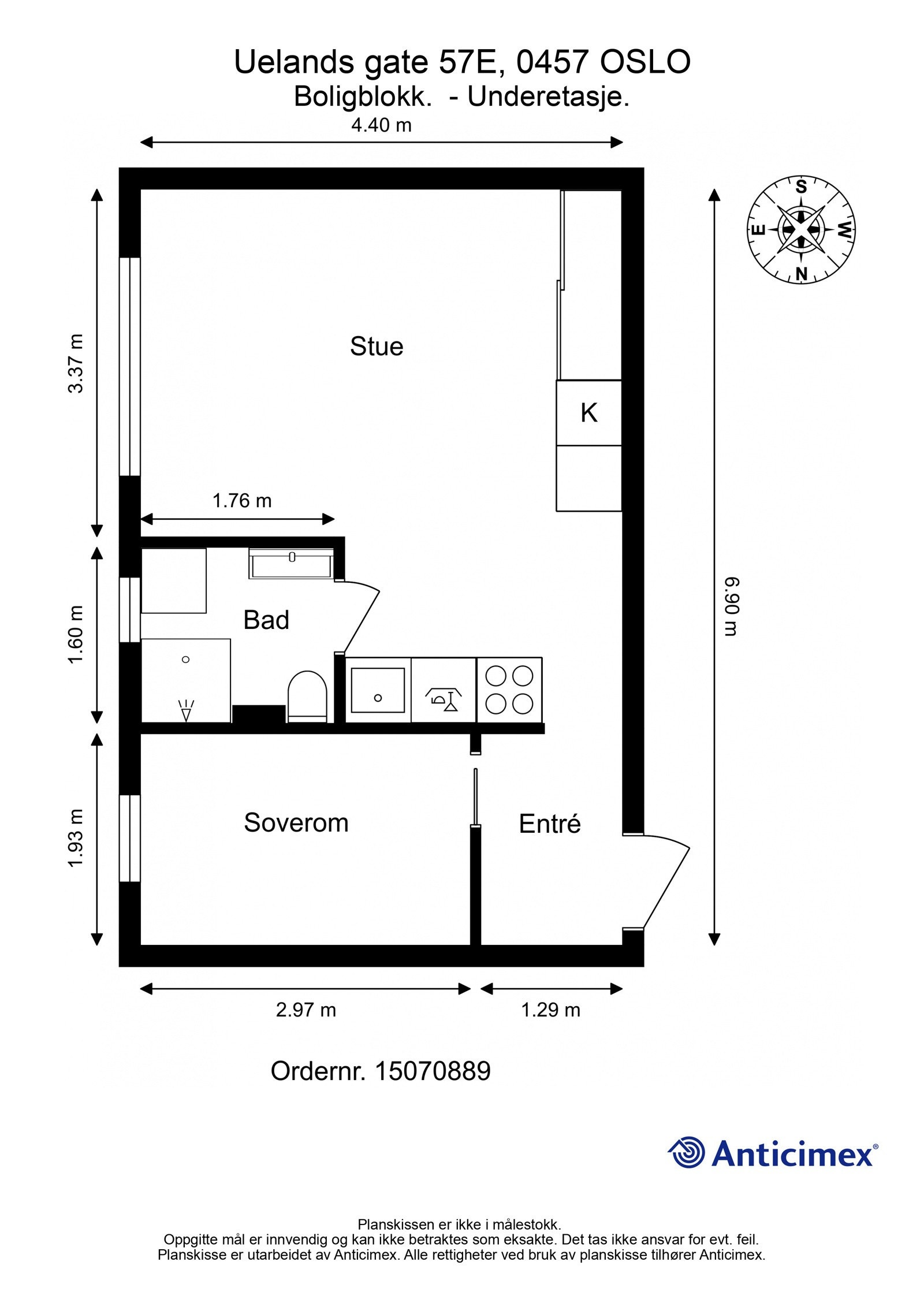
En lys og luftig 2-roms leilighet med sentral og attraktiv beliggenhet på populære Alexander Kiellands plass. Leiligheten er beliggende i byggets underetasje og vender i sin helhet mot rolig bakgård hvor den oppleves som en 2. etasje. Og har en god planløsning hvor vindusflatene optimaliserer lysforholdene og gjør det enkelt å trives.
Perfekt kombinasjon av fredelige omgivelser samtidig som populære Alexander Kiellands Plass, er et pulserende knutepunkt mellom Grünerløkka og St. Hanshaugen. Kort vei til kollektivtransport, restauranter og uteliv i umiddelbar nærhet.
Høydepunkter
- Vinduer og fasade 2024
- Kjøkken 2018
- Varmtvann og fyring inkl.
- 5 m² bod
- IN-ordning: Ved innfrielse av fellesgjelden blir felleskost. kr 3 517,-
- Ingen forkjøpsrett
Salgsoppgaven beskriver vesentlig og lovpålagt informasjon om eiendommen
Se komplett salgsoppgaveNyttige lenker
Nærområdet
Schala &Partners Sagene
Prisstatistikk
Uelands gate 57E
på annonsen
prisantydning per kvadratmeter
Prisfordeling
Pris per m² ligger 18 576 kr over snittet for leiligheter i Sagene - Torshov.
Grafen viser antall leiligheter solgt i Sagene - Torshov siste året fordelt på pris per m² - totalt 2 430 leiligheter
Antall boliger
Kvadratmeterpris tilsvarer prisantydning pluss fellesgjeld per kvadratmeter (p-rom eller BRA-i). Prisene i grafen er avrundet til nærmeste 1000 kr.
Annonseinformasjon
| FINN-kode | 409786753 |
|---|---|
| Sist endret | 21. sep. 2025 13:44 |
| Referanse | 19250193 |
Annonsene kan være mangelfulle i forhold til lovpålagt opplysningsplikt. Før bindende avtale inngås oppfordres interessenter til å innhente komplett informasjon fra meglerforetaket, selger eller utleier.




































