Bildegalleri

Velkommen til Nordahl Griegs gate 31, presentert av DNB Eiendom v/Joachim Vågen.
Inaktiv
HAMAR/AJER
Romslig og innholdsrik halvpart av vertikaldelt tomannsbolig med god planløsning. 4 soverom, 2 bad. Garasje. Fin utsikt
Prisantydning4 950 000 kr
Nøkkelinfo
- Boligtype
- Tomannsbolig
- Eieform
- Selveier
- Soverom
- 4
- Internt bruksareal
- 170 m² (BRA-i)
- Bruksareal
- 185 m²
- Eksternt bruksareal
- 15 m² (BRA-e)
- Balkong/Terrasse
- 41 m² (TBA)
- Byggeår
- 1956
- Energimerking
- F - Oransje
- Rom
- 6
- Tomteareal
- 614 m² (eiet)
Fasiliteter
Balkong/Terrasse
Barnevennlig
Bredbåndstilknytning
Garasje/P-plass
Hage
Kabel-TV
Offentlig vann/kloakk
Peis/Ildsted
Rolig
Sentralt
Utsikt
Turterreng
Visning
Våre visninger har påmelding. Dette gjør vi for å kunne yte bedre service for våre kunder. Verdifullt for boligkjøper og for oss. Vi anbefaler at salgsoppgaven leses før visning, og ring oss gjerne på forhånd for spørsmål om boligen. Passer ikke angitt tidspunkt, ta kontakt så finner vi en løsning. Skulle det mot formodning ikke være påmeldte 4 timer før angitt visningstidspunkt vil ikke visning bli gjennomført.
VisningspåmeldingOm boligen
Nå har du muligheten til å sikre deg en meget innholdsrik og pen halvpart med ypperlig beliggenhet i rolige- og familievennlige omgivelser på Ajer. Boligen strekker seg over to etasjer + kjeller og har fine- og praktiske planløsninger. Rikelig med terrasseplass og stor hage.
Eiendommen har en rekke gode kvaliteter og vi ønsker å trekke frem:
Eiendommen har en rekke gode kvaliteter og vi ønsker å trekke frem:
- Sydvendt- og fin hage med fin plen og dukkestue
- Stor stue med spisestuedel og vedovn
- Pent kjøkken med mye skap- og benkeplass
- 4 gode soverom + loftstue i andre etasje
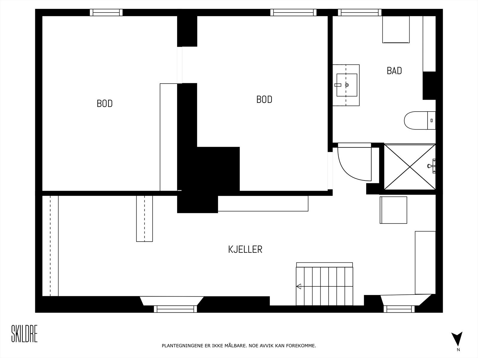
- 2 pent flislagte baderom i hhv. første etg. og kjeller
- Hellelagt gårdsplass med garasje
- Mye lagrings/bodplass i kjelleretasjen
- Gangavstand til Ankerskogen, barnehage, skole og nærbutikk
NB: Knappen for å vise hele beskrivelsen har kun en visuell effekt.
NB: Knappen for å vise hele beskrivelsen har kun en visuell effekt.
Salgsoppgaven beskriver vesentlig og lovpålagt informasjon om eiendommen
Se komplett salgsoppgaveNyttige lenker
Nærområdet
DNB Eiendom AS
Verdifulle salg
Annonseinformasjon
| FINN-kode | 409596932 |
|---|---|
| Sist endret | 16. mars 2026 15:39 |
| Referanse | 517250062 |
Annonsene kan være mangelfulle i forhold til lovpålagt opplysningsplikt. Før bindende avtale inngås oppfordres interessenter til å innhente komplett informasjon fra meglerforetaket, selger eller utleier.






































































