Bildegalleri

Foto: Husfoto v/ Bernat Tubau.
VÅLER
Trivelig enebolig med livløpsstandard og garasje m/lager og carport innerst i blindvei i rolige omgivelser i Rudskrets
Prisantydning1 100 000 kr
Nøkkelinfo
- Boligtype
- Enebolig
- Eieform
- Eier (Selveier)
- Soverom
- 3
- Internt bruksareal
- 165 m² (BRA-i)
- Bruksareal
- 200 m²
- Eksternt bruksareal
- 35 m² (BRA-e)
- Balkong/Terrasse
- 25 m² (TBA)
- Etasje
- 1
- Byggeår
- 1978
- Tomteareal
- 1 110 m² (eiet)
Fasiliteter
Balkong/Terrasse
Barnevennlig
Garasje/P-plass
Hage
Peis/Ildsted
Rolig
Turterreng
Om boligen
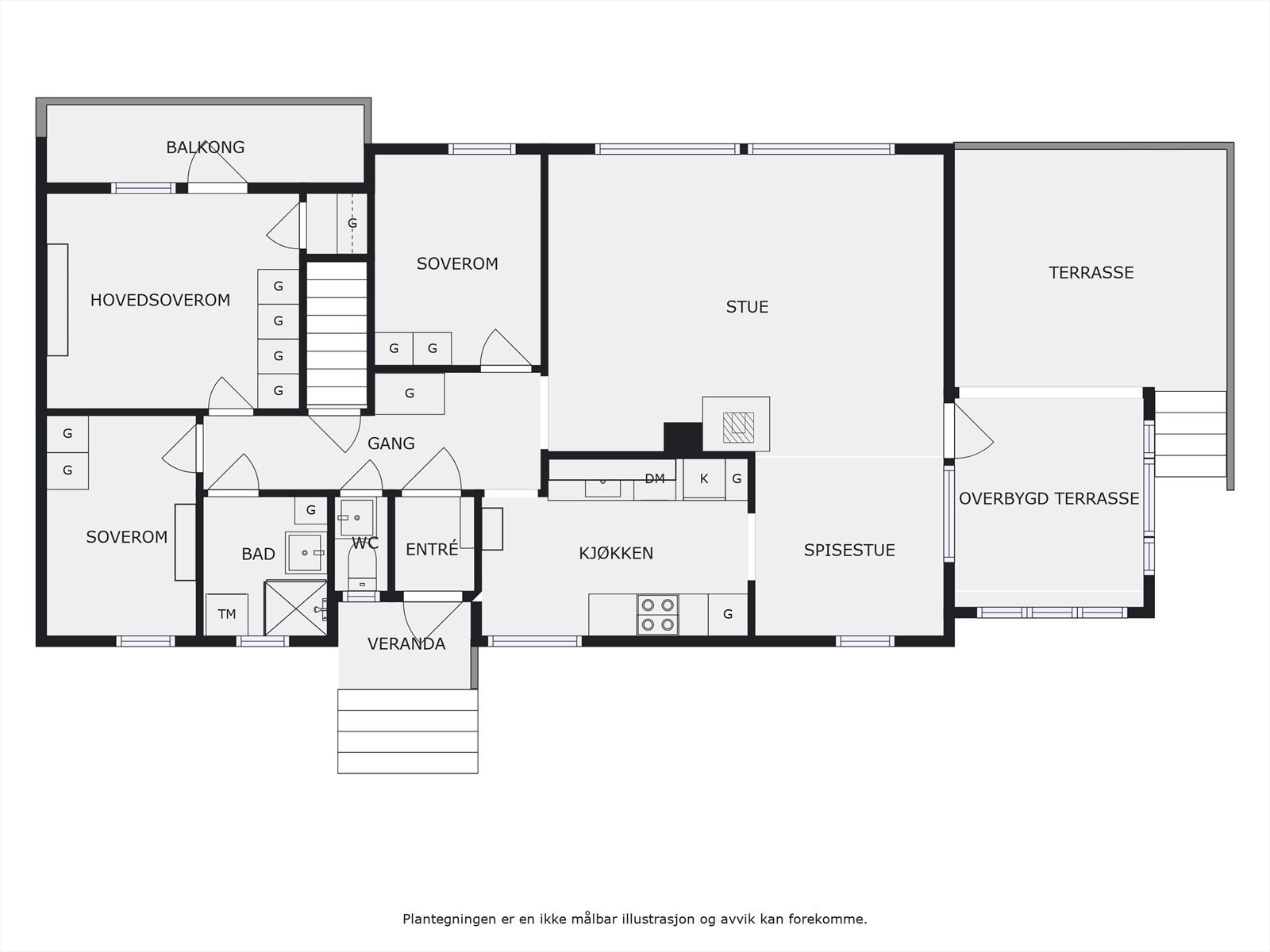
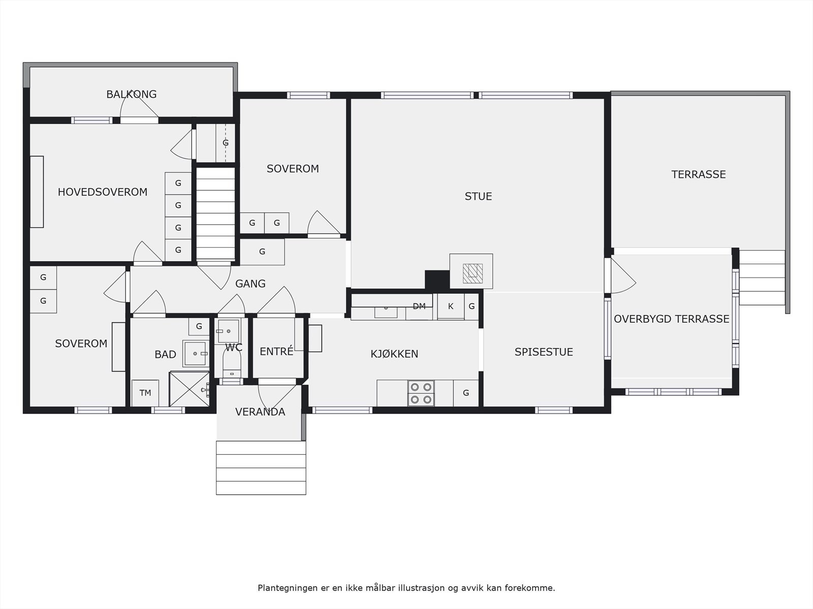
Hva med et trivelig hus i Rudskrets ca. 9 km fra sentrum av Våler og omtrent midt mellom Elverum og Flisa? Monsrudbakken 13 er et hus oppført i 1978 over en etasje med alt på ei flate som tre soverom, romslig stue med utgang til sør-vestvendt terrasse, kjøkken, bad og toalettrom. I tillegg til at det er kjeller med lagringsmuligheter og potensiale. Her bor du fint og rolig til innerst på feltet på opparbeidet og skjermet tomt med hage og noe beplantning. Dersom du er på utkikk etter en bolig med alt på ei flate, tre soverom, kjeller med potensiale og i tillegg garasje m/ carport utenfor Våler så bør du ta en titt på denne.
Merk deg dette:
- Livsløpsstandard og tre soverom
- Garasje og carport
- Fin og skjermet endetomt
- Fredfullt og rolig med nærhet til skogens ro
- Ca. 9 km til Våler
Merk deg dette:
- Livsløpsstandard og tre soverom
- Garasje og carport
- Fin og skjermet endetomt
- Fredfullt og rolig med nærhet til skogens ro
- Ca. 9 km til Våler
NB: Knappen for å vise hele beskrivelsen har kun en visuell effekt.
NB: Knappen for å vise hele beskrivelsen har kun en visuell effekt.
Salgsoppgaven beskriver vesentlig og lovpålagt informasjon om eiendommen
Se komplett salgsoppgaveNærområdet
Aktiv Innlandet
Annonseinformasjon
| FINN-kode | 409580590 |
|---|---|
| Sist endret | 10. feb. 2026 09:43 |
| Referanse | 1212250005 |
Annonsene kan være mangelfulle i forhold til lovpålagt opplysningsplikt. Før bindende avtale inngås oppfordres interessenter til å innhente komplett informasjon fra meglerforetaket, selger eller utleier.



































