Bildegalleri

Velkommen til Fredtunvegen 10 D, og denne flotte 2-roms leiligheten fra 2007.
Solgt
Sola
Lys og arealeffektiv selveierleilighet med stor vestvendt uteplass - Fast p-plass m/lader - Sentral beliggenhet
Prisantydning3 000 000 kr
Nøkkelinfo
- Boligtype
- Leilighet
- Eieform
- Eier (Selveier)
- Soverom
- 1
- Internt bruksareal
- 49 m² (BRA-i)
- Bruksareal
- 54 m²
- Eksternt bruksareal
- 5 m² (BRA-e)
- Balkong/Terrasse
- 40 m² (TBA)
- Etasje
- 1
- Byggeår
- 2007
- Energimerking
- E - Mørkegrønn
- Rom
- 2
- Tomteareal
- 770 m² (eiet)
Fasiliteter
Balkong/Terrasse
Bredbåndstilknytning
Garasje/P-plass
Heis
Kjæledyr tillatt
Offentlig vann/kloakk
Parkett
Rolig
Sentralt
Vaktmester-/vektertjeneste
Turterreng
Lademulighet
Om boligen
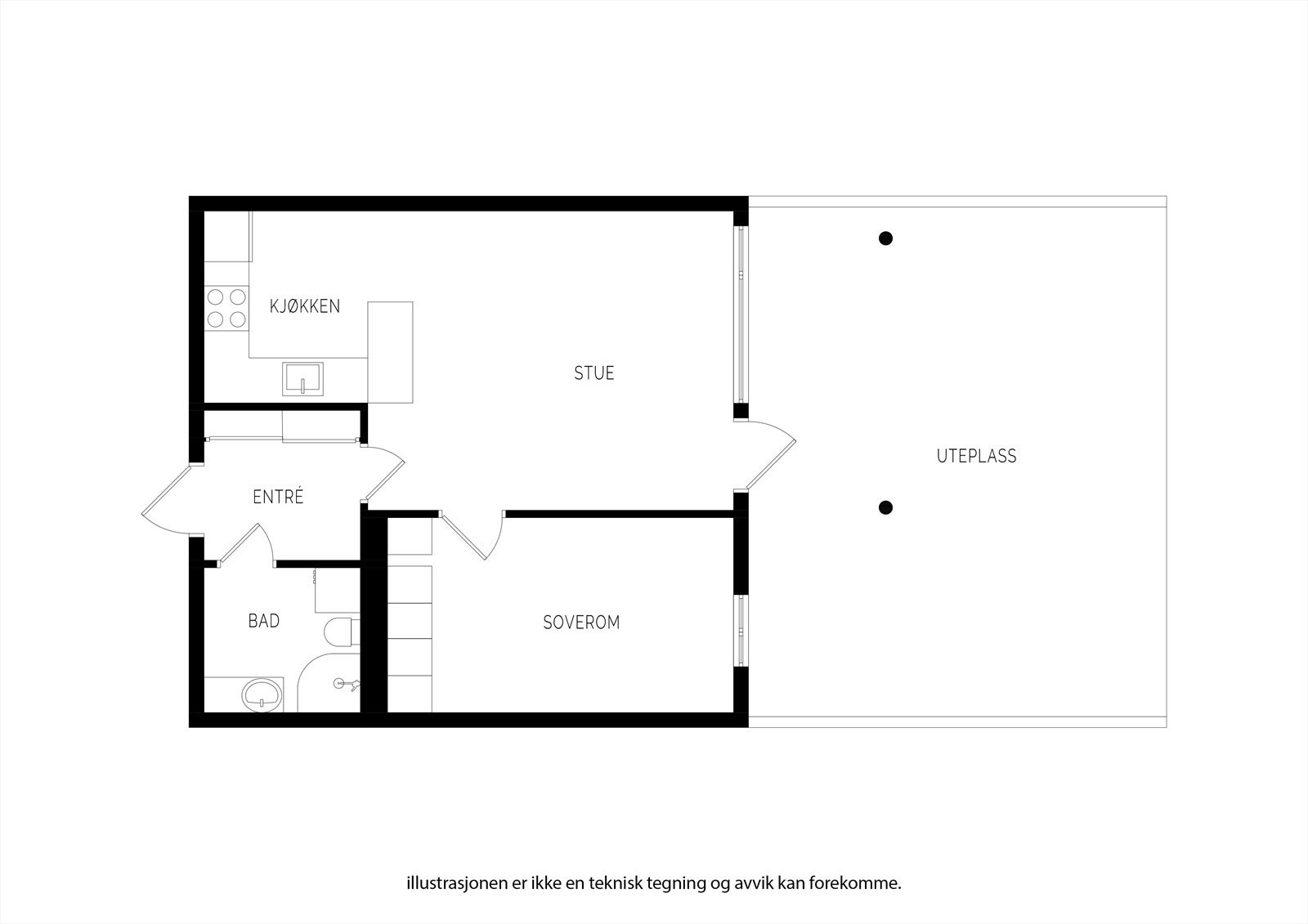
Velkommen til Fredtunvegen 10 D, og denne flotte 2-roms leiligheten fra 2007. Leiligheten har en praktisk planløsning med blant annet stue i åpen løsning mot kjøkken, soverom, entré og bad/vaskerom. Fra stuen er det utgang til solrik terrasse på hele 40 m². Man har også gleden av ekstern bod og parkering i lukket anlegg med elbillader.
Beliggenheten er attraktiv og sentral med kort gange til Sola sentrum. Fra leiligheten har man kort gangavstand til flere dagligvarebutikker, spisesteder, vinmonopol, flotte turområder, samt busstopp som tar deg i retning Stavanger og Sandnes.
Kort fortalt:
- Lave felleskostnader, kun kr. 2 059 pr mnd inkl. kommunale avg.
- Vannbåren varme
- Vestvendt uteplass
- Trappefri adkomst
- Fast p-plass med elbillader
- Bod i lukket anlegg
Velkommen til visning!
Beliggenheten er attraktiv og sentral med kort gange til Sola sentrum. Fra leiligheten har man kort gangavstand til flere dagligvarebutikker, spisesteder, vinmonopol, flotte turområder, samt busstopp som tar deg i retning Stavanger og Sandnes.
Kort fortalt:
- Lave felleskostnader, kun kr. 2 059 pr mnd inkl. kommunale avg.
- Vannbåren varme
- Vestvendt uteplass
- Trappefri adkomst
- Fast p-plass med elbillader
- Bod i lukket anlegg
Velkommen til visning!
NB: Knappen for å vise hele beskrivelsen har kun en visuell effekt.
NB: Knappen for å vise hele beskrivelsen har kun en visuell effekt.
Salgsoppgaven beskriver vesentlig og lovpålagt informasjon om eiendommen
Se komplett salgsoppgaveNyttige lenker
Nærområdet
Eiendomsmegler Norge Stavanger
Best der du bor
Annonseinformasjon
| FINN-kode | 409523982 |
|---|---|
| Sist endret | 06. juni 2025 12:09 |
| Referanse | 20250068 |
Annonsene kan være mangelfulle i forhold til lovpålagt opplysningsplikt. Før bindende avtale inngås oppfordres interessenter til å innhente komplett informasjon fra meglerforetaket, selger eller utleier.






















