Bildegalleri

- Velkommen til Maridalsveien 227D v/ Mattias Mattsson i PrivatMegleren -
Solgt
Sagene
Pen 2-roms med attraktiv beliggenhet - Solrik balkong - Vv og fyring inkl - Parkeringsmuligheter - Veldrevet borettslag
Prisantydning5 700 000 kr
Nøkkelinfo
- Boligtype
- Leilighet
- Eieform
- Andel
- Soverom
- 1
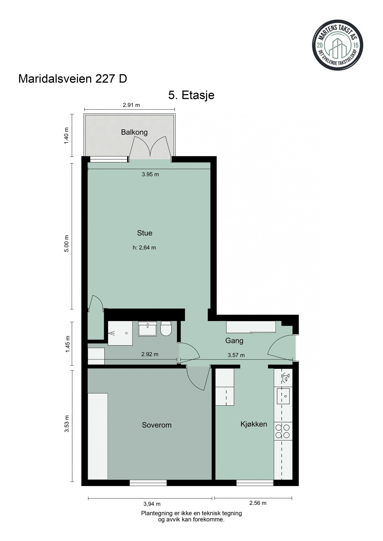
- Internt bruksareal
- 55 m² (BRA-i)
- Bruksareal
- 63 m²
- Eksternt bruksareal
- 8 m² (BRA-e)
- Balkong/Terrasse
- 4 m² (TBA)
- Etasje
- 5
- Byggeår
- 1940
- Energimerking
- G - Mørkegrønn
- Tomt
- Eiet
Fasiliteter
Balkong/Terrasse
Garasje/P-plass
Kabel-TV
Utsikt
Vaktmester-/vektertjeneste
Fellesvaskeri
Sentralt
Bredbåndstilknytning
Rolig
Bademulighet
Om boligen
Velkommen til Maridalsveien 227D - En attraktiv leilighet(5etg) i et populært og etablert boligområde på Bjølsen. Leiligheten består av entré, stue med utgang til vestvendt balkong, praktisk kjøkken, soverom samt et pent flislagt bad. Mulighet for 3-roms. Leiligheten har en flott internbeliggenhet med herlig utsikt i et rolig og avskjermet område, omkranset av fine grøntarealer. Videre er det kort vei til matbutikker, kafeer, hyggelige spisesteder, treningssentre m.m.
Kort fortalt:
- Attraktiv & sentral beliggenhet
- Hyggelige uteområde
- Nærhet til flere grønne parker
- Kort avstand til kollektiv transport
- Felles sykkelbod og smørebod for ski
- Parkeringsmuligheter
- Solrik balkong på 4 kvm
- V.v og fyring inkl.
- To boder
- Ingen dok. avgift.
- Veldrevet borettslag
- Hjemmeside: https://maridalsveien.no/
Kort fortalt:
- Attraktiv & sentral beliggenhet
- Hyggelige uteområde
- Nærhet til flere grønne parker
- Kort avstand til kollektiv transport
- Felles sykkelbod og smørebod for ski
- Parkeringsmuligheter
- Solrik balkong på 4 kvm
- V.v og fyring inkl.
- To boder
- Ingen dok. avgift.
- Veldrevet borettslag
- Hjemmeside: https://maridalsveien.no/
NB: Knappen for å vise hele beskrivelsen har kun en visuell effekt.
NB: Knappen for å vise hele beskrivelsen har kun en visuell effekt.
Salgsoppgaven beskriver vesentlig og lovpålagt informasjon om eiendommen
Se komplett salgsoppgaveNyttige lenker
Nærområdet

PrivatMegleren Horisont
Kun det beste på dine vegne
Annonseinformasjon
| FINN-kode | 409517311 |
|---|---|
| Sist endret | 09. juni 2025 17:44 |
| Referanse | 155251008 |
Annonsene kan være mangelfulle i forhold til lovpålagt opplysningsplikt. Før bindende avtale inngås oppfordres interessenter til å innhente komplett informasjon fra meglerforetaket, selger eller utleier.








































