Bildegalleri

Stilren og delikat funkisbolig over 3 plan med en gjennomført god standard og fine designvalg beliggende i et populært og meget familievennlig boligområde på Eidsvoll Verk.
Attraktiv funkisbolig over 3 plan - Solrik takterrasse på 37 kvm - 5 soverom - Garasje - Elbillader ++ Bør sees!
Nøkkelinfo
- Boligtype
- Tomannsbolig
- Eieform
- Eier (Selveier)
- Soverom
- 5
- Internt bruksareal
- 174 m² (BRA-i)
- Bruksareal
- 198 m²
- Eksternt bruksareal
- 24 m² (BRA-e)
- Balkong/Terrasse
- 59 m² (TBA)
- Byggeår
- 2022
- Energimerking
- B - Oransje
- Tomteareal
- 284 m² (eiet)
Fasiliteter
Visning
Om boligen
Stilren og delikat funkisbolig over 3 plan med en gjennomført god standard og fine designvalg beliggende i et populært og meget familievennlig boligområde på Eidsvoll Verk.
Boligen fra 2022 har en svært moderne arkitektur med gode lysforhold, store vindusflater og åpne løsninger.
Stor flott takterrasse på hele 37 kvm med fantastiske solforhold og flott utsyn!
Kort fortalt:
- Stilrent kjøkken fra Norema m/integrerte hvitevarer
- Innbydende stue/spisestue med gode vindusflater og lekker lyspigmentert parkett på gulv
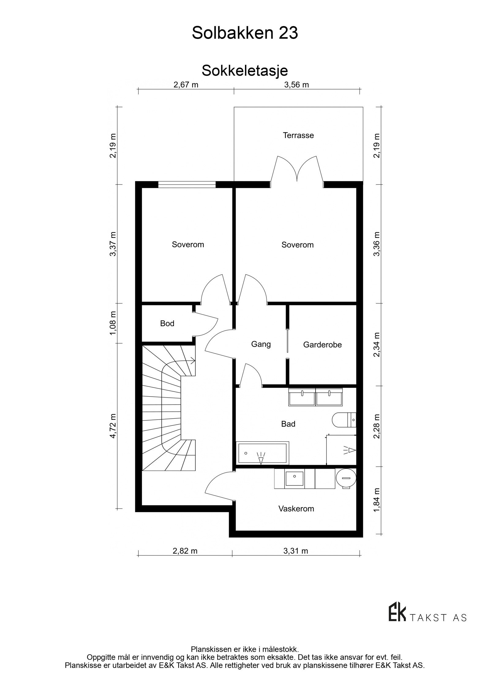
- 2 flislagte bad + gjestetoalett
- Separat vaskerom
- 5 gode soverom - hvorav ett m/suiteløsning
- Utstrakt bruk av gulvvarme
- Garasje + biloppstillingsplass
- 4 solrike terrasser
- Nærhet til cafeer, AMFI Eidsvoll, butikker, buss, idrettshall, flott turterreng m.m
- Kun 30 min m/tog til Oslo S
Velkommen!
Salgsoppgaven beskriver vesentlig og lovpålagt informasjon om eiendommen
Se komplett salgsoppgaveNyttige lenker
Nærområdet

PrivatMegleren Brustad & Partnere
Annonseinformasjon
| FINN-kode | 409227145 |
|---|---|
| Sist endret | 25. jan. 2026 09:58 |
| Referanse | 121250065 |
Annonsene kan være mangelfulle i forhold til lovpålagt opplysningsplikt. Før bindende avtale inngås oppfordres interessenter til å innhente komplett informasjon fra meglerforetaket, selger eller utleier.





































