Bildegalleri

Laupen 19 er en lekker enebolig fra 2022 med alt på ett plan - passer ypperlig for alle aldersgrupper!
Hervik
Nyere, flott enebolig med god standard - Gode solforhold og nydelig sjøutsikt - Båtplass på felles utrigger
Prisantydning990 000 kr
Nøkkelinfo
- Boligtype
- Enebolig
- Eieform
- Andel
- Soverom
- 3
- Internt bruksareal
- 91 m² (BRA-i)
- Bruksareal
- 96 m²
- Eksternt bruksareal
- 5 m² (BRA-e)
- Balkong/Terrasse
- 58 m² (TBA)
- Byggeår
- 2022
- Rom
- 4
- Tomteareal
- 510 m² (eiet)
Fasiliteter
Aircondition
Balkong/Terrasse
Barnevennlig
Bredbåndstilknytning
Båtplass
Hage
Offentlig vann/kloakk
Rolig
Utsikt
Bademulighet
Turterreng
Balansert ventilasjon
Om boligen
Velkommen til herlige Hervik og Laupen 19!
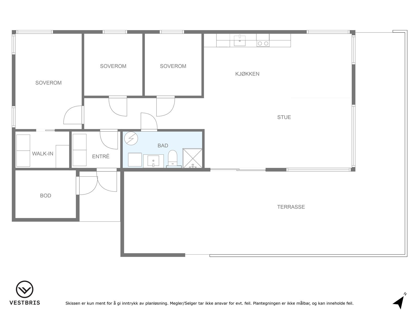
Her har vi gleden av å presentere en nydelig enebolig som i dag er brukt som fritidsbolig av nåværende eier. Boligen er oppført i 2022 og har alt på ett plan. Stor entré med god plass til yttertøy og sko. Tre soverom, pent fullfliset baderom med dusj, vegghengt wc og opplegg til vaskemaskin. Stor, lys stue med åpen løsning til kjøkken hvor det er god plass til sofagruppe og spisestue. Lys, tidsriktig og moderne kjøkkeninnredning med integrerte hvitevarer. Stor, solrik og usjenert terrasse hvor du kan nyte optimale solforhold.
Ved sjøen i Hervikvegen 820 medfølger også båtplass nr. 16 på felles utrigger.
Borettslaget har avtale om individuell nedbetaling av andel fellesgjeld.
Velkommen til visning!
Her har vi gleden av å presentere en nydelig enebolig som i dag er brukt som fritidsbolig av nåværende eier. Boligen er oppført i 2022 og har alt på ett plan. Stor entré med god plass til yttertøy og sko. Tre soverom, pent fullfliset baderom med dusj, vegghengt wc og opplegg til vaskemaskin. Stor, lys stue med åpen løsning til kjøkken hvor det er god plass til sofagruppe og spisestue. Lys, tidsriktig og moderne kjøkkeninnredning med integrerte hvitevarer. Stor, solrik og usjenert terrasse hvor du kan nyte optimale solforhold.
Ved sjøen i Hervikvegen 820 medfølger også båtplass nr. 16 på felles utrigger.
Borettslaget har avtale om individuell nedbetaling av andel fellesgjeld.
Velkommen til visning!
NB: Knappen for å vise hele beskrivelsen har kun en visuell effekt.
NB: Knappen for å vise hele beskrivelsen har kun en visuell effekt.
Salgsoppgaven beskriver vesentlig og lovpålagt informasjon om eiendommen
Se komplett salgsoppgaveNærområdet
Meglerhuset Rele Karmøy AS
Det komplette meglerhuset
Annonseinformasjon
| FINN-kode | 409093825 |
|---|---|
| Sist endret | 19. nov. 2025 19:05 |
| Referanse | 2-0143/25 |
Annonsene kan være mangelfulle i forhold til lovpålagt opplysningsplikt. Før bindende avtale inngås oppfordres interessenter til å innhente komplett informasjon fra meglerforetaket, selger eller utleier.
































