Bildegalleri

Krogsveen v/ Emilio de Paoli Dunne | Martin Johansens veg 43. Foto: Flytende Film AS (Thor Øyvind Borgersen).
Råholt
Innholdsrik enebolig med hybel i underetasjen (leieinntekt - kr. 13.500,-) | Barnevennlig og rolig område | Garasje
Prisantydning5 990 000 kr
Nøkkelinfo
- Boligtype
- Enebolig
- Eieform
- Eier (Selveier)
- Soverom
- 4
- Internt bruksareal
- 211 m² (BRA-i)
- Bruksareal
- 238 m²
- Eksternt bruksareal
- 27 m² (BRA-e)
- Balkong/Terrasse
- 30 m² (TBA)
- Etasje
- 2
- Byggeår
- 1973
- Energimerking
- E - Oransje
- Rom
- 7
- Tomteareal
- 888 m² (eiet)
Fasiliteter
Balkong/Terrasse
Barnevennlig
Garasje/P-plass
Hage
Offentlig vann/kloakk
Rolig
Sentralt
Turterreng
Om boligen
Enebolig over to plan med gjennomgående god standard og stort utleiepotensial. Underetasjen er i dag leid for kr. 13.500,- pr mnd. Boligen går over to plan med funksjonell planløsning, hybel i underetasjen og mange gode løsninger. Boligen har moderne kjøkken og tiltalende bad i begge etasjene, videre preges boligen av store og gode rom med mye naturlig lys og godt med plass - perfekt familiebolig med nok boltreplass både inne og ute. Her leker barne i trygge omgivelser innerst i blindveg uten gjennomgangstrafikk.
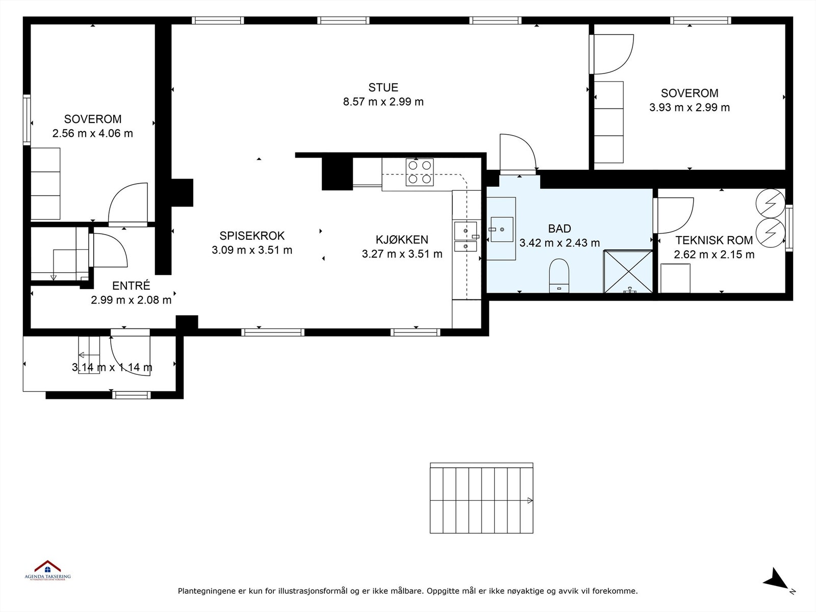
Boligen går over to plan, og begge etasjene kan leies ut separat, og har følgende rominndeling:
- Underetasje: Entré, kjøkken, stue, gang, bad, to soverom og teknisk rom.
- 1. etasje: Gang, kjøkken, stue, bad, to soverom, gang med trapp og bod.
Velkommen!
Boligen går over to plan, og begge etasjene kan leies ut separat, og har følgende rominndeling:
- Underetasje: Entré, kjøkken, stue, gang, bad, to soverom og teknisk rom.
- 1. etasje: Gang, kjøkken, stue, bad, to soverom, gang med trapp og bod.
Velkommen!
NB: Knappen for å vise hele beskrivelsen har kun en visuell effekt.
NB: Knappen for å vise hele beskrivelsen har kun en visuell effekt.
Salgsoppgaven beskriver vesentlig og lovpålagt informasjon om eiendommen
Se komplett salgsoppgaveNyttige lenker
Nærområdet
Krogsveen Jessheim
Verdien av en god megler.
Annonseinformasjon
| FINN-kode | 409090700 |
|---|---|
| Sist endret | 20. jan. 2026 07:43 |
| Referanse | KR63.25108 |
Annonsene kan være mangelfulle i forhold til lovpålagt opplysningsplikt. Før bindende avtale inngås oppfordres interessenter til å innhente komplett informasjon fra meglerforetaket, selger eller utleier.















































