Bildegalleri

Solgt
Hamar
Lys 2-roms leilighet med hyggelig balkong og flislagt bad. Moderniseringsbehov.
Prisantydning1 690 000 kr
Nøkkelinfo
- Boligtype
- Leilighet
- Eieform
- Andel
- Soverom
- 1
- Internt bruksareal
- 51 m² (BRA-i)
- Bruksareal
- 51 m²
- Balkong/Terrasse
- 8 m² (TBA)
- Etasje
- 2
- Byggeår
- 1965
- Energimerking
- D - Gul
- Rom
- 2
- Tomteareal
- 18 710 m² (eiet)
Fasiliteter
Barnevennlig
Balkong/Terrasse
Kabel-TV
Heis
Offentlig vann/kloakk
Turterreng
Bredbåndstilknytning
Rolig
Om boligen
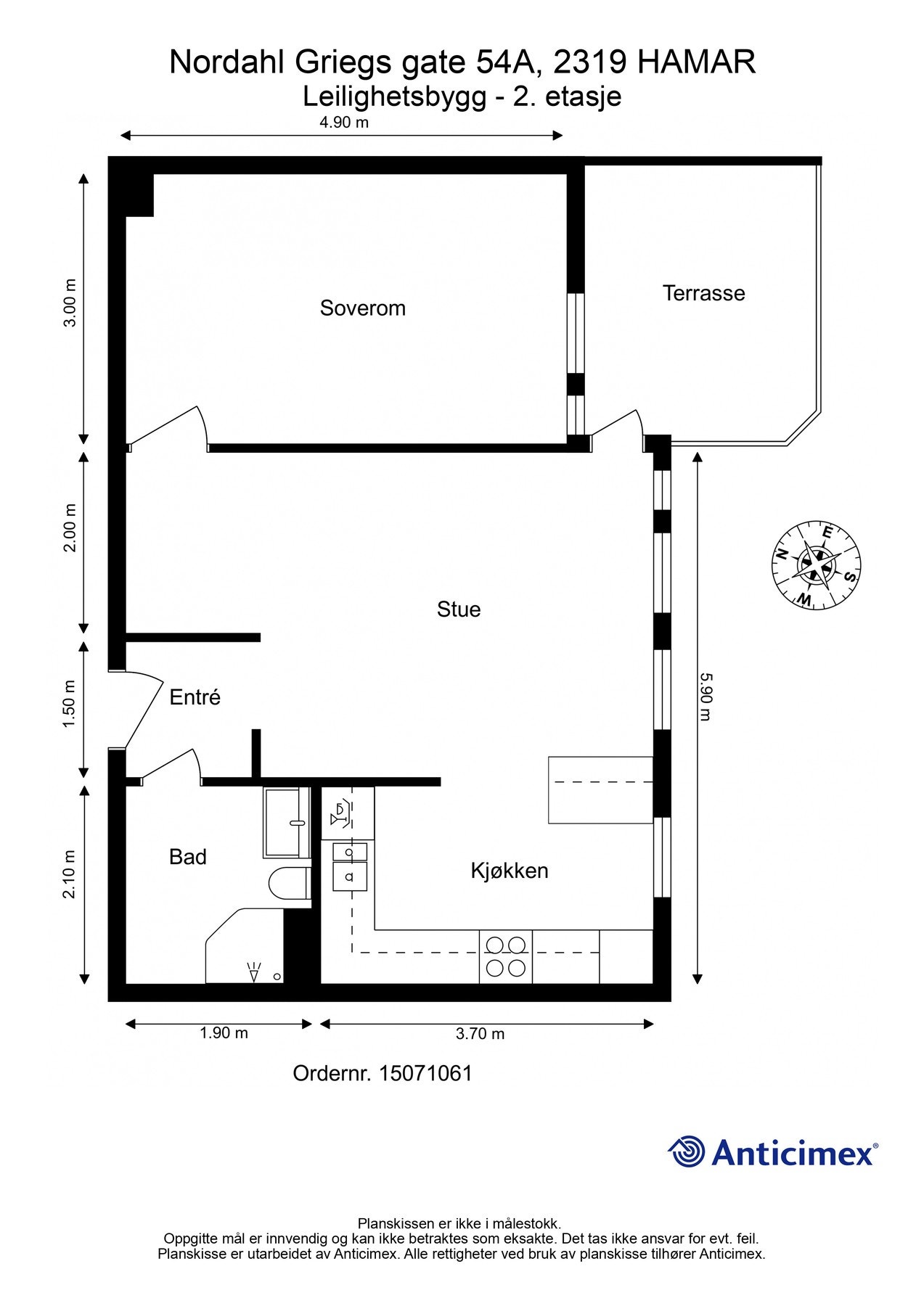
Velkommen til Nordahl Griegs gate 54A og denne lyse 2-roms andelsleiligheten på Mæhlumsløkka!
Leiligheten ligger i byggets 2. etasje og har en romslig planløsning med stor stue, åpen kjøkkenløsning, ett soverom og bad. Det er også en overbygget balkong hvor det er flotte solforhold. Leiligheten er lys og har moderniseringsbehov. Adkomst til leiligheten via felles trapperom med heis. Her bor du i rolige omgivelser med flotte turmuligheter i umiddelbar nærhet. Det er også gangavstand til dagligvarebutikk, skole og barnehage. Kun 2 km til sentrumskjernen i Hamar hvor du finner alle servicefasiliteter, samt skysstasjon med hyppige togavganger til Oslo og Gardermoen.
Velkommen til en hyggelig visning!
Leiligheten ligger i byggets 2. etasje og har en romslig planløsning med stor stue, åpen kjøkkenløsning, ett soverom og bad. Det er også en overbygget balkong hvor det er flotte solforhold. Leiligheten er lys og har moderniseringsbehov. Adkomst til leiligheten via felles trapperom med heis. Her bor du i rolige omgivelser med flotte turmuligheter i umiddelbar nærhet. Det er også gangavstand til dagligvarebutikk, skole og barnehage. Kun 2 km til sentrumskjernen i Hamar hvor du finner alle servicefasiliteter, samt skysstasjon med hyppige togavganger til Oslo og Gardermoen.
Velkommen til en hyggelig visning!
NB: Knappen for å vise hele beskrivelsen har kun en visuell effekt.
NB: Knappen for å vise hele beskrivelsen har kun en visuell effekt.
Salgsoppgaven beskriver vesentlig og lovpålagt informasjon om eiendommen
Se komplett salgsoppgaveNyttige lenker
Nærområdet
EIE eiendomsmegling Innlandet
Annonseinformasjon
| FINN-kode | 409073249 |
|---|---|
| Sist endret | 04. juli 2025 10:19 |
| Referanse | 72250158 |
Annonsene kan være mangelfulle i forhold til lovpålagt opplysningsplikt. Før bindende avtale inngås oppfordres interessenter til å innhente komplett informasjon fra meglerforetaket, selger eller utleier.

























