Bildegalleri

EIE eiendomsmegling ved Alexander Reitan har gleden av å presentere Klemmets veg 226!
Solgt
Brekkåsen
Innbydende rekkehus i et rolig og barnevennlig boligområde | 3 soverom | Vaskerom | Parkering i garasje | IN-ordning.
Prisantydning2 590 000 kr
Nøkkelinfo
- Boligtype
- Rekkehus
- Eieform
- Andel
- Soverom
- 3
- Internt bruksareal
- 109 m² (BRA-i)
- Bruksareal
- 109 m²
- Balkong/Terrasse
- 25 m² (TBA)
- Byggeår
- 2008
- Energimerking
- C - Rød
- Rom
- 4
- Tomt
- Eiet
Fasiliteter
Barnevennlig
Balkong/Terrasse
Garasje/P-plass
Kabel-TV
Offentlig vann/kloakk
Bredbåndstilknytning
Moderne
Rolig
Balansert ventilasjon
Om boligen
EIE eiendomsmegling ved Alexander Reitan har gleden av å presentere Klemmets veg 226! Velkommen til et moderne og innbydende rekkehus i et rolig og barnevennlig nabolag på populære Brekkåsen. Her får du en gjennomført bolig med stilrene og tidløse fargevalg, praktiske løsninger og god plass til hele familien.
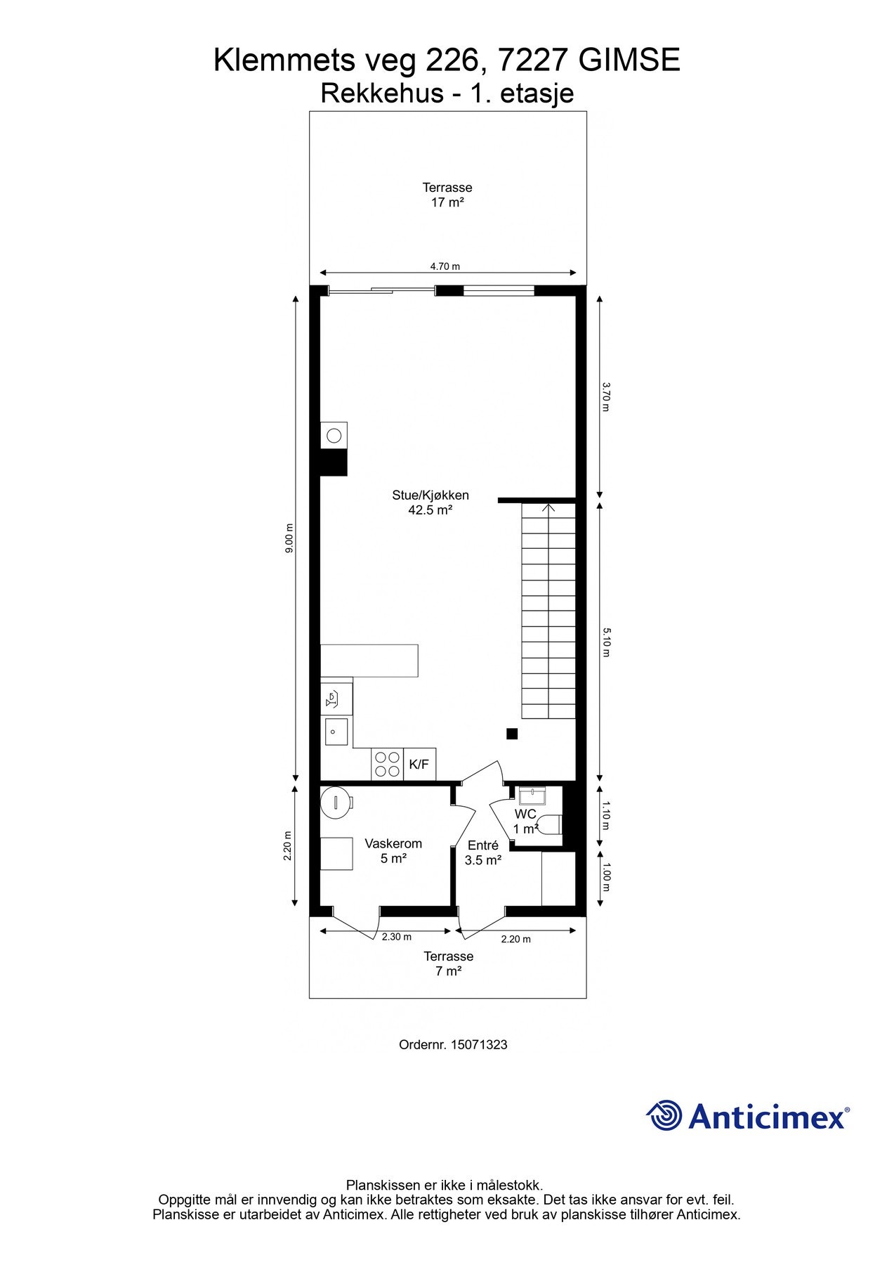
Boligen har en praktisk planløsning med blant annet stue, kjøkken, tre soverom, bad, toalettrom, eget vaskerom og en bod samt kaldloft med god lagringsplass. Rekkehuset har også en tilhørende parkeringsplass i felles parkeringskjeller og en solrik terrasse.
Merk deg dette:
- Balansert ventilasjon og downlights
- Solrik terrasse med lite innsyn
- 3 store soverom
- Skole, barnehage og idrettsanlegg i umiddelbar nærhet.
- P-plass i oppvarmet p-kjeller med mulighet for elbillader
- IN-ordning gir mulighet for individuell nedbetaling
- Veletablert borettslag med hyggelige naboskap
- Praktisk separat vaskerom.
- Flott kjøkken med TG 1
- Gode bussforbindelser
Velkommen til visning!
Boligen har en praktisk planløsning med blant annet stue, kjøkken, tre soverom, bad, toalettrom, eget vaskerom og en bod samt kaldloft med god lagringsplass. Rekkehuset har også en tilhørende parkeringsplass i felles parkeringskjeller og en solrik terrasse.
Merk deg dette:
- Balansert ventilasjon og downlights
- Solrik terrasse med lite innsyn
- 3 store soverom
- Skole, barnehage og idrettsanlegg i umiddelbar nærhet.
- P-plass i oppvarmet p-kjeller med mulighet for elbillader
- IN-ordning gir mulighet for individuell nedbetaling
- Veletablert borettslag med hyggelige naboskap
- Praktisk separat vaskerom.
- Flott kjøkken med TG 1
- Gode bussforbindelser
Velkommen til visning!
NB: Knappen for å vise hele beskrivelsen har kun en visuell effekt.
NB: Knappen for å vise hele beskrivelsen har kun en visuell effekt.
Salgsoppgaven beskriver vesentlig og lovpålagt informasjon om eiendommen
Se komplett salgsoppgaveNyttige lenker
Nærområdet
EIE eiendomsmegling Trondheim sentrum
Annonseinformasjon
| FINN-kode | 409065889 |
|---|---|
| Sist endret | 27. aug. 2025 10:18 |
| Referanse | 33251067 |
Annonsene kan være mangelfulle i forhold til lovpålagt opplysningsplikt. Før bindende avtale inngås oppfordres interessenter til å innhente komplett informasjon fra meglerforetaket, selger eller utleier.

































