Bildegalleri

Velkommen til Kleppvegen 46!
PORSGRUNN - KLEPP/HOVENGA
Fantastisk teglsteinsvilla i landlige omgivelser. Flott bassenghus m/motstrømsbasseng. Utleidel. Vannbåren varme.
Prisantydning16 500 000 kr
Nøkkelinfo
- Boligtype
- Enebolig
- Eieform
- Eier (Selveier)
- Soverom
- 5
- Internt bruksareal
- 429 m² (BRA-i)
- Bruksareal
- 547 m²
- Eksternt bruksareal
- 118 m² (BRA-e)
- Byggeår
- 2007
- Energimerking
- G - Rød
- Rom
- 9
- Tomteareal
- 1 681 m² (eiet)
Fasiliteter
Barnevennlig
Bredbåndstilknytning
Hage
Offentlig vann/kloakk
Parkett
Peis/Ildsted
Rolig
Utsikt
Turterreng
Lademulighet
Visning
Alle våre visninger har påmelding. På denne måten sikrer vi at megler har god oversikt og tid til å imøtekomme alle interessenter. Meld deg på visning ved å trykke på lenken visningspåmelding.
VisningspåmeldingOm boligen
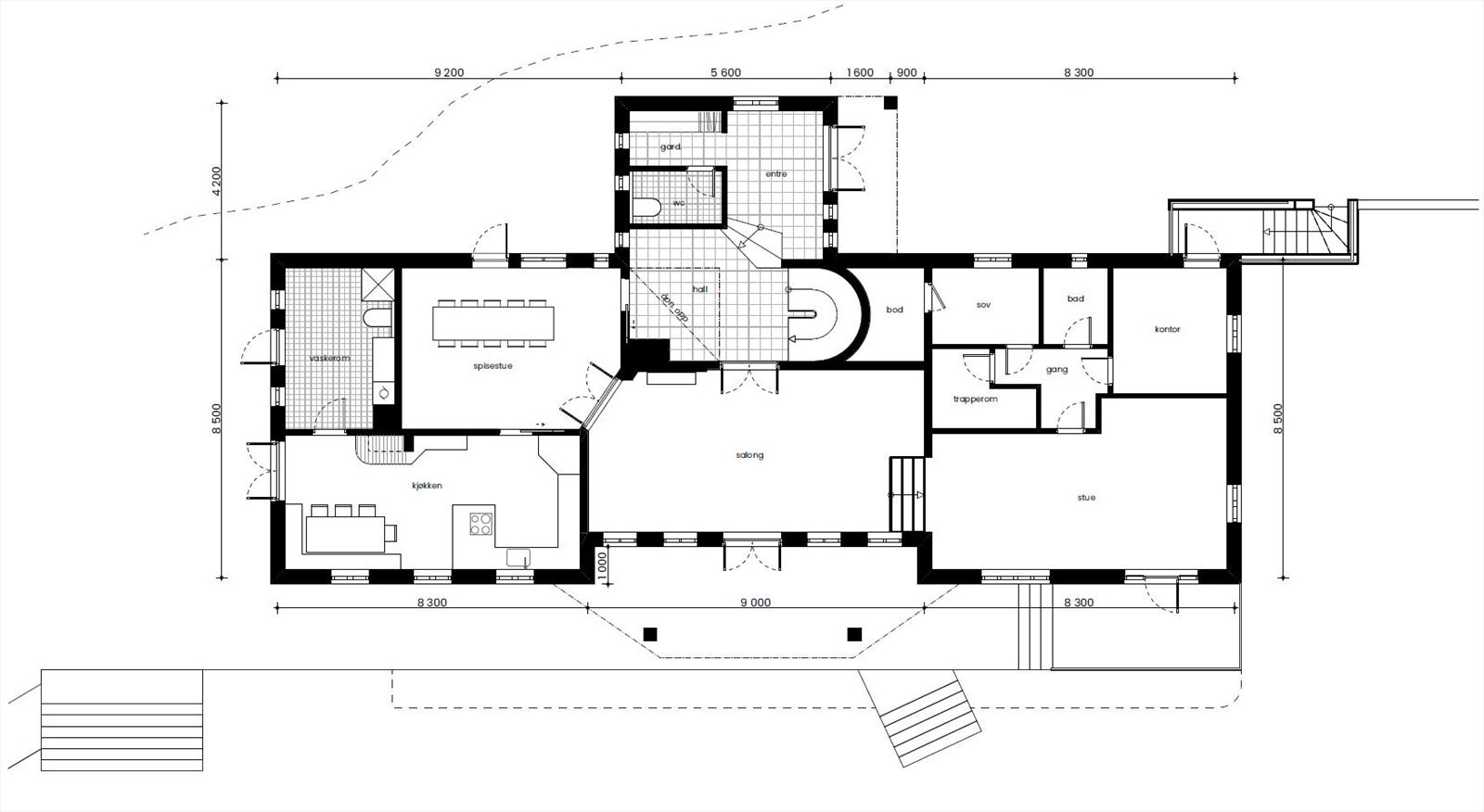
Klassisk, representativ murvilla beliggende rolig og tilbaketrukket på Klepp. Perfekt beliggenhet hva gjelder kombinasjon av landlige omgivelser, og likevel sentralt nær Hovenga med kun 6-7 min. kjøring til Porsgrunn sentrum. Fine turmuligheter i nærområdet.
- Boligen er på hele 474 kvm. bruksareal, og inneholder bl.a. separat utleieleilighet (utleid kr. 11.000,-/mnd) og egen kontordel som passer perfekt for hjemmekontor eller om man har egen praksis. Begge med egen inngang.
- Flott bassenghus på 73 kvm. med motstrømsbasseng. Benyttes også som treningsrom i dag.
- Stor tomt på 1.681 m² som er pent særdeles flott opparbeidet med fine steinlagte uteplasser rundt boligen, og rikt beplantet hage. Svært gode solforhold.
- God plass til oppføring av stor garasje hvis ønskelig.
NB: Knappen for å vise hele beskrivelsen har kun en visuell effekt.
NB: Knappen for å vise hele beskrivelsen har kun en visuell effekt.
Salgsoppgaven beskriver vesentlig og lovpålagt informasjon om eiendommen
Se komplett salgsoppgaveNyttige lenker
Nærområdet
Nordvik Skien Porsgrunn
Annonseinformasjon
| FINN-kode | 409008491 |
|---|---|
| Sist endret | 19. jan. 2026 10:06 |
| Referanse | 24-0156/24 |
Annonsene kan være mangelfulle i forhold til lovpålagt opplysningsplikt. Før bindende avtale inngås oppfordres interessenter til å innhente komplett informasjon fra meglerforetaket, selger eller utleier.


















































































