Bildegalleri

Eiendomsmegler Espen Thoresen presenterer Skjelbekkåsen 51!
Skien - Skotfoss
Stor familiebolig med garasje, gode solforhold og ryddige, velstelte uteområder beliggende i barnevennlig område
Prisantydning3 490 000 kr
Nøkkelinfo
- Boligtype
- Enebolig
- Eieform
- Eier (Selveier)
- Soverom
- 3
- Internt bruksareal
- 244 m² (BRA-i)
- Bruksareal
- 265 m²
- Eksternt bruksareal
- 21 m² (BRA-e)
- Balkong/Terrasse
- 94 m² (TBA)
- Byggeår
- 1987
- Energimerking
- F - Oransje
- Tomteareal
- 625 m² (eiet)
Fasiliteter
Aircondition
Balkong/Terrasse
Barnevennlig
Garasje/P-plass
Hage
Offentlig vann/kloakk
Peis/Ildsted
Rolig
Utsikt
Turterreng
Visning
Ønsker du å delta på visning så ber vi om at du melder deg på slik at vi vet at du kommer og slik at vi kan orientere deg om bud. Visninger hvor det ikke er påmeldte på forhånd vil ikke bli avholdt.
VisningspåmeldingOm boligen
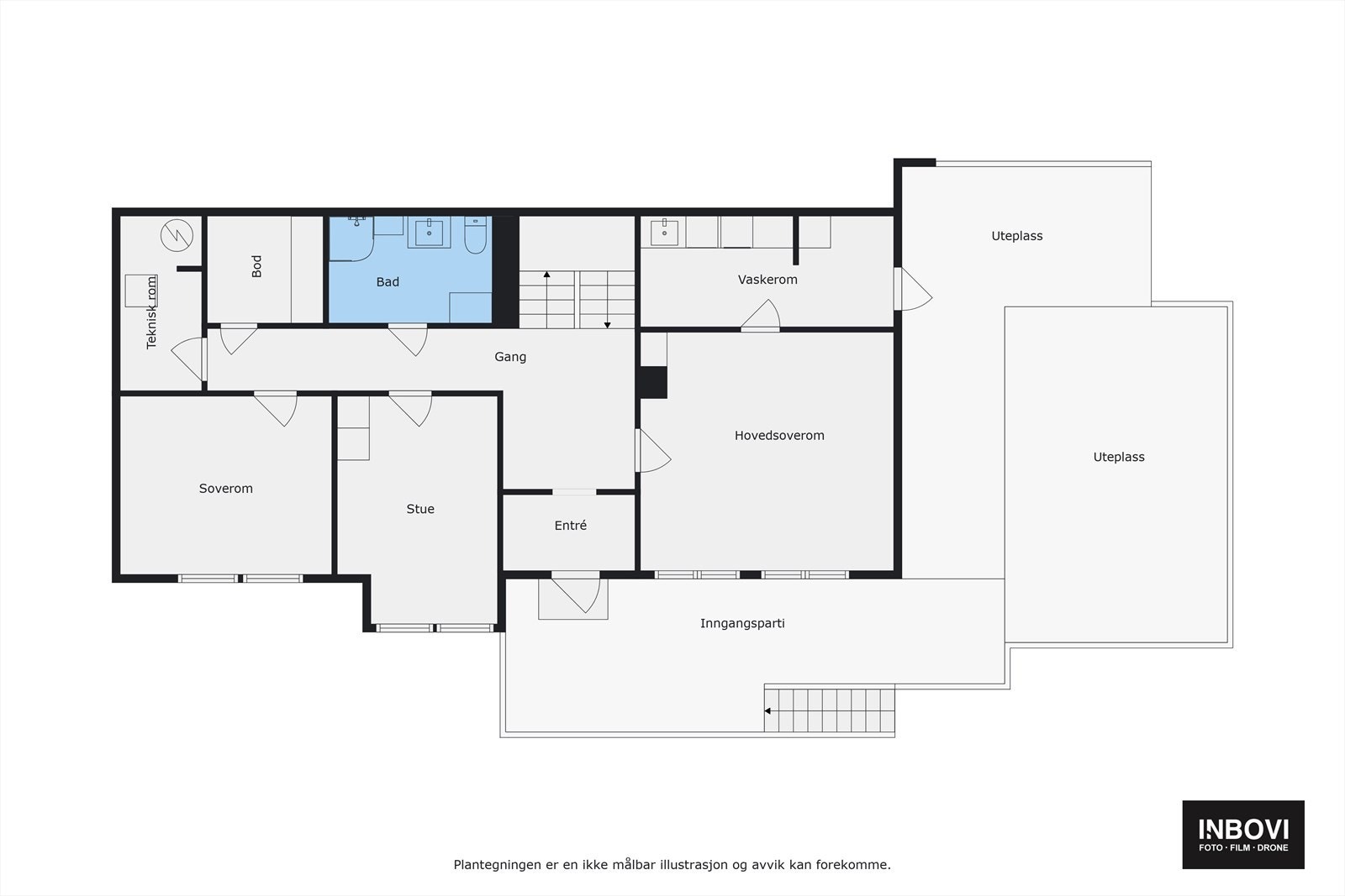
Innholdsrik enebolig med garasje, gode solforhold og ryddige uteareal, beliggende på populære Skjelbekkåsen på Skotfoss. Gangavstand til skole, barnehage, nærbutikk og frisør. Det er også kort vei til idrettsbane, kunstgressbane m.m., samt mange tilbud og aktiviteter for store og små.
Romslig stue med både vedovn og varmepumpe, kjøkken med spiseplass, to bad og eget vaskerom med mye mer. Garasje med automatisk portåpner og ladeboks til el-bil.
Fra Skotfoss er det i underkant av 6 km til Skien sentrum med alle byens fasiliteter og servicetilbud. Bussforbindelse langs Skotfossvegen.
NB: Boligen leies ut fra høsten 2025 for kr 20 000,-. mnd + strøm til noen automatikere, leieavtalen kan overtas ved eierskifte. Kontakt megler for mer informasjon.
Velkommen!
Romslig stue med både vedovn og varmepumpe, kjøkken med spiseplass, to bad og eget vaskerom med mye mer. Garasje med automatisk portåpner og ladeboks til el-bil.
Fra Skotfoss er det i underkant av 6 km til Skien sentrum med alle byens fasiliteter og servicetilbud. Bussforbindelse langs Skotfossvegen.
NB: Boligen leies ut fra høsten 2025 for kr 20 000,-. mnd + strøm til noen automatikere, leieavtalen kan overtas ved eierskifte. Kontakt megler for mer informasjon.
Velkommen!
NB: Knappen for å vise hele beskrivelsen har kun en visuell effekt.
NB: Knappen for å vise hele beskrivelsen har kun en visuell effekt.
Salgsoppgaven beskriver vesentlig og lovpålagt informasjon om eiendommen
Se komplett salgsoppgaveNyttige lenker
Nærområdet
EiendomsMegler 1 Skien
et foretak i SpareBank 1 Sør-Norge konsernet
Annonseinformasjon
| FINN-kode | 408780796 |
|---|---|
| Sist endret | 26. sep. 2025 13:58 |
| Referanse | 1410250135 |
Annonsene kan være mangelfulle i forhold til lovpålagt opplysningsplikt. Før bindende avtale inngås oppfordres interessenter til å innhente komplett informasjon fra meglerforetaket, selger eller utleier.










































