Bildegalleri

Velkommen til Bygdøynesveien 9 C - presentert av Tinholt Eiendomsmegling.
BYGDØY
Ny eksklusiv leilighet på 357 m² I Heis I Fantastisk utsikt I Stor, solrik terr. 75 kvm I 2 garasjeplasser I Høy stand.
Prisantydning49 000 000 kr
Nøkkelinfo
- Boligtype
- Leilighet
- Eieform
- Eier (Selveier)
- Soverom
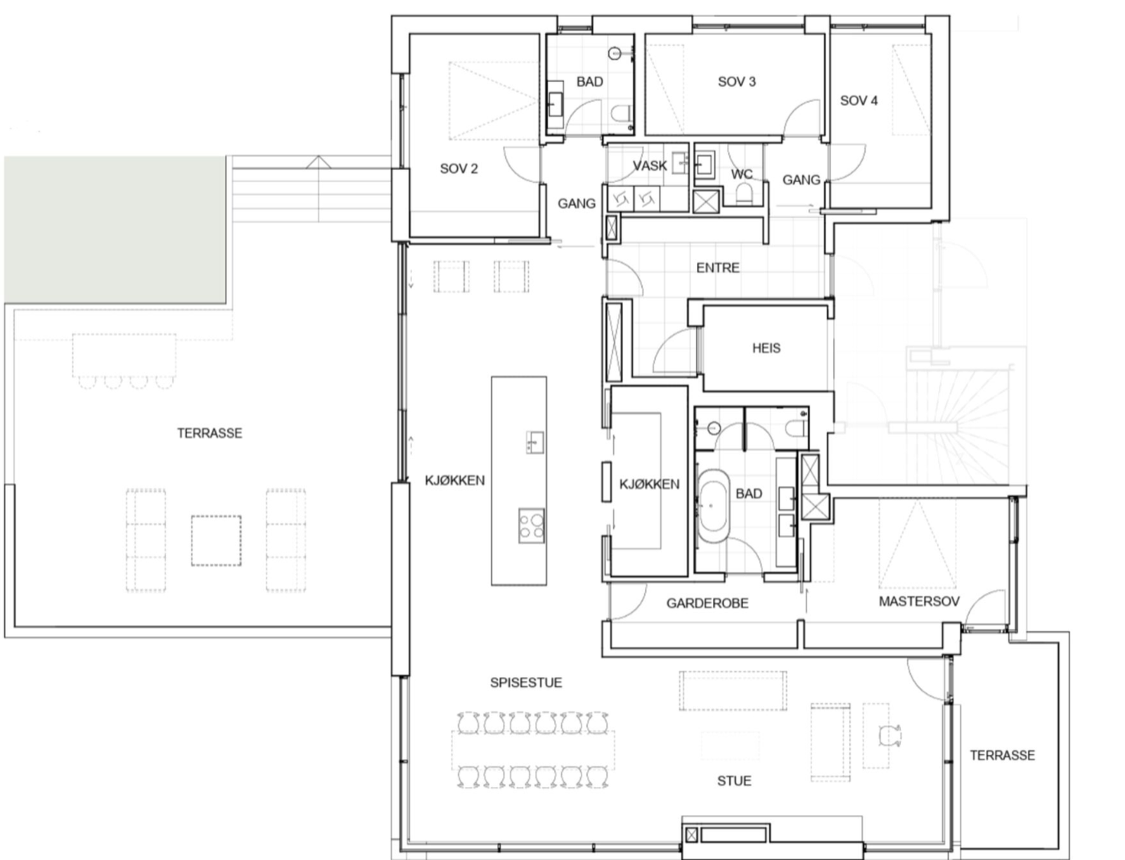
- 4
- Internt bruksareal
- 314 m² (BRA-i)
- Bruksareal
- 357 m²
- Eksternt bruksareal
- 43 m² (BRA-e)
- Balkong/Terrasse
- 86 m² (TBA)
- Etasje
- 1
- Byggeår
- 2023
- Tomteareal
- 2 541 m² (eiet)
Fasiliteter
Barnevennlig
Balkong/Terrasse
Garasje/P-plass
Heis
Offentlig vann/kloakk
Parkett
Peis/Ildsted
Turterreng
Utsikt
Sentralt
Bredbåndstilknytning
Moderne
Rolig
Lademulighet
Balansert ventilasjon
Om boligen
Velkommen til Bygdøynesveien 9 C
K V A L I T E T E R
K V A L I T E T E R
- Spektakulær leilighet - sjelden anledning
- Beliggende på et høydedrag sentralt på Bygdøy
- Overbygget balkong på 11 kvm utenfor hovedsoverom
- Terrasse rett utenfor kjøkken på 75 kvm med fantastisk utsikt
- Sømløs overgang mellom stue/ kjøkken og terrassen
- Eksklusive materialvalg over det hele
- Lagt stor vekt på lys, utsikt, stramme linjer, høy kvalitet og gjennomtenkte løsninger
- Enorme vindusflater og panoramautsikt
- Heis rett inn i leiligheten
- Privat dobbelgarasje i garasjeanlegg med egen port og én elbillader.
- Gasspeis
- Kjøkken fra eksklusive Poliform
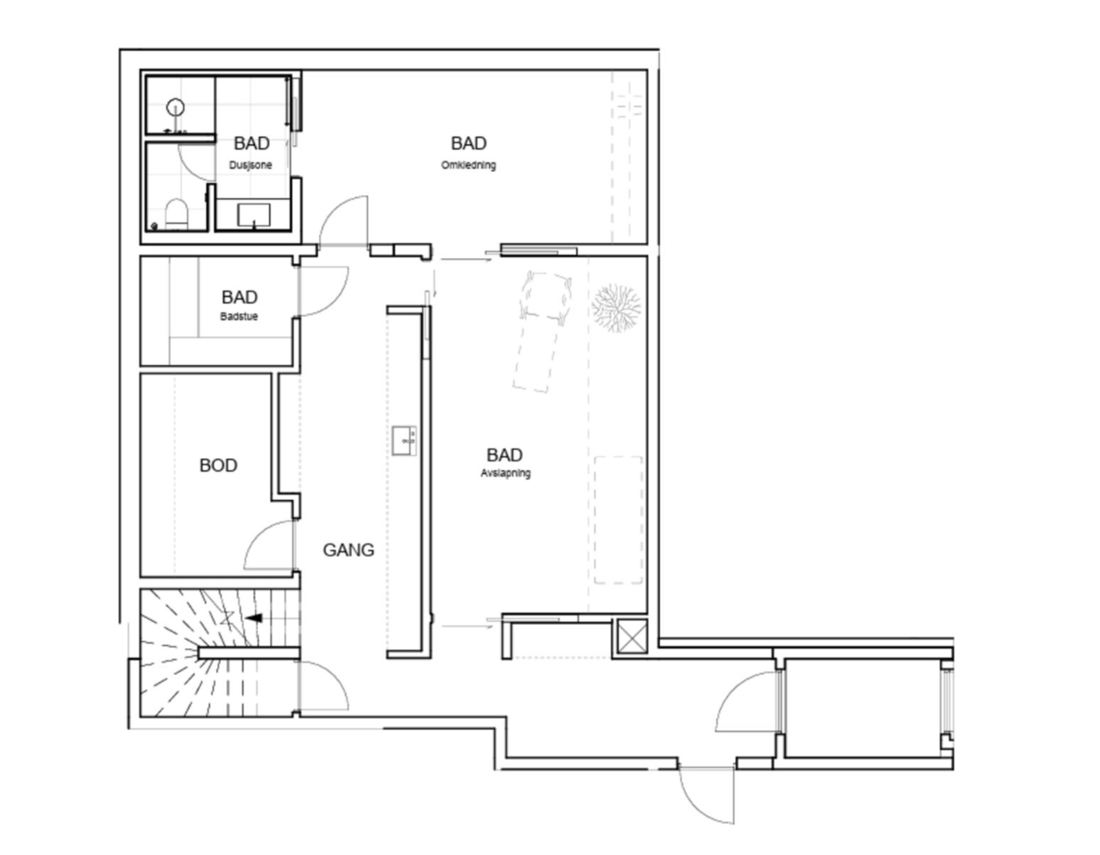
- Det medfølger en romslig underetasje med trimrom, kjøkken, badstue og bod mm.
- Lave omkostninger. Kun dokumentavgift av andel tomteverdi
NB: Knappen for å vise hele beskrivelsen har kun en visuell effekt.
NB: Knappen for å vise hele beskrivelsen har kun en visuell effekt.
Salgsoppgaven beskriver vesentlig og lovpålagt informasjon om eiendommen
Se komplett salgsoppgaveNærområdet
TINHOLT Eiendomsmegling
Du vil kjenne forskjellen
Annonseinformasjon
| FINN-kode | 408763447 |
|---|---|
| Sist endret | 25. nov. 2025 11:43 |
| Referanse | 201250192 |
Annonsene kan være mangelfulle i forhold til lovpålagt opplysningsplikt. Før bindende avtale inngås oppfordres interessenter til å innhente komplett informasjon fra meglerforetaket, selger eller utleier.





































































