Bildegalleri

Søndre Rekvin 4 presenteres av Kenneth Graarud Olsen og Jørgen Sande Johansen i Krogsveen.
Kjøkøy
Lekker enebolig med unik egenart, flott sjøutsikt og moderne standard. Påkostede utearealer. 3 garasjer. 10min. til byen
Prisantydning9 700 000 kr
Nøkkelinfo
- Boligtype
- Enebolig
- Eieform
- Eier (Selveier)
- Soverom
- 4
- Internt bruksareal
- 302 m² (BRA-i)
- Bruksareal
- 340 m²
- Eksternt bruksareal
- 38 m² (BRA-e)
- Balkong/Terrasse
- 90 m² (TBA)
- Etasje
- 2
- Byggeår
- 1982
- Energimerking
- B - Gul
- Tomteareal
- 1 029 m² (eiet)
Fasiliteter
Takterrasse
Balkong/Terrasse
Barnevennlig
Bredbåndstilknytning
Garasje/P-plass
Hage
Kjæledyr tillatt
Ingen gjenboere
Kabel-TV
Offentlig vann/kloakk
Parkett
Peis/Ildsted
Rolig
Utsikt
Bademulighet
Fiskemulighet
Turterreng
Lademulighet
Visning
For å delta på visning, ber vi om at du melder deg på. Da sikrer vi at du får nødvendig informasjon og at det er satt av tilstrekkelig med tid. Kontakt megler dersom annet tidspunkt ønskes. Husk å lese salgsoppgaven før visningen, så du stiller forberedt. NB. Visning utgår dersom det ikke er noen påmeldte.
Ønsker du kun å bli holdt orientert, kan du fra eiendommens hjemmeside få varsel om solgtpris, eller kontakte megler.
VisningspåmeldingOm boligen
Lekker enebolig med unik egenart, tilbaketrukket inntil svaberget på Kjøkøys vestside
- Fin utsikt til sjøen og Hvaler, ute og inne
- Solfylte, inviterende utearealer med mange soner
- Betydelig oppgradert rundt 2005/2006 og samtidig ombygget med mange kvaliteter
- Påkostet og velholdt Kvik-kjøkken med stor barløsning
- Hovedsoverom med hotell-følelse; bad og omkledningsrom en-suite
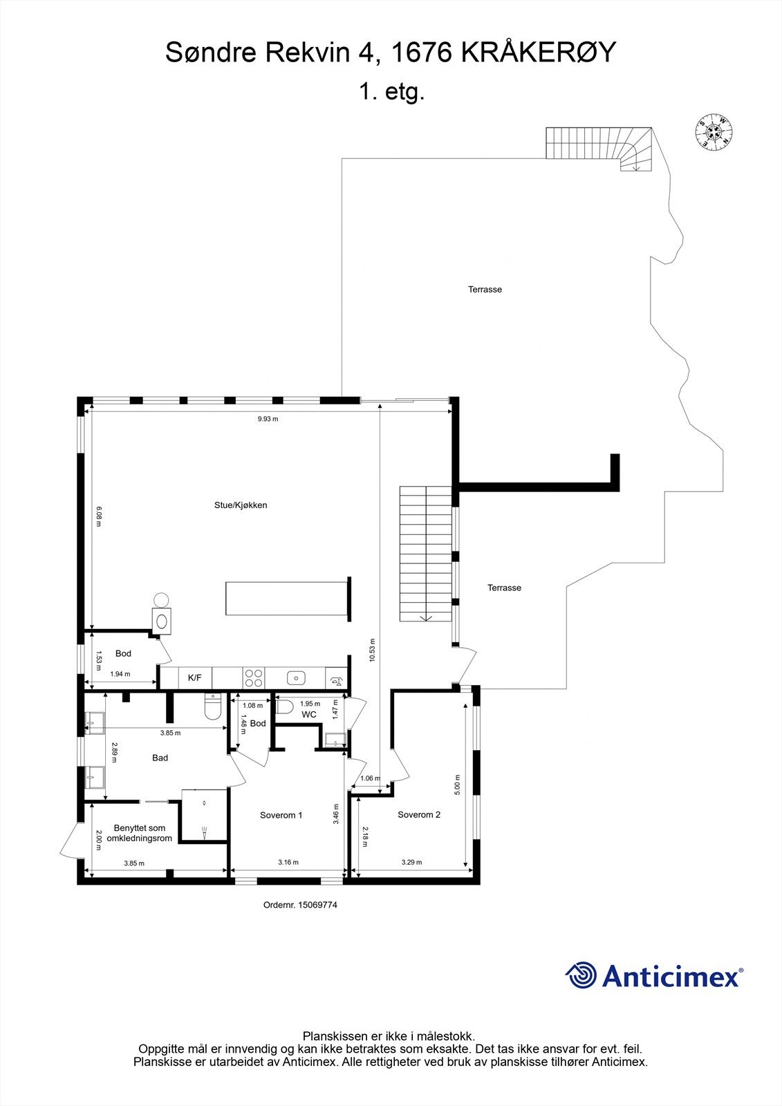
- Familievennlig romløsning med tre barnerom og romslig TV-stue
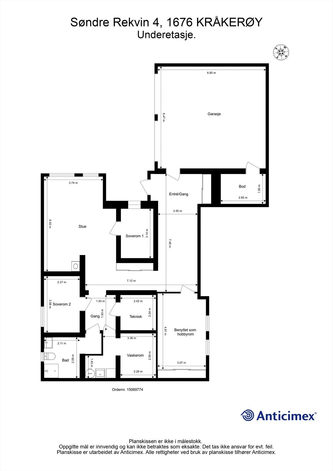
- Bad og vaskerom i underetasje, fornyet rundt 2006
- Vannbåren gulvvarme i hele underetasje og deler av første etasje
- Luft-vann varmepumpe og varmtvannsbereder skiftet ut i 2020
- Dobbelgarasje med forbindelse til entreen
- Frittstående garasje fra 1985
NB: Knappen for å vise hele beskrivelsen har kun en visuell effekt.
NB: Knappen for å vise hele beskrivelsen har kun en visuell effekt.
Salgsoppgaven beskriver vesentlig og lovpålagt informasjon om eiendommen
Se komplett salgsoppgaveNyttige lenker
Nærområdet
Krogsveen Fredrikstad og Sarpsborg
Velkommen til en enklere boligreise.
Annonseinformasjon
| FINN-kode | 408744719 |
|---|---|
| Sist endret | 27. okt. 2025 10:51 |
| Referanse | KR67.25109 |
Annonsene kan være mangelfulle i forhold til lovpålagt opplysningsplikt. Før bindende avtale inngås oppfordres interessenter til å innhente komplett informasjon fra meglerforetaket, selger eller utleier.























































