Bildegalleri

Magnus Grasmo og Christian Halvorsen v/EIE eiendomsmegling har gleden av å presentere Refstadsvingen 23!
Solgt
Lekker og tiltalende 4-roms med balkong på 8 m² | Flott utsyn | God planløsning | V.vann og fyring inkl. | Høy 1.etasje!
Prisantydning4 600 000 kr
Nøkkelinfo
- Boligtype
- Leilighet
- Eieform
- Andel
- Soverom
- 3
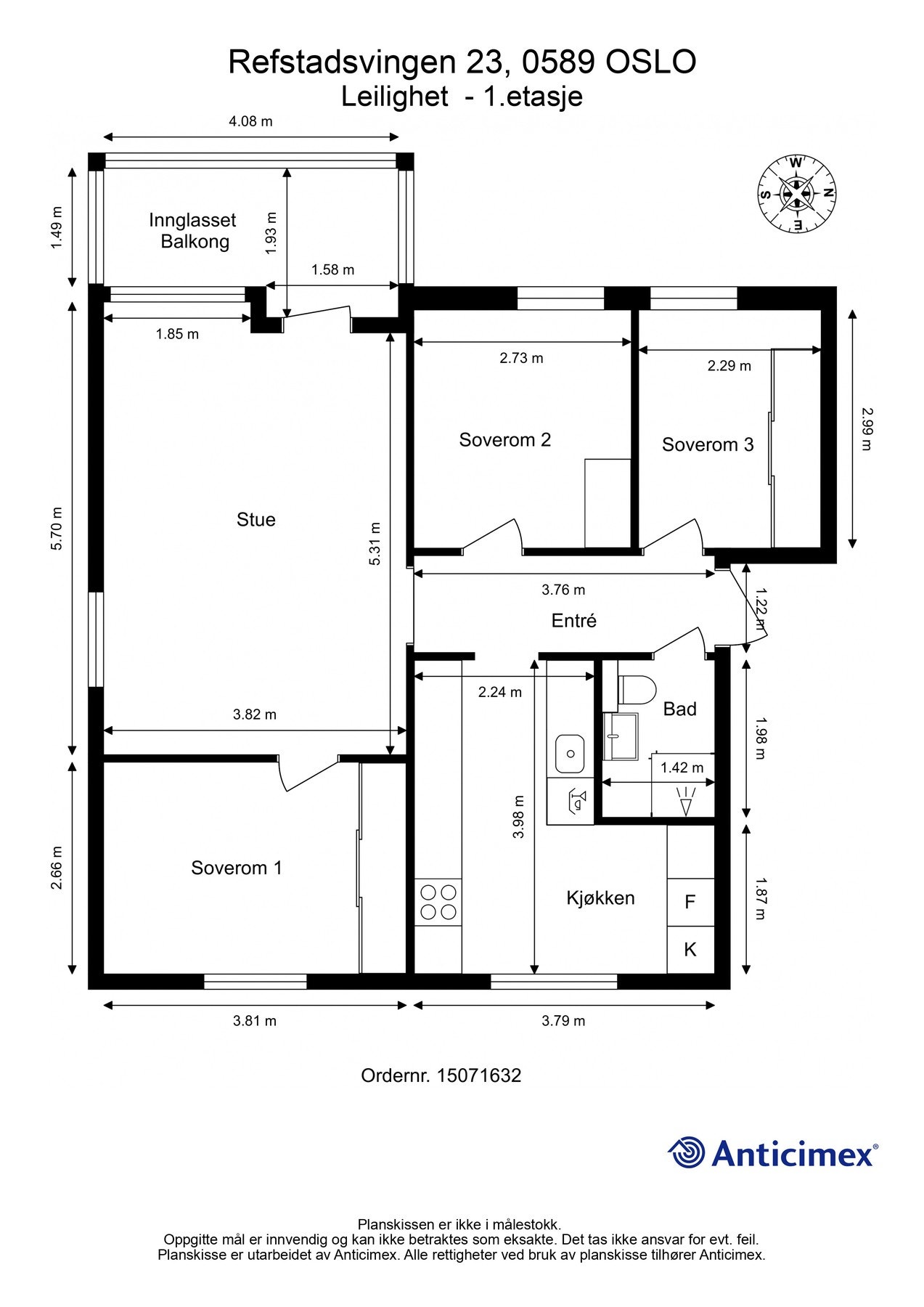
- Internt bruksareal
- 69 m² (BRA-i)
- Bruksareal
- 83 m²
- Eksternt bruksareal
- 6 m² (BRA-e)
- Innglasset balkong
- 8 m² (BRA-b)
- Etasje
- 1
- Byggeår
- 1961
- Energimerking
- F - Lysegrønn
- Rom
- 4
- Tomteareal
- 29 760 m² (eiet)
Fasiliteter
Barnevennlig
Balkong/Terrasse
Offentlig vann/kloakk
Ingen gjenboere
Turterreng
Vaktmester-/vektertjeneste
Fellesvaskeri
Sentralt
Bredbåndstilknytning
Moderne
Rolig
Om boligen
Magnus Grasmo og Christian Stuve Halvorsen v/EIE eiendomsmegling har gleden av å presentere Refstadsvingen 23!
En svært innbyende 4-roms beliggende i høy 1. etasje. Leiligheten har en god planløsning og består av en innbydende entré, et stilrent bad, moderne adskilt kjøkken, stue med plass til sofagruppe og spisebord, samt tre soverom. Videre får du en herlig balkong på 8 m² med flott utsyn! Leiligheten ligger i et attraktivt, sentralt og barnevennlig boligområde på Bjerke i Oslo, like ved Bjerke Travbane. Kort vei til marka, servicetilbud og offentlig transport.
Høydepunkter:
En svært innbyende 4-roms beliggende i høy 1. etasje. Leiligheten har en god planløsning og består av en innbydende entré, et stilrent bad, moderne adskilt kjøkken, stue med plass til sofagruppe og spisebord, samt tre soverom. Videre får du en herlig balkong på 8 m² med flott utsyn! Leiligheten ligger i et attraktivt, sentralt og barnevennlig boligområde på Bjerke i Oslo, like ved Bjerke Travbane. Kort vei til marka, servicetilbud og offentlig transport.
Høydepunkter:
- To boder.
- Tre gode soverom.
- Vestvendt innglasset balkong på 8 m².
- Mulighet for parkering etter liste.
- Nærhet til marka!
- Veldrevet borettslag.
- Nærhet til kollektivt, butikker, skole og barnehager.
- Store fellesarealer med ball- og grillplass
- Beboerparkering
NB: Knappen for å vise hele beskrivelsen har kun en visuell effekt.
NB: Knappen for å vise hele beskrivelsen har kun en visuell effekt.
Salgsoppgaven beskriver vesentlig og lovpålagt informasjon om eiendommen
Se komplett salgsoppgaveNyttige lenker
Nærområdet
EIE eiendomsmegling Lørenskog
Annonsene kan være mangelfulle i forhold til lovpålagt opplysningsplikt. Før bindende avtale inngås oppfordres interessenter til å innhente komplett informasjon fra meglerforetaket, selger eller utleier.
































