Bildegalleri

Lys og tiltalende stue- spisestue- og kjøkkenløsning med peisovn i senter av etasjen.
BUD MOTTATT! JUSTNESHALVØYA - Enebolig i barnevennlig blindvei - Sydvendt utsikt - 4 soverom/2bad/2stuer - Dbl. garasje
Nøkkelinfo
- Boligtype
- Enebolig
- Eieform
- Eier (Selveier)
- Soverom
- 4
- Internt bruksareal
- 168 m² (BRA-i)
- Bruksareal
- 225 m²
- Eksternt bruksareal
- 57 m² (BRA-e)
- Byggeår
- 2011
- Energimerking
- B - Gul
- Tomteareal
- 348 m² (eiet)
Fasiliteter
Om boligen
Tiltalende og meget innholdsrik enebolig i rolig og barnevennlig gate på Justneshalvøya!
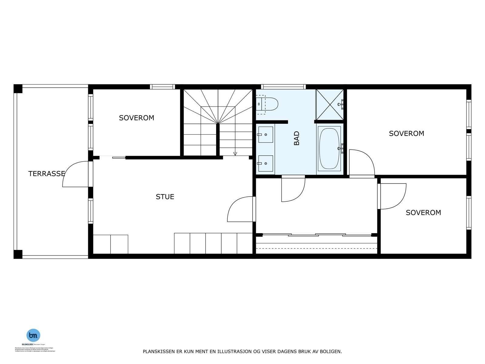
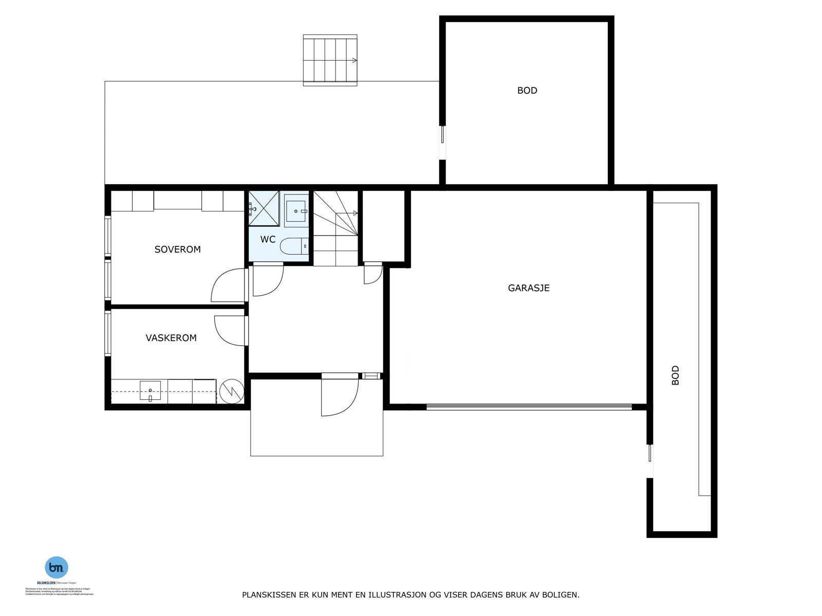
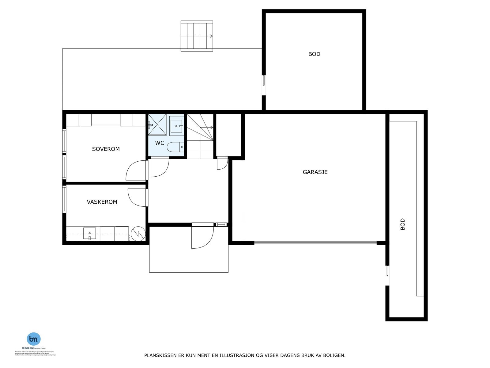
- Boligen har en god planløsning fordelt over tre etasjer og består bl.a av: 4 soverom, 2 bad, vaskerom, loftstue og gjennomgående lys stue-, spisestue og kjøkkenløsing.
- Stort terrasseareal med utgang fra kjøkken samt overbygd veranda i 3.etg med fri, åpen og sydvendt utsikt.
- Dobbel garasje samt god bortsettingsplass i sportsbod (ca. 15 kvm) og bod under terrasse (ikke byggemeldt).
- Lekeplass og ballbinge i umiddelbar nærhet.
- Fantastiske friareal ved sjøen og i skog like ved boligen.
Velkommen til påmeldingsvisning!
Salgsoppgaven beskriver vesentlig og lovpålagt informasjon om eiendommen
Se komplett salgsoppgaveNyttige lenker
Nærområdet
BOLIGMEGLEREN MARCUSSEN HORGEN
Prisstatistikk
Kornblomstveien 48
på annonsen
prisantydning per kvadratmeter
Prisfordeling
Pris per m² ligger 5 416 kr over snittet for eneboliger i Kristiansand Øst.
Grafen viser antall eneboliger solgt i Kristiansand Øst siste året fordelt på pris per m² - totalt 210 eneboliger
Antall boliger
Kvadratmeterpris tilsvarer prisantydning pluss fellesgjeld per kvadratmeter (p-rom eller BRA-i). Prisene i grafen er avrundet til nærmeste 1000 kr.
Annonsene kan være mangelfulle i forhold til lovpålagt opplysningsplikt. Før bindende avtale inngås oppfordres interessenter til å innhente komplett informasjon fra meglerforetaket, selger eller utleier.


























































