Bildegalleri

Ths.W.Schwartz gate 21 presenteres av Jonathan Dahl og Amir Pedersen-Paydar i Krogsveen.
Cicignon
Romslig, klassisk selveierleilighet med stor takhøyde og balkong med kveldssol! 2 min. gange til toget.
Prisantydning3 490 000 kr
Nøkkelinfo
- Boligtype
- Leilighet
- Eieform
- Eier (Selveier)
- Soverom
- 1
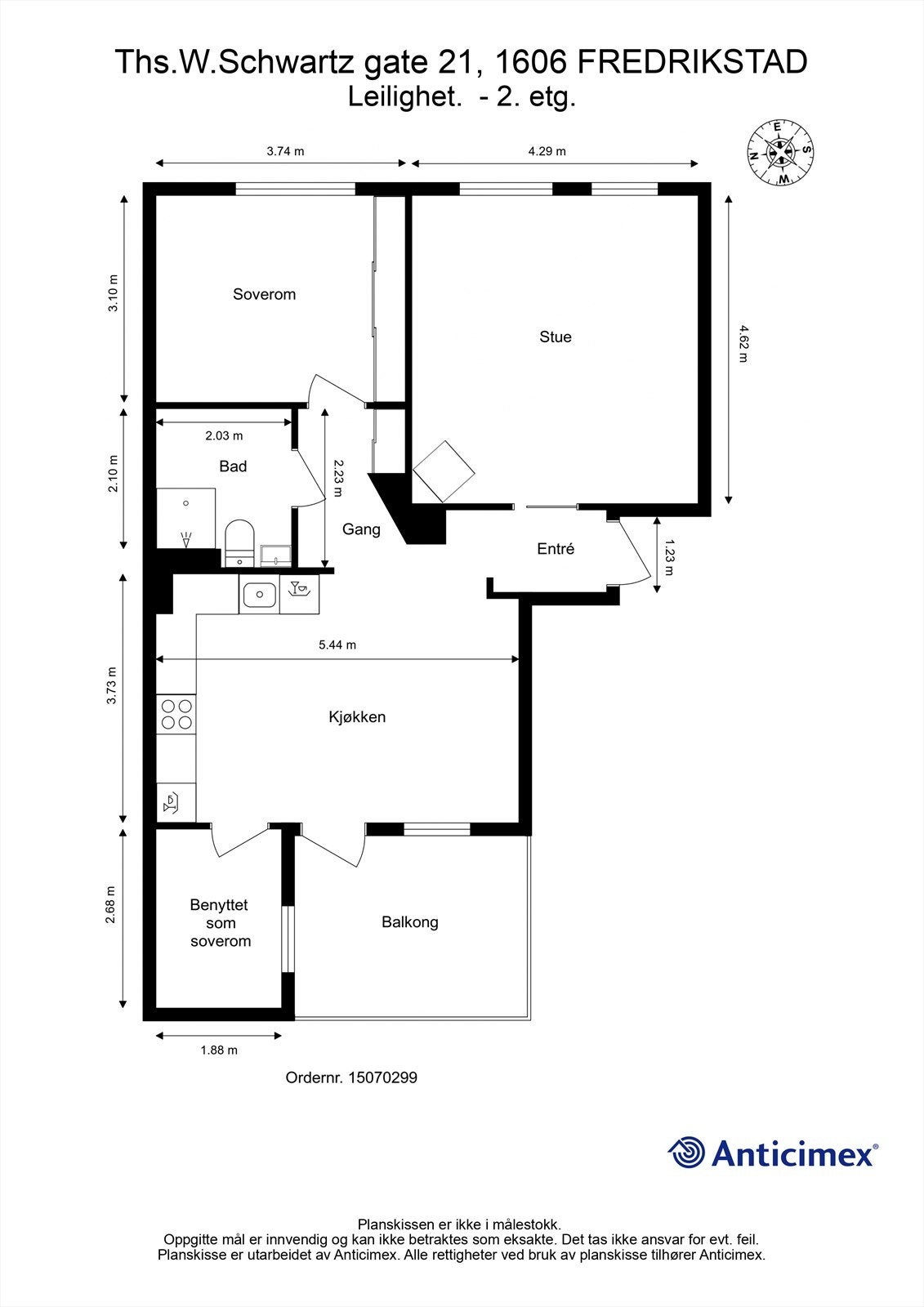
- Internt bruksareal
- 72 m² (BRA-i)
- Bruksareal
- 90 m²
- Eksternt bruksareal
- 18 m² (BRA-e)
- Balkong/Terrasse
- 7 m² (TBA)
- Etasje
- 2
- Byggeår
- 1910
- Energimerking
- G - Rød
- Rom
- 3
- Tomteareal
- 336 m² (eiet)
Fasiliteter
Balkong/Terrasse
Rolig
Sentralt
Utsikt
Turterreng
Om boligen
Stor to-roms selveier i sentrale omgivelser på Cicignon
- Vestvendt balkong med sol fra ettermiddag til sen kveld sommerstid
- Innredet rom benyttet som soverom 2 (ikke byggemeldt)
- Stor takhøyde og fremtredende klassisk atmosfære
- Velholdt kjøkken med integrerte hvitevarer
- Gode lagringsmuligheter i loftsbod og to store kjellerboder
- Ærverdig bygård med vakre klassiske detaljer
- Rolig miljø i gaten utenfor - ingen gjennomkjøringsmulighet
- Attraktive omgivelser og vakre parkområder i nabolaget
- Få minutters gange til togstasjon og sentrumskjernen
NB: Knappen for å vise hele beskrivelsen har kun en visuell effekt.
NB: Knappen for å vise hele beskrivelsen har kun en visuell effekt.
Salgsoppgaven beskriver vesentlig og lovpålagt informasjon om eiendommen
Se komplett salgsoppgaveNyttige lenker
Nærområdet
Krogsveen Fredrikstad og Sarpsborg
Verdien av en god megler.
Annonseinformasjon
| FINN-kode | 408642278 |
|---|---|
| Sist endret | 03. feb. 2026 09:33 |
| Referanse | KR67.25133 |
Annonsene kan være mangelfulle i forhold til lovpålagt opplysningsplikt. Før bindende avtale inngås oppfordres interessenter til å innhente komplett informasjon fra meglerforetaket, selger eller utleier.































