Bildegalleri

OBOS Eiendomsmeglere ved Guro S. Røysi har gleden av å presentere en lys og praktisk 1-roms på Rødtvet.
Lys og praktisk 1-roms på Rødtvet - Innglasset balkong med flott utsikt - Alkove - Kort vei til buss og t-bane
Nøkkelinfo
- Boligtype
- Leilighet
- Eieform
- Andel
- Internt bruksareal
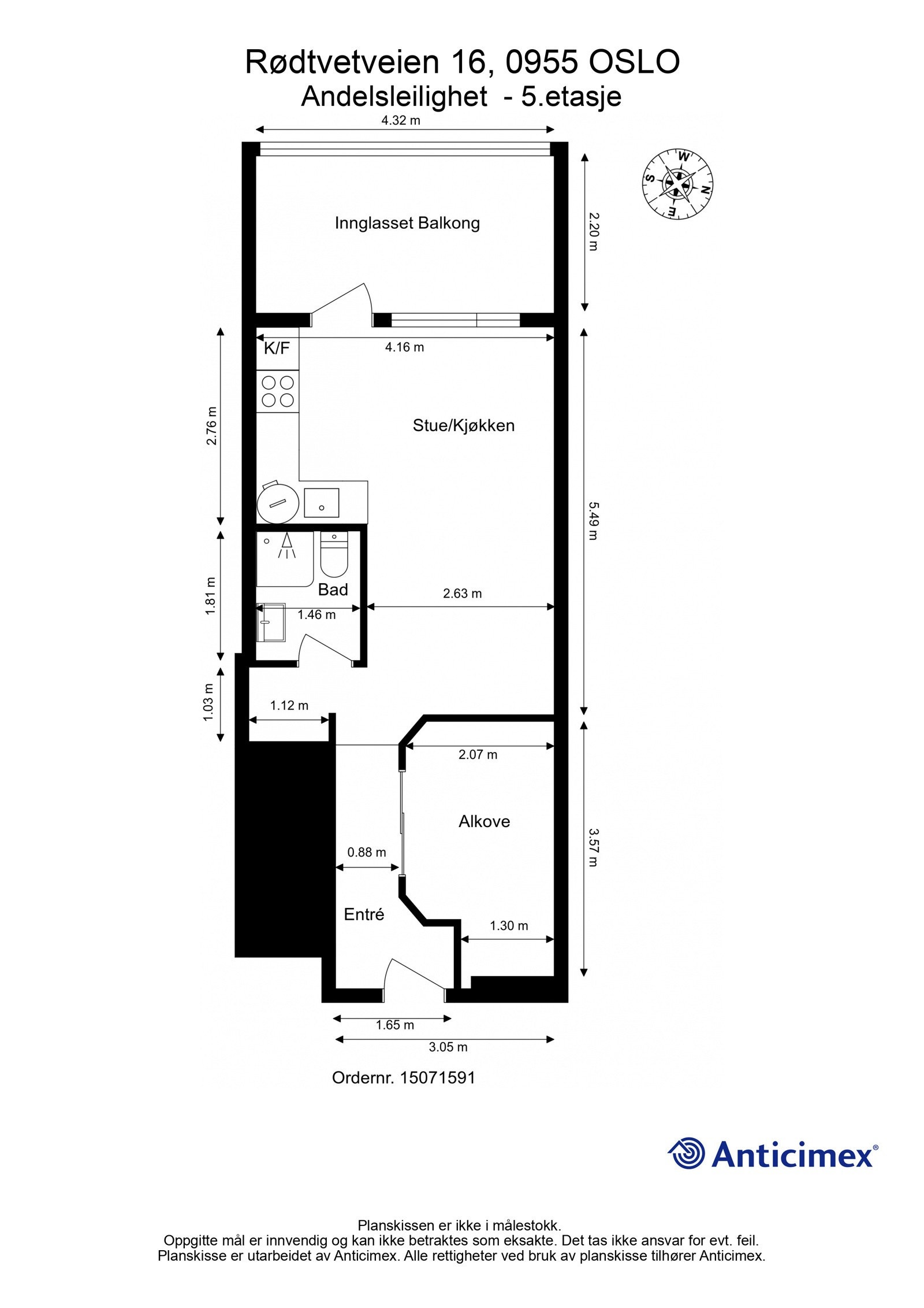
- 35 m² (BRA-i)
- Bruksareal
- 35 m²
- Balkong/Terrasse
- 10 m² (TBA)
- Etasje
- 5
- Byggeår
- 1962
- Rom
- 1
- Tomteareal
- 16 610 m² (festet)
- Festeavgift
- 375 000 kr
Fasiliteter
Om boligen
OBOS Eiendomsmeglere ved Guro S. Røysi har gleden av å presentere en lys og praktisk 1- roms på Rødtvet. Boligen ligger høyt og fritt i blokkens 5 etasje. Innglasset balkong med flott utsikt.
På Rødtvet er det godt å bo, og lett å trives. Her bor man skjermet med marka i nærheten - samtidig er veien til byen kort. Kun et par minutters gange til t-bane og buss.
Kort fortalt:
-Sykkelbod, trimrom og fellesvaskeri i borettslaget
-Heis direkte til etg.
-Veldrevet og populært borettslag
-Boligen disponerer en kjellerbod
-Mulighet for leie av parkeringsplass
-Balkongdør og vindu fra 2015.
-INGEN FORKJØPSRETT!
Salgsoppgaven beskriver vesentlig og lovpålagt informasjon om eiendommen
Se komplett salgsoppgaveNyttige lenker
Nærområdet
OBOS eiendomsmeglere - Kalbakken
Annonseinformasjon
| FINN-kode | 408641305 |
|---|---|
| Sist endret | 03. juni 2025 13:22 |
| Referanse | 703250068 |
Annonsene kan være mangelfulle i forhold til lovpålagt opplysningsplikt. Før bindende avtale inngås oppfordres interessenter til å innhente komplett informasjon fra meglerforetaket, selger eller utleier.






















