Bildegalleri

Nordvik v/Moestue har gleden av å presentere en lys og hyggelig 3-roms hjørneleilighet med sentral og attraktiv beliggenhet i Gamlebyen. Husk visningspåmelding!
Solgt
GAMLEBYEN
Lys og hyggelig 3-roms hjørneleilighet med solrik, vestvendt balkong på 7 kvm - Garasje - Heis - Lave FK 3.363!
Prisantydning6 100 000 kr
Nøkkelinfo
- Boligtype
- Leilighet
- Eieform
- Andel
- Soverom
- 2
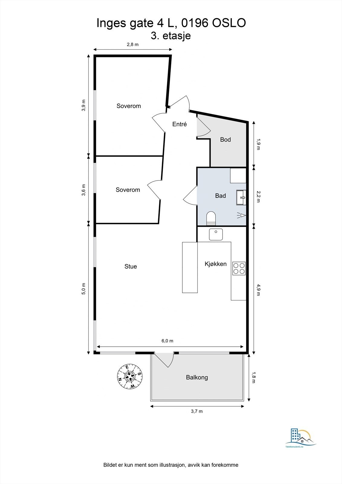
- Internt bruksareal
- 63 m² (BRA-i)
- Bruksareal
- 68 m²
- Eksternt bruksareal
- 5 m² (BRA-e)
- Balkong/Terrasse
- 7 m² (TBA)
- Etasje
- 3
- Byggeår
- 2004
- Energimerking
- D - Rød
- Rom
- 3
- Tomteareal
- 491 m² (eiet)
Fasiliteter
Balkong/Terrasse
Barnevennlig
Bredbåndstilknytning
Garasje/P-plass
Heis
Offentlig vann/kloakk
Rolig
Sentralt
Om boligen
Velkommen til Inges gate 4L! En lys og hyggelig 3-roms hjørneleilighet med sentral og attraktiv beliggenhet i Gamlebyen. Leiligheten har en arealeffektiv planløsning og er perfekt for deg som ønsker et bredt utvalg av kollektivmuligheter, matbutikker, treningssenter, spisesteder og shopping i umiddelbar nærhet!
Verdt å merke seg:
- Solrik, vestvendt balkong på ca. 7 kvm
- Det medfølger garasjeplass med heisadkomst
- Lave felleskostnader på kr. 3 363,- per måned
- Internett er inkludert i felleskostnadene
- Lavt strømforbruk, 3 732 kWh i 2024
- Store vindusflater som gir rikelig med naturlig lys
- Godt med lagringsplass i kjellerbod på ca. 5 kvm og innvendig bod på ca. 3 kvm
- Umiddelbar nærhet til kollektivtransport, dagligvarehandel, servicetilbud og turområder (Ekeberg)
Verdt å merke seg:
- Solrik, vestvendt balkong på ca. 7 kvm
- Det medfølger garasjeplass med heisadkomst
- Lave felleskostnader på kr. 3 363,- per måned
- Internett er inkludert i felleskostnadene
- Lavt strømforbruk, 3 732 kWh i 2024
- Store vindusflater som gir rikelig med naturlig lys
- Godt med lagringsplass i kjellerbod på ca. 5 kvm og innvendig bod på ca. 3 kvm
- Umiddelbar nærhet til kollektivtransport, dagligvarehandel, servicetilbud og turområder (Ekeberg)
NB: Knappen for å vise hele beskrivelsen har kun en visuell effekt.
NB: Knappen for å vise hele beskrivelsen har kun en visuell effekt.
Salgsoppgaven beskriver vesentlig og lovpålagt informasjon om eiendommen
Se komplett salgsoppgaveNyttige lenker
Nærområdet
Nordvik Bislett
Annonseinformasjon
| FINN-kode | 408638026 |
|---|---|
| Sist endret | 22. sep. 2025 11:54 |
| Referanse | 36-0271/24 |
Annonsene kan være mangelfulle i forhold til lovpålagt opplysningsplikt. Før bindende avtale inngås oppfordres interessenter til å innhente komplett informasjon fra meglerforetaket, selger eller utleier.







































