Bildegalleri

Velkommen til Hokelstegen 25 (foto: Efkt, Svein Olav Humberset)
Innhaldsrik einebustad med utleigedel, to garasjar og flott hagemiljø | utsikt | sentrumsnært |
Prisantydning7 950 000 kr
Nøkkelinfo
- Boligtype
- Enebolig
- Eieform
- Selveier
- Soverom
- 4
- Internt bruksareal
- 286 m² (BRA-i)
- Bruksareal
- 376 m²
- Eksternt bruksareal
- 90 m² (BRA-e)
- Balkong/Terrasse
- 65 m² (TBA)
- Etasje
- 3
- Byggeår
- 1996
- Rom
- 6
- Tomteareal
- 882 m² (eiet)
Fasiliteter
Balkong/Terrasse
Barnevennlig
Bredbåndstilknytning
Garasje/P-plass
Hage
Peis/Ildsted
Rolig
Utsikt
Om boligen
Velkommen til Hokelstegen 25
Ein familievenleg einebustad i triveleg nabolag. Bustaden har ein stor, flislagt terrasse på heile 61m², her du kan nyte både den fantastiske utsikta og skape ditt eige utemiljø. Det er også eit romsleg tun og to garasjar på eigedommen.
Utleigedel i underetasjen på ca 50m² som i seinare tid er utleigd til AirBnB. I hagen finn du blant anna bærbusker, frukttre og kjøkenhage.
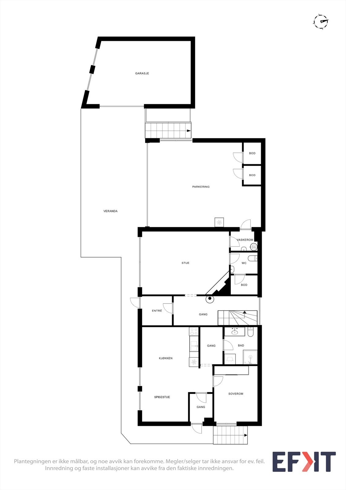
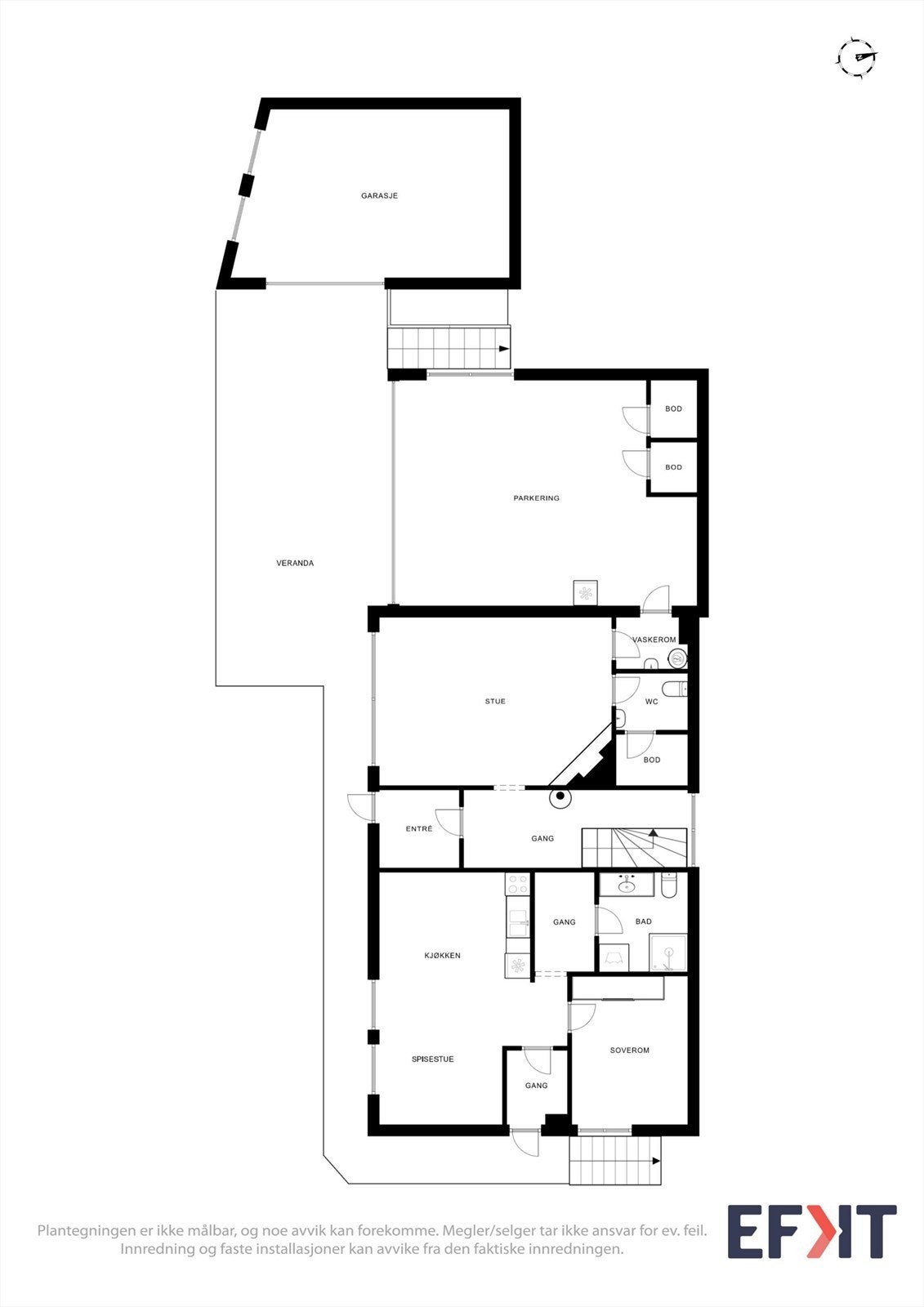
Bustaden er over tre etsajar og inneheld:
Loft: bad, loftstove med trapp, tre soverom og bod
1.etasje: kjøkken, stove, vaskerom, kjølerom/bod, entré/trapperom og toalettrom
underetasje: bad, badstu, vindfang, gang, stove og bod. Utleigedel med soverom, kjøkken/stove og bad.
Kom å opplev denne spennande eigedommen! Hugs påmelding til visning.
Ein familievenleg einebustad i triveleg nabolag. Bustaden har ein stor, flislagt terrasse på heile 61m², her du kan nyte både den fantastiske utsikta og skape ditt eige utemiljø. Det er også eit romsleg tun og to garasjar på eigedommen.
Utleigedel i underetasjen på ca 50m² som i seinare tid er utleigd til AirBnB. I hagen finn du blant anna bærbusker, frukttre og kjøkenhage.
Bustaden er over tre etsajar og inneheld:
Loft: bad, loftstove med trapp, tre soverom og bod
1.etasje: kjøkken, stove, vaskerom, kjølerom/bod, entré/trapperom og toalettrom
underetasje: bad, badstu, vindfang, gang, stove og bod. Utleigedel med soverom, kjøkken/stove og bad.
Kom å opplev denne spennande eigedommen! Hugs påmelding til visning.
NB: Knappen for å vise hele beskrivelsen har kun en visuell effekt.
NB: Knappen for å vise hele beskrivelsen har kun en visuell effekt.
Salgsoppgaven beskriver vesentlig og lovpålagt informasjon om eiendommen
Se komplett salgsoppgaveNyttige lenker
Nærområdet
EiendomsMegler 1 Sogn og Fjordane
En del av Sparebank 1 Sogn og Fjordane
Annonseinformasjon
| FINN-kode | 408607183 |
|---|---|
| Sist endret | 20. apr. 2026 10:38 |
| Referanse | 6000250058 |
Annonsene kan være mangelfulle i forhold til lovpålagt opplysningsplikt. Før bindende avtale inngås oppfordres interessenter til å innhente komplett informasjon fra meglerforetaket, selger eller utleier.










































