Bildegalleri

Helge Børsand i Holmskau & Partners ønsket egentlig å kjøpe dette selv!
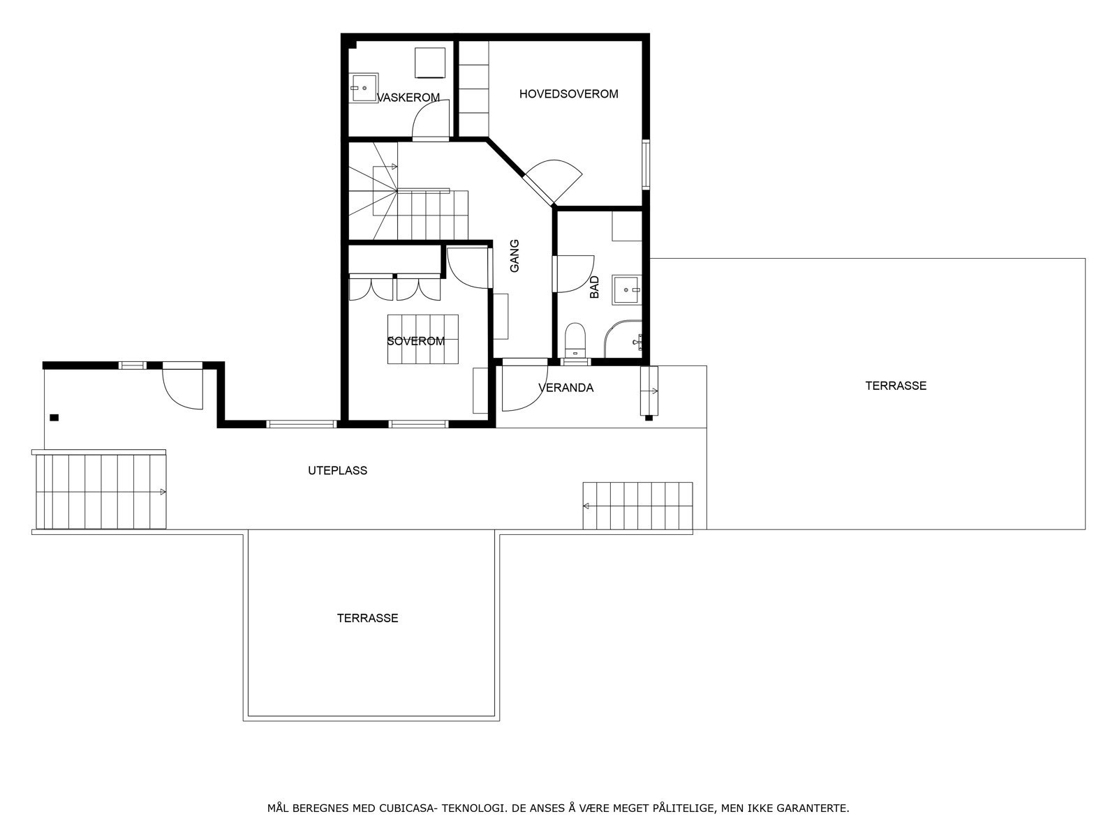
Modernisert, spennende bolig m/ fantastisk utsikt over Tunevannet! Bad oppgradert i 2023. Carport. Blindvei.
Nøkkelinfo
- Boligtype
- Rekkehus
- Eieform
- Eier (Selveier)
- Soverom
- 2
- Internt bruksareal
- 85 m² (BRA-i)
- Bruksareal
- 85 m²
- Eksternt bruksareal
- 4 m² (BRA-e)
- Balkong/Terrasse
- 6 m² (TBA)
- Byggeår
- 1991
- Tomteareal
- 460 m² (eiet)
Visning
Om boligen
Helge Børsand i Holmskau & Partners kommer til å angre på at han ikke kjøpte denne selv, men da lover han - med ekte engasjement - å overbevise deg om hvor godt du vil trives her! Og det blir enkelt. Her kan du flytte rett inn uten å gjøre noe! Hele 2. etasjen er åpen, så du har utsikten både fra kjøkken, spisestuen og TV-kroken. Masse lys & luft med åpen skråhimling. Delikat & funksjonelt kjøkken fra danske Kvik er samlingspunktet, og det er sittebenk til spisebordet i samme design. Nyere vedovn gir hygge & varme! Balkongen gir de deiligste solnedgangene som speiler seg i Tunevannnet. Oppgradert & moderne bad/WC m/innredning fra Kvik. Eget vaskerom . Flere utepasser. Carport med bod og el-billader. Blindvei. Nymalt utvendig. Ikke overbevist? Ring meg eller ta deg en tur på visning!
Salgsoppgaven beskriver vesentlig og lovpålagt informasjon om eiendommen
Se komplett salgsoppgaveNyttige lenker
Nærområdet
Holmskau & Partners
Annonseinformasjon
| FINN-kode | 408496187 |
|---|---|
| Sist endret | 31. jan. 2026 03:20 |
| Referanse | 194250064 |
Annonsene kan være mangelfulle i forhold til lovpålagt opplysningsplikt. Før bindende avtale inngås oppfordres interessenter til å innhente komplett informasjon fra meglerforetaket, selger eller utleier.




















































