Bildegalleri

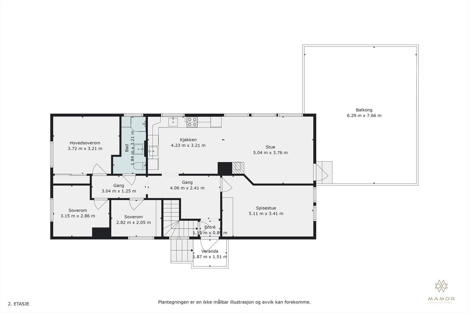
Velkommen til Forsveien 3! Stor enebolig som er benyttet til hybel-utleie. 6 hybler i 1. etasje, 3 hybler i andre etasje.
Hunstad
Stor enebolig/utleiebolig. Dagens bruk, 9 hybler. Sentral beliggenhet på Mørkved, nært videregående skoler/ universitet.
Prisantydning6 400 000 kr
Nøkkelinfo
- Boligtype
- Enebolig
- Eieform
- Eier (Selveier)
- Soverom
- 9
- Internt bruksareal
- 237 m² (BRA-i)
- Bruksareal
- 237 m²
- Balkong/Terrasse
- 44 m² (TBA)
- Etasje
- 2
- Byggeår
- 1972
- Energimerking
- G - Oransje
- Rom
- 13
- Tomteareal
- 1 196 m² (eiet)
Fasiliteter
Balkong/Terrasse
Barnevennlig
Garasje/P-plass
Hage
Kabel-TV
Offentlig vann/kloakk
Peis/Ildsted
Rolig
Utsikt
Om boligen
Stor enebolig/hybelhus. Pen belliggenhet bydelen Hunstad. Nært videregående skole, Universitet, m v. Gjennomgående god standard på innredninger og utstyr, samt materialvalg. Solrik tomt, pen utsikt. Objektet som selges vil bli seksjonert ut, med en tomtestørrelse på ca 600 kvm. Ved kjøp av hele eiendommen inkluderer det en tomtedel som ev. vil få sitt eget seksjonsnummer. Det innebærer en total tomtestørrelse på ca 1195 kvm . Seksjon 2 består av en godkjent rammeavtale for bygging av enebolig med utleie. Kort oppsummert kan eiendommen selges for 6 400 000 (enebolig 9 hybler), eller som en helhet inkl rammeavtale for kr 7 400 000.
Leieinntekter pr. d.d ca. kr. 650 000,- pr. år.
Leieinntekter pr. d.d ca. kr. 650 000,- pr. år.
NB: Knappen for å vise hele beskrivelsen har kun en visuell effekt.
NB: Knappen for å vise hele beskrivelsen har kun en visuell effekt.
Salgsoppgaven beskriver vesentlig og lovpålagt informasjon om eiendommen
Se komplett salgsoppgaveNyttige lenker
Nærområdet
Nordvik Bodø
Annonseinformasjon
| FINN-kode | 408484930 |
|---|---|
| Sist endret | 23. okt. 2025 12:50 |
| Referanse | 35-0053/25 |
Annonsene kan være mangelfulle i forhold til lovpålagt opplysningsplikt. Før bindende avtale inngås oppfordres interessenter til å innhente komplett informasjon fra meglerforetaket, selger eller utleier.





























