Bildegalleri

Velkommen til Sandefjordgata 3D - Presentert av Blenor Hadergjonaj!
Solgt
SAGENE
Delikat, gjennomgående 2-roms leilighet med flotte lysforhold - VV/fyring inkl - Gulv 2025 - Attraktiv beliggenhet
Prisantydning4 950 000 kr
Nøkkelinfo
- Boligtype
- Leilighet
- Eieform
- Andel
- Soverom
- 1
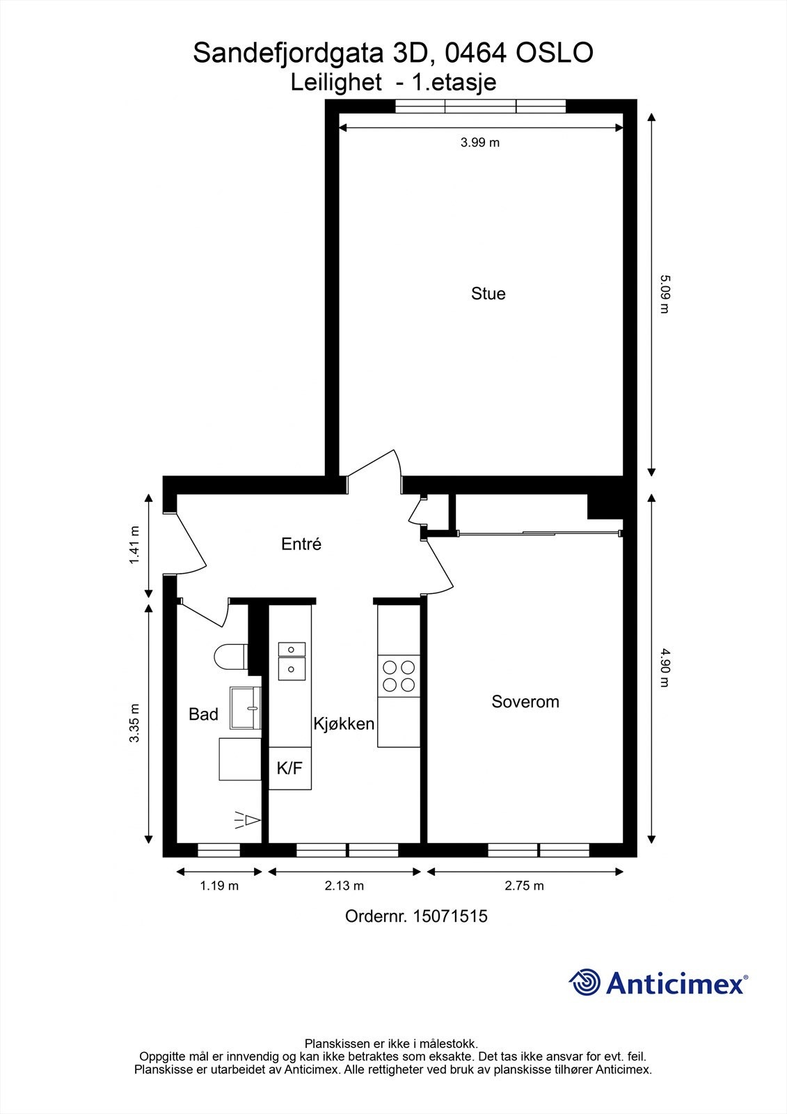
- Internt bruksareal
- 52 m² (BRA-i)
- Bruksareal
- 56 m²
- Eksternt bruksareal
- 4 m² (BRA-e)
- Etasje
- 1
- Byggeår
- 1940
- Energimerking
- F - Mørkegrønn
- Rom
- 2
- Tomteareal
- 2 188 m² (festet)
- Festeavgift
- 82 560 kr
Fasiliteter
Barnevennlig
Bredbåndstilknytning
Fellesvaskeri
Kjæledyr tillatt
Offentlig vann/kloakk
Rolig
Sentralt
Turterreng
Balansert ventilasjon
Om boligen
Velkommen til Sandefjordgata 3D flott leilighet på beste Sagene!
Denne lyse og trivelige 2-roms leiligheten ligger fredelig til i grønne, skjermede omgivelser, samtidig som du har alt du trenger rett i nærheten. Leiligheten befinner seg i en høy 1. etasje og har en luftig, gjennomgående planløsning med store vinduer som gir rikelig med naturlig lys og et hyggelig utsyn.
Her bor du med en perfekt kombinasjon av byliv og naturnær ro. Like utenfor døren finner du både idylliske parker og pulserende kaféliv alt innen kort gangavstand.
- Fyring, vv og internett inkl.
- Nytt gulv i 2025
- Moderne fargevalg
- Vinduer fra 2016
- Rolig og tilbaketrukket beliggenhet
- Ingen forkjøpsrett!
- Veldrevet borettslag med hyggelige fellesarealer
- Kort vei til kafeer, butikker og kollektivtransport
Denne lyse og trivelige 2-roms leiligheten ligger fredelig til i grønne, skjermede omgivelser, samtidig som du har alt du trenger rett i nærheten. Leiligheten befinner seg i en høy 1. etasje og har en luftig, gjennomgående planløsning med store vinduer som gir rikelig med naturlig lys og et hyggelig utsyn.
Her bor du med en perfekt kombinasjon av byliv og naturnær ro. Like utenfor døren finner du både idylliske parker og pulserende kaféliv alt innen kort gangavstand.
- Fyring, vv og internett inkl.
- Nytt gulv i 2025
- Moderne fargevalg
- Vinduer fra 2016
- Rolig og tilbaketrukket beliggenhet
- Ingen forkjøpsrett!
- Veldrevet borettslag med hyggelige fellesarealer
- Kort vei til kafeer, butikker og kollektivtransport
NB: Knappen for å vise hele beskrivelsen har kun en visuell effekt.
NB: Knappen for å vise hele beskrivelsen har kun en visuell effekt.
Salgsoppgaven beskriver vesentlig og lovpålagt informasjon om eiendommen
Se komplett salgsoppgaveNyttige lenker
Nærområdet
Krogsveen Grünerløkka og Sagene
Verdien av en god megler.
Annonseinformasjon
| FINN-kode | 408477749 |
|---|---|
| Sist endret | 26. juni 2025 10:49 |
| Referanse | KR52.2511 |
Annonsene kan være mangelfulle i forhold til lovpålagt opplysningsplikt. Før bindende avtale inngås oppfordres interessenter til å innhente komplett informasjon fra meglerforetaket, selger eller utleier.





























