Bildegalleri

Velkommen til Sinsenveien 4B, presentert av Schala & Partners ved Torfinn Sørvang, tlf. 977 59 812.
Stilren & gjennomgående 2/3-R fabrikkleilighet ombygget i 2009 | 2 balkonger | Kjøkken fra 2024 | Heis | Fyring/Vv inkl.
Nøkkelinfo
- Boligtype
- Leilighet
- Eieform
- Eier (Selveier)
- Soverom
- 1
- Internt bruksareal
- 62 m² (BRA-i)
- Bruksareal
- 68 m²
- Eksternt bruksareal
- 6 m² (BRA-e)
- Balkong/Terrasse
- 9 m² (TBA)
- Etasje
- 4
- Byggeår
- 1938
- Energimerking
- D - Mørkegrønn
- Rom
- 2
- Tomteareal
- 4 668 m² (eiet)
Fasiliteter
Om boligen
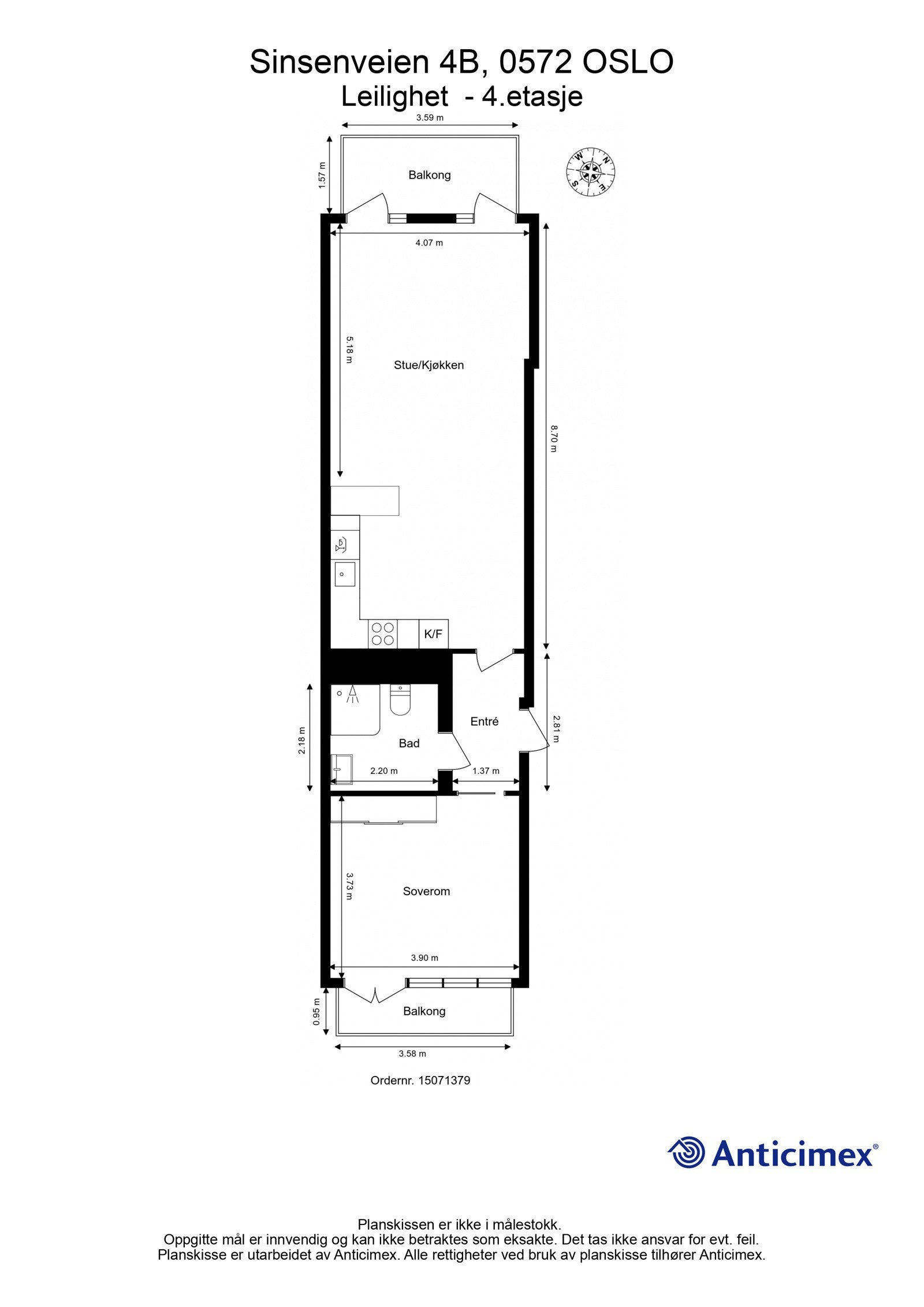
En stilren & gjennomgående 2/3-R fabrikkleilighet fra 2009 i et populært og veletablert boligområde på Rosenhoff. Leiligheten ligger fint til i byggets 4.etg med heisadkomst. Det er god planløsning, store vindusflater og 2 solrike balkonger. Beliggenheten er rolig og tilbaketrukket, men samtidig sentralt med alt man trenger i hverdagen innen rekkevidde.
- To herlige balkonger med gode solforhold gjennom hele dagen
- Industribygg omgjort til leiligheter i 2009
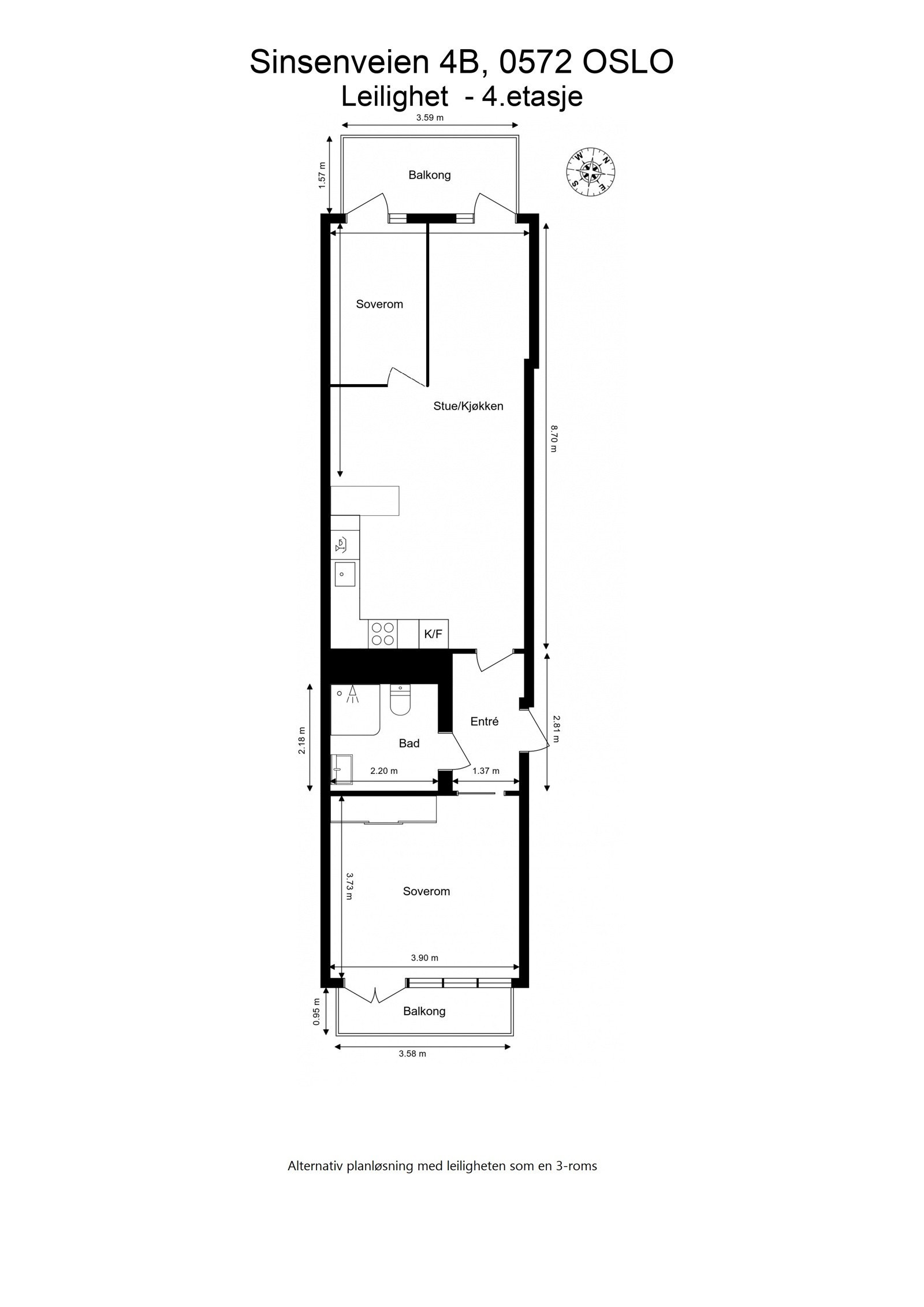
- Mulig å gjøre om til 3-roms. Se alternativ planløsning
- Lekker kjøkkeninnredning fra 2024
- Generøs takhøyde på opptil 2,89m
- Vannbåren gulvvarme og balansert ventilasjon
- Kjellerbod på 6m²
- Felles arkitekttegnet takterrasse og bakgård
- Mulighet for leie/kjøp av garasjeplass ved ledighet
- Kort gange til T-bane, trikk og en rekke busslinjer
Salgsoppgaven beskriver vesentlig og lovpålagt informasjon om eiendommen
Se komplett salgsoppgaveNyttige lenker
Nærområdet
Schala & Partners Carl Berner
Prisstatistikk
Sinsenveien 4B
på annonsen
prisantydning per kvadratmeter
Prisfordeling
Pris per m² ligger 838 kr over snittet for leiligheter i Helsfyr - Sinsen.
Grafen viser antall leiligheter solgt i Helsfyr - Sinsen siste året fordelt på pris per m² - totalt 1 708 leiligheter
Antall boliger
Kvadratmeterpris tilsvarer prisantydning pluss fellesgjeld per kvadratmeter (p-rom eller BRA-i). Prisene i grafen er avrundet til nærmeste 1000 kr.
Annonseinformasjon
| FINN-kode | 408285707 |
|---|---|
| Sist endret | 02. juni 2025 20:16 |
| Referanse | 17250031 |
Annonsene kan være mangelfulle i forhold til lovpålagt opplysningsplikt. Før bindende avtale inngås oppfordres interessenter til å innhente komplett informasjon fra meglerforetaket, selger eller utleier.





































