Bildegalleri

Aksel Walmsnæss v/PrivatMegleren Aksept har gleden av å presentere Fougstads gate 11!
Gjennomgående og lys 3-r med solrik balkong! Meget attraktivt beliggenhet ved parken | Bulthaup kjøkken | Peis | Rolig
Nøkkelinfo
- Boligtype
- Leilighet
- Eieform
- Andel
- Soverom
- 2
- Internt bruksareal
- 78 m² (BRA-i)
- Bruksareal
- 90 m²
- Eksternt bruksareal
- 12 m² (BRA-e)
- Balkong/Terrasse
- 2 m² (TBA)
- Etasje
- 2
- Byggeår
- 1953
- Energimerking
- F - Oransje
- Rom
- 3
- Tomteareal
- 3 903 m² (eiet)
- Boligselgerforsikring
- Ja
Fasiliteter
Om boligen
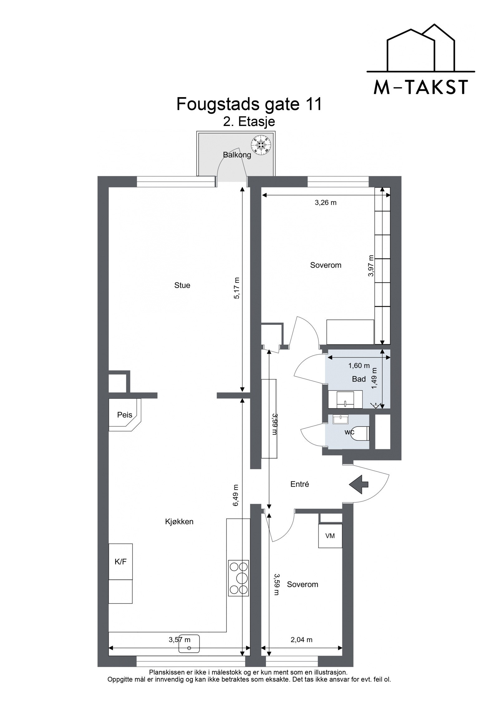
Velkommen til Fougstads gate 11 - en gjennomgående, lys og stilren 3-roms!
Boligen ligger et par minutter fra St. Hanshaugen park, kjent for sin idylliske og barnevennlige beliggenhet. Leiligheten har en fordelaktig intern beliggenhet i byggets 2. etasje med kort vei ut vakre omgivelser.
Boligen er lys og luftig, med mye utsyn og lite innsyn. Leiligheten ble vesentlig oppusset i perioden 2016-2019, med en rekke ettertraktede kvaliteter som Bulthaup kjøkken med Gaggenau hvitevarer og et nytt bad.
Parkering på borettslagets eiendom etter venteliste.
Kvaliteter
- Store vinduer og god takhøyde
- Meget ettertraktet beliggenhet
- Gjennomgående planløsning
- Veldrevet borettslag
- Ingen dok. avgift
- Solrik balkong
- Peis i stue
- 2 soverom
- 3 boder
Salgsoppgaven beskriver vesentlig og lovpålagt informasjon om eiendommen
Se komplett salgsoppgaveNyttige lenker
Nærområdet

PrivatMegleren Aksept
Annonseinformasjon
| FINN-kode | 408282397 |
|---|---|
| Sist endret | 07. juni 2025 02:13 |
| Referanse | 92250244 |
Annonsene kan være mangelfulle i forhold til lovpålagt opplysningsplikt. Før bindende avtale inngås oppfordres interessenter til å innhente komplett informasjon fra meglerforetaket, selger eller utleier.































