Bildegalleri

Velkommen til visning i Rugveien 40
Solgt
MANGLERUD
Lys og solrik 2-roms leilighet i 5.etasje | Heis | Fint utsyn | Varmtvann og fyring inkl. | Sydvestvendt balkong
Prisantydning3 850 000 kr
Nøkkelinfo
- Boligtype
- Leilighet
- Eieform
- Andel
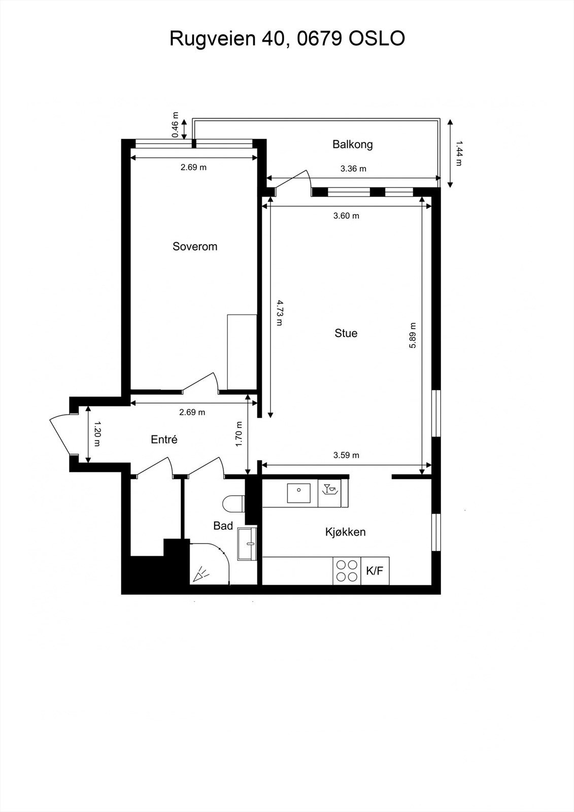
- Soverom
- 1
- Internt bruksareal
- 56 m² (BRA-i)
- Bruksareal
- 62 m²
- Eksternt bruksareal
- 6 m² (BRA-e)
- Balkong/Terrasse
- 6 m² (TBA)
- Etasje
- 5
- Byggeår
- 1961
- Energimerking
- F - Mørkegrønn
- Rom
- 2
- Tomteareal
- 43 236 m² (eiet)
Fasiliteter
Balkong/Terrasse
Barnevennlig
Bredbåndstilknytning
Fellesvaskeri
Heis
Kjæledyr tillatt
Ingen gjenboere
Kabel-TV
Offentlig vann/kloakk
Parkett
Rolig
Sentralt
Utsikt
Vaktmester-/vektertjeneste
Turterreng
Om boligen
Kort om boligen:
*Sydvestvendt, solrik balkong med gode utsiktsforhold
*Stuen er romslig og enkel å innrede
*Innvendig bod/walk-in-closet i tilknytning til entréen
*Romslig baderom som ble oppusset i regi av borettslaget i 2010.
*2 boder medfølger
*Felles vaskeri og sykkelrom
*Varmtvann og fyring inkludert. Lave strømutgifter
*Nærhet til sentrum, Østensjøvannet og Østmarka
*Kort vei til T-bane og buss, Manglerud senter, treningssentre m.m.
*Meget barnevennlig boligområde
*Flotte fellesarealer med stor lekeplass
*Mulighet for parkeringsplass etter venteliste
*Lave kjøpsomkostninger (Ingen dokumentavgift)
*Rask avklaring av forkjøpsrett
*Sydvestvendt, solrik balkong med gode utsiktsforhold
*Stuen er romslig og enkel å innrede
*Innvendig bod/walk-in-closet i tilknytning til entréen
*Romslig baderom som ble oppusset i regi av borettslaget i 2010.
*2 boder medfølger
*Felles vaskeri og sykkelrom
*Varmtvann og fyring inkludert. Lave strømutgifter
*Nærhet til sentrum, Østensjøvannet og Østmarka
*Kort vei til T-bane og buss, Manglerud senter, treningssentre m.m.
*Meget barnevennlig boligområde
*Flotte fellesarealer med stor lekeplass
*Mulighet for parkeringsplass etter venteliste
*Lave kjøpsomkostninger (Ingen dokumentavgift)
*Rask avklaring av forkjøpsrett
NB: Knappen for å vise hele beskrivelsen har kun en visuell effekt.
NB: Knappen for å vise hele beskrivelsen har kun en visuell effekt.
Salgsoppgaven beskriver vesentlig og lovpålagt informasjon om eiendommen
Se komplett salgsoppgaveNærområdet
Aktiv Østensjø/Lambertseter
Prisstatistikk
Rugveien 40
2 887 klikk
på annonsen
71 392 kr
prisantydning per kvadratmeter
Prisfordeling
Pris per m² ligger 8 608 kr under snittet for leiligheter i Manglerud.
Grafen viser antall leiligheter solgt i Manglerud siste året fordelt på pris per m² - totalt 284 leiligheter
Antall boliger
Kvadratmeterpris tilsvarer prisantydning pluss fellesgjeld per kvadratmeter (p-rom eller BRA-i). Prisene i grafen er avrundet til nærmeste 1000 kr.
Annonseinformasjon
| FINN-kode | 408182551 |
|---|---|
| Sist endret | 24. sep. 2025 11:32 |
| Referanse | 1009250044 |
Annonsene kan være mangelfulle i forhold til lovpålagt opplysningsplikt. Før bindende avtale inngås oppfordres interessenter til å innhente komplett informasjon fra meglerforetaket, selger eller utleier.































