Bildegalleri

Her får du sjarmfulle detaljer som generøs takhøyde, store vindusflater og originale tregulv.
Solgt
TORSHOV
Nydelig 2-roms i klassisk Torshovgård - God takhøyde og store vindusflater -Bad fra 2023 -Varmtvann inkl. -IN-ordning
Prisantydning4 900 000 kr
Nøkkelinfo
- Boligtype
- Leilighet
- Eieform
- Andel
- Soverom
- 1
- Internt bruksareal
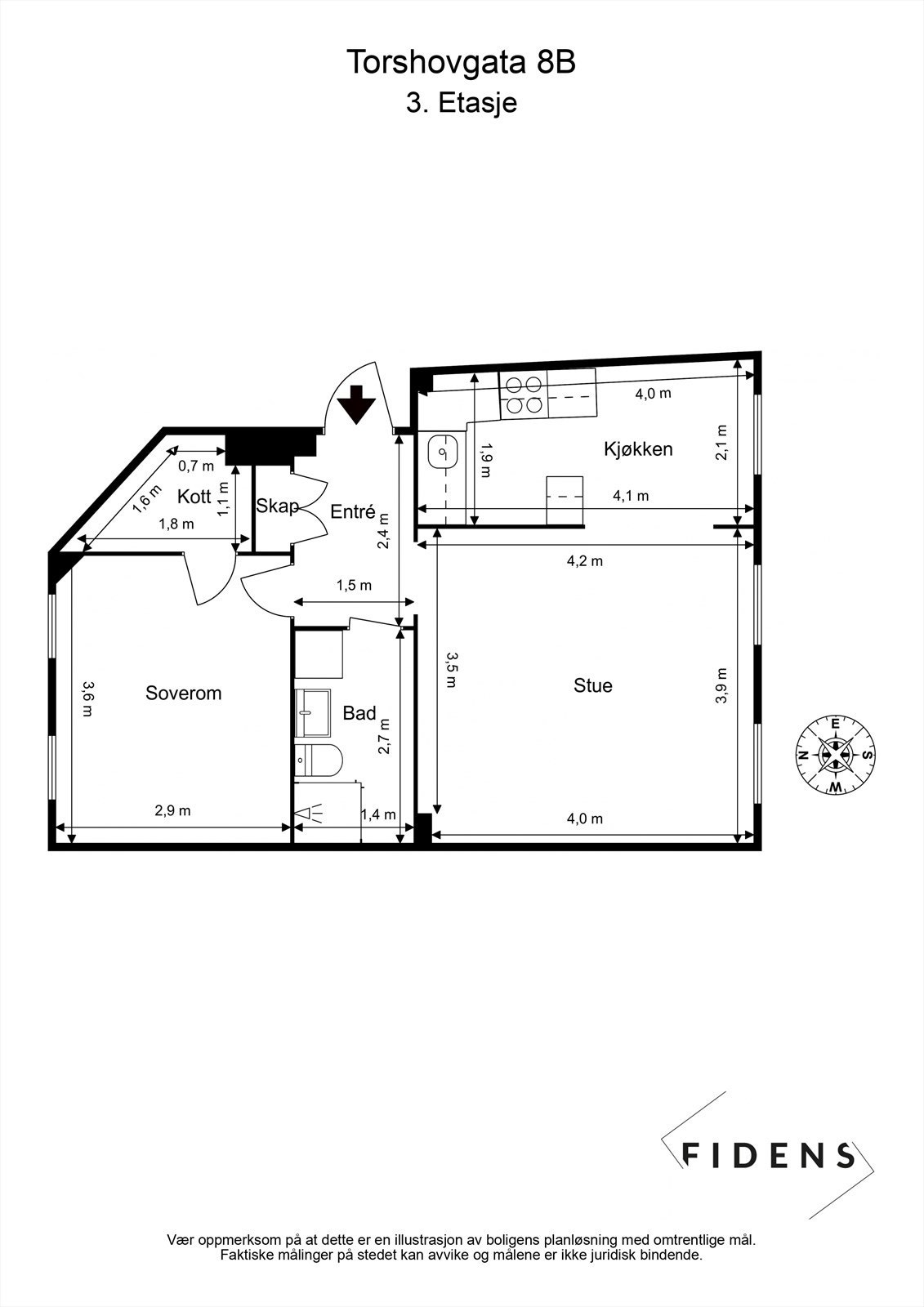
- 47 m² (BRA-i)
- Bruksareal
- 54 m²
- Eksternt bruksareal
- 7 m² (BRA-e)
- Etasje
- 3
- Byggeår
- 1899
- Energimerking
- F - Rød
- Rom
- 2
- Tomteareal
- 669 m² (eiet)
Fasiliteter
Barnevennlig
Bredbåndstilknytning
Offentlig vann/kloakk
Rolig
Sentralt
Om boligen
Velkommen til Torshovgata 8B!
I hjertet av vakre Torshov finner du denne nydelige 2-roms andelsleiligheten. Her får du luftig takhøyde på 3 meter og store vinduer som slipper inn rikelig med dagslys. Det er videre lekre detaljer som tregulv, rosett og stukkatur. God planløsning med romslig stue, separat kjøkken, stort soverom og nytt bad fra 2023.
Boligen har en attraktiv og barnevennlig beliggenhet i klassisk Torshovgård med Torshovparken rett rundt hjørnet
FASILITETER
- Klassiske detaljer
- God takhøyde på 3 m
- Felleskostnadene inkluderer varmtvann
- Gode oppbevaringsmuligheter
- To kjellerboder
- IN-ordning, mulighet til å redusere felleskostnadene
- Ingen forkjøpsrett eller dok.avg
- Umiddelbar nærhet til Torshovparken, off.kom og kaféer
I hjertet av vakre Torshov finner du denne nydelige 2-roms andelsleiligheten. Her får du luftig takhøyde på 3 meter og store vinduer som slipper inn rikelig med dagslys. Det er videre lekre detaljer som tregulv, rosett og stukkatur. God planløsning med romslig stue, separat kjøkken, stort soverom og nytt bad fra 2023.
Boligen har en attraktiv og barnevennlig beliggenhet i klassisk Torshovgård med Torshovparken rett rundt hjørnet
FASILITETER
- Klassiske detaljer
- God takhøyde på 3 m
- Felleskostnadene inkluderer varmtvann
- Gode oppbevaringsmuligheter
- To kjellerboder
- IN-ordning, mulighet til å redusere felleskostnadene
- Ingen forkjøpsrett eller dok.avg
- Umiddelbar nærhet til Torshovparken, off.kom og kaféer
NB: Knappen for å vise hele beskrivelsen har kun en visuell effekt.
NB: Knappen for å vise hele beskrivelsen har kun en visuell effekt.
Salgsoppgaven beskriver vesentlig og lovpålagt informasjon om eiendommen
Se komplett salgsoppgaveNyttige lenker
Nærområdet
Nordvik Torshov
Vi vet hva det er verdt
Annonseinformasjon
| FINN-kode | 408149459 |
|---|---|
| Sist endret | 10. sep. 2025 13:33 |
| Referanse | 29-0109/25 |
Annonsene kan være mangelfulle i forhold til lovpålagt opplysningsplikt. Før bindende avtale inngås oppfordres interessenter til å innhente komplett informasjon fra meglerforetaket, selger eller utleier.
































