Bildegalleri

Det er fin plass til både sofagruppe og spisebord.
Krokstadelva
Moderne og tiltalende 3-roms selveier fra 2020 | Garasjekjeller | Vestvendt terrasse | Barnevennlig boligområde
Prisantydning3 290 000 kr
Nøkkelinfo
- Boligtype
- Leilighet
- Eieform
- Eier (Selveier)
- Soverom
- 2
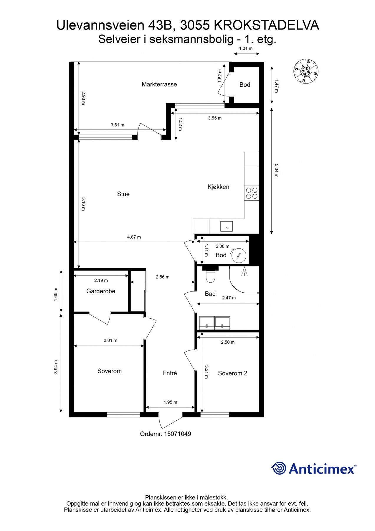
- Internt bruksareal
- 88 m² (BRA-i)
- Bruksareal
- 95 m²
- Eksternt bruksareal
- 7 m² (BRA-e)
- Balkong/Terrasse
- 15 m² (TBA)
- Etasje
- 1
- Byggeår
- 2020
- Energimerking
- C - Rød
- Rom
- 3
- Tomteareal
- 2 425 m² (eiet)
Fasiliteter
Barnevennlig
Balkong/Terrasse
Garasje/P-plass
Offentlig vann/kloakk
Parkett
Turterreng
Moderne
Rolig
Bademulighet
Lademulighet
Balansert ventilasjon
Om boligen
Velkommen til Ulevannsveien 43B!
En stilren og moderne selveierleilighet med innbydende entré, åpen stue- og kjøkkenløsning med utgang til vestvendt markterrasse, delikat bad og to romslige soverom, ett med adkomst til garderoberom. Boligen byr på rikelig lagringsplass i totalt tre boder samt parkeringsplass i garasje med elbillader.
Boligen ligger i et barnevennlig område med nærhet til lekeplasser, flotte turområder, dagligvarebutikker og mer. Bussholdeplassen er kun en kort spasertur unna, med hyppige avganger mot Mjøndalen togstasjon. I nærheten finner du også Buskerud Storsenter og Krokstad Senter, som dekker alle hverdagsbehov.
Kort fortalt:
-Nyere bygg fra 2020 med god standard
-2 romslige soverom
-Stilrent og helfliset bad
-Kjøkken med integrerte hvitevarer
-Vestvendt markterrasse
-Parkering i garasjekjeller med elbillader
-Fin lagringsplass i tre boder
-Nærhet til marka og badevann
-Barnevennlig og rolig boligområde
-Tøffelavstand til bussholdeplass
Velkommen til visning
En stilren og moderne selveierleilighet med innbydende entré, åpen stue- og kjøkkenløsning med utgang til vestvendt markterrasse, delikat bad og to romslige soverom, ett med adkomst til garderoberom. Boligen byr på rikelig lagringsplass i totalt tre boder samt parkeringsplass i garasje med elbillader.
Boligen ligger i et barnevennlig område med nærhet til lekeplasser, flotte turområder, dagligvarebutikker og mer. Bussholdeplassen er kun en kort spasertur unna, med hyppige avganger mot Mjøndalen togstasjon. I nærheten finner du også Buskerud Storsenter og Krokstad Senter, som dekker alle hverdagsbehov.
Kort fortalt:
-Nyere bygg fra 2020 med god standard
-2 romslige soverom
-Stilrent og helfliset bad
-Kjøkken med integrerte hvitevarer
-Vestvendt markterrasse
-Parkering i garasjekjeller med elbillader
-Fin lagringsplass i tre boder
-Nærhet til marka og badevann
-Barnevennlig og rolig boligområde
-Tøffelavstand til bussholdeplass
Velkommen til visning
NB: Knappen for å vise hele beskrivelsen har kun en visuell effekt.
NB: Knappen for å vise hele beskrivelsen har kun en visuell effekt.
Salgsoppgaven beskriver vesentlig og lovpålagt informasjon om eiendommen
Se komplett salgsoppgaveNyttige lenker
Nærområdet
EIE eiendomsmegling Drammen
Annonseinformasjon
| FINN-kode | 408142434 |
|---|---|
| Sist endret | 25. nov. 2025 13:44 |
| Referanse | 46250012 |
Annonsene kan være mangelfulle i forhold til lovpålagt opplysningsplikt. Før bindende avtale inngås oppfordres interessenter til å innhente komplett informasjon fra meglerforetaket, selger eller utleier.































