Bildegalleri

Velkommen til Einebakken 2b!
Solgt
Halvpart av tomannsbolig med noe oppgraderingsbehov - Barnevennlige omgivelser - Tilbaketrukket bakhage
Prisantydning1 280 000 kr
Nøkkelinfo
- Boligtype
- Rekkehus
- Eieform
- Andel
- Soverom
- 3
- Internt bruksareal
- 90 m² (BRA-i)
- Bruksareal
- 90 m²
- Balkong/Terrasse
- 5 m² (TBA)
- Byggeår
- 1983
- Energimerking
- G - Rød
- Rom
- 4
- Tomteareal
- 18 039 m² (eiet)
Fasiliteter
Barnevennlig
Balkong/Terrasse
Kabel-TV
Peis/Ildsted
Utsikt
Rolig
Om boligen
PrivatMegleren Molde v/ Kristin Toft har gleden av å presentere denne familieeiendommen i Kråkvika!
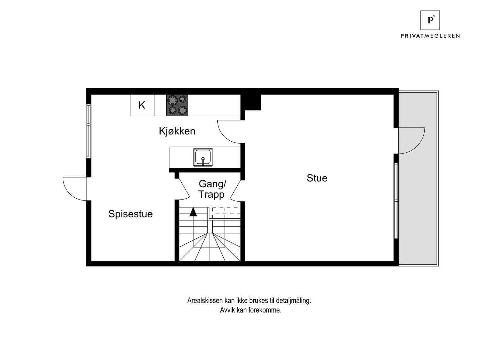
Boligen går over 2 plan. I underetasje er det 3 soverom*, bad, bod og trapperom/gang. 1. etasje har kjøkken med utgang til bakhage og stue med utgang til veranda mot nord.
*) Ett av soverommene holder ikke dagens krav til rom til varig opphold.
Boligen ligger i et rolig, sosialt og hyggelig borettslag. Borettslaget ligger ca 1,5 km fra Vestnes sentrum.
Velkommen på visning!
Boligen går over 2 plan. I underetasje er det 3 soverom*, bad, bod og trapperom/gang. 1. etasje har kjøkken med utgang til bakhage og stue med utgang til veranda mot nord.
*) Ett av soverommene holder ikke dagens krav til rom til varig opphold.
Boligen ligger i et rolig, sosialt og hyggelig borettslag. Borettslaget ligger ca 1,5 km fra Vestnes sentrum.
Velkommen på visning!
NB: Knappen for å vise hele beskrivelsen har kun en visuell effekt.
NB: Knappen for å vise hele beskrivelsen har kun en visuell effekt.
Salgsoppgaven beskriver vesentlig og lovpålagt informasjon om eiendommen
Se komplett salgsoppgaveNyttige lenker
Nærområdet
Privatmegleren Molde
Kun det beste på dine vegne
Annonseinformasjon
| FINN-kode | 408123202 |
|---|---|
| Sist endret | 01. nov. 2025 13:19 |
| Referanse | 45251090 |
Annonsene kan være mangelfulle i forhold til lovpålagt opplysningsplikt. Før bindende avtale inngås oppfordres interessenter til å innhente komplett informasjon fra meglerforetaket, selger eller utleier.






















