Bildegalleri

Boligen har alt på én flate og er i senere år vesentlig påkostet med blant annet tilbygg og utskiftninger innvendig.
Inaktiv
Ørmen
Oppgradert enebolig med alt på én flate og gjenstående arbeider. Vestvendt, solfylt terrasse. Landlige omgivelser.
Prisantydning2 450 000 kr
Nøkkelinfo
- Boligtype
- Enebolig
- Eieform
- Selveier
- Soverom
- 2
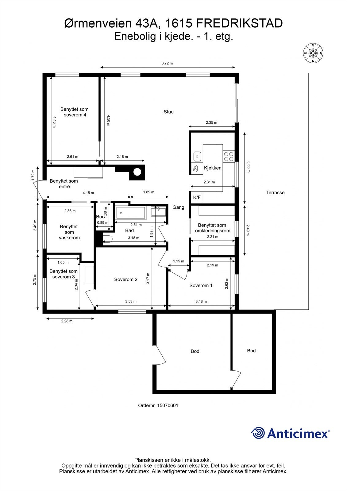
- Internt bruksareal
- 114 m² (BRA-i)
- Bruksareal
- 138 m²
- Eksternt bruksareal
- 24 m² (BRA-e)
- Balkong/Terrasse
- 42 m² (TBA)
- Etasje
- 1
- Byggeår
- 1973
- Energimerking
- Rom
- 5
- Tomteareal
- 1 834 m² (eiet)
Fasiliteter
Balkong/Terrasse
Barnevennlig
Garasje/P-plass
Golfbane
Hage
Kjæledyr tillatt
Ingen gjenboere
Offentlig vann/kloakk
Parkett
Rolig
Turterreng
Visning
For å delta på visning, ber vi om at du melder deg på. Da sikrer vi at du får nødvendig informasjon og at det er satt av tilstrekkelig med tid. Kontakt megler dersom annet tidspunkt ønskes. Husk å lese salgsoppgaven før visningen, så du stiller forberedt. NB. Visning utgår dersom det ikke er noen påmeldte.
Ønsker du kun å bli holdt orientert, kan du fra eiendommens hjemmeside få varsel om solgtpris, eller kontakte megler.
VisningspåmeldingOm boligen
Seksjonert og innholdsrik bolig med alle rom på én flate, i landlige omgivelser midt i Onsøy
- Betydelig påkostet i senere år med ombygging og utskiftninger
- Tilbygg oppført og flere rom bruksendret uten søknad eller godkjenning
- De fleste innvendige overflater skiftet ut
- Bad utvidet og renovert i 2018
- Elektrisk anlegg fornyet, inkl. nytt sikringsskap og gulvvarme i flere rom
- Egen biloppstillingsplass langs husveggen
- Bussholdeplasser få meter unna - stopp bl.a. for ekspressbuss til Oslo
- 10 min. med bil til sentrum og pendlervennlige Råde stasjon
NB: Knappen for å vise hele beskrivelsen har kun en visuell effekt.
NB: Knappen for å vise hele beskrivelsen har kun en visuell effekt.
Salgsoppgaven beskriver vesentlig og lovpålagt informasjon om eiendommen
Se komplett salgsoppgaveNyttige lenker
Nærområdet
Krogsveen Fredrikstad og Sarpsborg
Verdien av en god megler.
Annonseinformasjon
| FINN-kode | 408117391 |
|---|---|
| Sist endret | 06. apr. 2026 14:17 |
| Referanse | KR67.25143 |
Annonsene kan være mangelfulle i forhold til lovpålagt opplysningsplikt. Før bindende avtale inngås oppfordres interessenter til å innhente komplett informasjon fra meglerforetaket, selger eller utleier.



























