Bildegalleri

Silje Midtseim-Dammen ved EIE Løren har gleden av å ønske velkommen til Freserveien 10!
Solgt
Kværnerbyen
Lys & tiltalende 2-roms med stor hjørnebalkong | Hyggelig utsyn | God takhøyde | IN-ordning | Garasjeplass m/lader.
Prisantydning3 150 000 kr
Nøkkelinfo
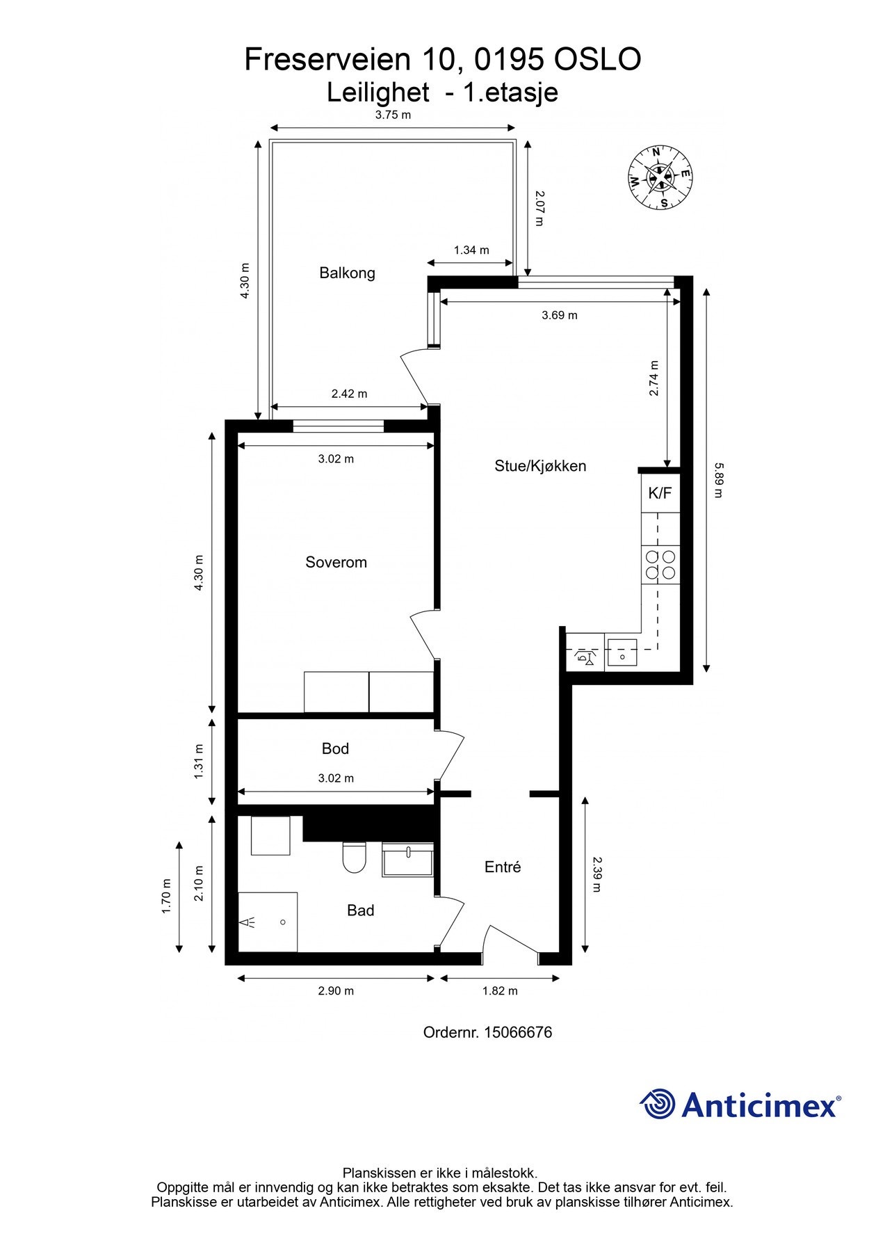
- Boligtype
- Leilighet
- Eieform
- Andel
- Soverom
- 1
- Internt bruksareal
- 54 m² (BRA-i)
- Bruksareal
- 59 m²
- Eksternt bruksareal
- 5 m² (BRA-e)
- Balkong/Terrasse
- 13 m² (TBA)
- Byggeår
- 2014
- Energimerking
- C - Lysegrønn
- Tomteareal
- 3 887 m² (eiet)
Fasiliteter
Balkong/Terrasse
Garasje/P-plass
Kabel-TV
Heis
Offentlig vann/kloakk
Parkett
Turterreng
Vaktmester-/vektertjeneste
Sentralt
Bredbåndstilknytning
Moderne
Rolig
Lademulighet
Balansert ventilasjon
Om boligen
Silje Midtseim-Dammen ved EIE Løren ønsker velkommen til Freserveien 10!
Dette er en pen & moderne 2-roms andelsleilighet med heisadkomst beliggende midt i Kværnerbyen. Boligen har romslig stue i åpen løsning til kjøkken, soverom med mye oppbevaring, flislagt bad fra 2018, innvendig bod og en lys entré. Videre har du innglasset balkong på 13 kvm med hyggelig utsyn mot vannspeilet.
Boligen kan skilte med kvaliteter som en fin planløsning, god takhøyde(2,62 m), balansert ventilasjon som gir et godt inneklima og god standard hvor du kan flytte rett inn!
Det medfølger en garasjeplass med lader i felles garasjeanlegg, samt en ekstern bod på 5 kvm. Varmtvann og oppvarming a-konto, samt TV/internett er inkludert i felleskostnader.
Fra Kværnerbyen er det gangavstand til idylliske Svartdalsparken med sitt unike turterreng, samt kort vei til sentrum med alt av fasiliteter og servicetilbud.
Ved innfrielse av fellesgjelden vil felleskostnadene gå ned til 4.151,-/mnd. p.t.
Dette er en pen & moderne 2-roms andelsleilighet med heisadkomst beliggende midt i Kværnerbyen. Boligen har romslig stue i åpen løsning til kjøkken, soverom med mye oppbevaring, flislagt bad fra 2018, innvendig bod og en lys entré. Videre har du innglasset balkong på 13 kvm med hyggelig utsyn mot vannspeilet.
Boligen kan skilte med kvaliteter som en fin planløsning, god takhøyde(2,62 m), balansert ventilasjon som gir et godt inneklima og god standard hvor du kan flytte rett inn!
Det medfølger en garasjeplass med lader i felles garasjeanlegg, samt en ekstern bod på 5 kvm. Varmtvann og oppvarming a-konto, samt TV/internett er inkludert i felleskostnader.
Fra Kværnerbyen er det gangavstand til idylliske Svartdalsparken med sitt unike turterreng, samt kort vei til sentrum med alt av fasiliteter og servicetilbud.
Ved innfrielse av fellesgjelden vil felleskostnadene gå ned til 4.151,-/mnd. p.t.
NB: Knappen for å vise hele beskrivelsen har kun en visuell effekt.
NB: Knappen for å vise hele beskrivelsen har kun en visuell effekt.
Salgsoppgaven beskriver vesentlig og lovpålagt informasjon om eiendommen
Se komplett salgsoppgaveNærområdet
EIE eiendomsmegling Løren
Annonsene kan være mangelfulle i forhold til lovpålagt opplysningsplikt. Før bindende avtale inngås oppfordres interessenter til å innhente komplett informasjon fra meglerforetaket, selger eller utleier.



















































