Bildegalleri

EiendomsMegler 1 v/ Mads Larsen har gleden av å ønske velkommen til Ladebekken 7 C - En meget lekker og lys 3-roms selveierleilighet, sentralt beliggende på attraktive Lilleby!
STILREN, LYS OG SVÆRT INNBYDENDE 3 ROMS - PARKERING M/LADER - SOLRIK BALKONG - PÅKOSTET STANDARD - SENTRALT - HEIS.
Nøkkelinfo
- Boligtype
- Leilighet
- Eieform
- Eier (Selveier)
- Soverom
- 2
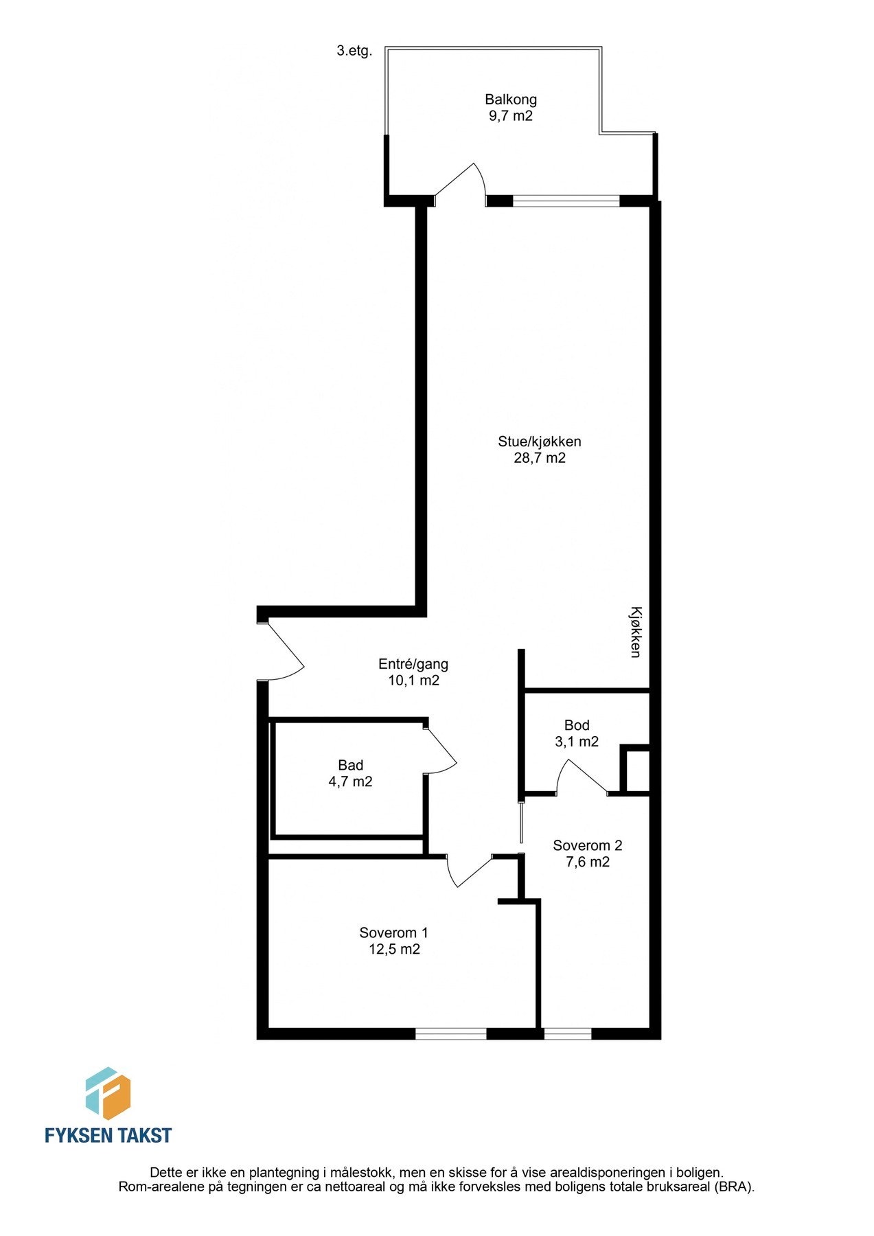
- Internt bruksareal
- 70 m² (BRA-i)
- Bruksareal
- 75 m²
- Eksternt bruksareal
- 5 m² (BRA-e)
- Balkong/Terrasse
- 10 m² (TBA)
- Etasje
- 3
- Byggeår
- 2017
- Energimerking
- C - Mørkegrønn
- Rom
- 3
- Tomteareal
- 1 416 m² (eiet)
Fasiliteter
Om boligen
Leiligheten ble oppført i 2017 og holder med det en ny og moderne standard, noe som også bekreftes gjennom tilstandsrapporten med TG 0/1 på samtlige punkter. Leiligheten har flere gode oppgraderinger og påkostede kvaliteter som er verdt å merke seg. Blant annet 1-stavs parkett på gulv, innebygde garderobeskap, spilevegg på soverom, helt ny veggflis og armatur på bad, heltre benkeplate på kjøkken, en praktisk innvendig bod, samt innfelte spotter på stue. Leiligheten er gjennomgående med mye lysinnslipp fra begge sider. Lilleby er for øvrig et meget attraktivt område med sin umiddelbare nærhet til "alt" du trenger i hverdagen og flotte grøntarealer mellom blokkene.
Verdt å merke seg:
- TG 0/1 på samtlige punkter.
- Egen 5 kvm stor bod i kjeller.
- Parkeringsplass m/ elbil lader i kjeller.
- Romslig balkong med ypperlige solforhold.
- Meget god beliggenhet i blokka og på Lilleby.
- Fjernvarme og balansert ventilasjon. Lave felleskostnader.
Velkommen til en trivelig visning!
Salgsoppgaven beskriver vesentlig og lovpålagt informasjon om eiendommen
Se komplett salgsoppgaveNyttige lenker
Nærområdet
EiendomsMegler 1 Lade og Lilleby
Prisstatistikk
Ladebekken 7 C
på annonsen
prisantydning per kvadratmeter
Prisfordeling
Pris per m² ligger 8 285 kr over snittet for leiligheter i Trondheim Øst.
Grafen viser antall leiligheter solgt i Trondheim Øst siste året fordelt på pris per m² - totalt 2 558 leiligheter
Antall boliger
Kvadratmeterpris tilsvarer prisantydning pluss fellesgjeld per kvadratmeter (p-rom eller BRA-i). Prisene i grafen er avrundet til nærmeste 1000 kr.
Annonseinformasjon
| FINN-kode | 408096964 |
|---|---|
| Sist endret | 25. sep. 2025 11:25 |
| Referanse | 36250089 |
Annonsene kan være mangelfulle i forhold til lovpålagt opplysningsplikt. Før bindende avtale inngås oppfordres interessenter til å innhente komplett informasjon fra meglerforetaket, selger eller utleier.
































