Bildegalleri

EIE eiendomsmegling ved Geir Einar Moen har gleden av å presentere Lillegårdsbakken 19! Foto: Hanne Larsen.
Inaktiv
NEDRE SINGSAKER / ØVRE BAKKLANDET
Innholdsrik horisontaldelt tomannsbolig med ettertraktet beliggenhet| God planløsning |Fin utsikt | Barnevennlig område
Prisantydning4 900 000 kr
Nøkkelinfo
- Boligtype
- Tomannsbolig
- Eieform
- Eier (Selveier)
- Soverom
- 2
- Internt bruksareal
- 77 m² (BRA-i)
- Bruksareal
- 77 m²
- Balkong/Terrasse
- 6 m² (TBA)
- Byggeår
- 1956
- Energimerking
- G - Oransje
- Rom
- 3
- Tomt
- Festet
- Festeavgift
- 4 250 kr
Fasiliteter
Barnevennlig
Balkong/Terrasse
Offentlig vann/kloakk
Peis/Ildsted
Utsikt
Sentralt
Rolig
Om boligen
EIE eiendomsmegling v/ Alexander Reitan har gleden av å presentere Lillegårdsbakken 19! En Innholdsrik horisontaldelt tomannsbolig med ettertraktet beliggenhet på Øvre Bakklandet.
Boligen ligger i et av byens mest attraktive områder, med nærhet til både Nidelva og Festningen. Omgivelsene preges av eldre trehusbebyggelse og brosteinskledde gater som tilfører en unik sjarm. Det er og kort vei til Solsiden og Midtbyen som byr på en rekke fasiliteter. Her bor man nært sentrum, men samtidig stille og tilbaketrukket.
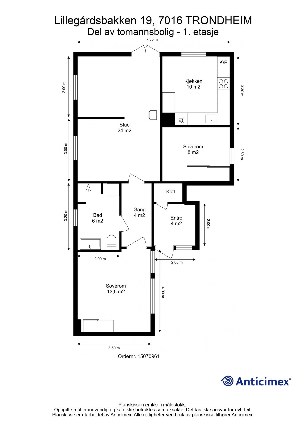
Boligen har en åpen Stue- og kjøkkenløsning, baderom, 2 soverom og 2 terrasser.
Merk deg dette
- Store vindusflater
- Utsikt mot Nidarosdomen
- Kort vei til Solsiden og Midtbyen
- Peisovn i stue
- Barnevennlig område med gangeavstand til barne/ ungdomsskole
Velkommen til visning!
Boligen ligger i et av byens mest attraktive områder, med nærhet til både Nidelva og Festningen. Omgivelsene preges av eldre trehusbebyggelse og brosteinskledde gater som tilfører en unik sjarm. Det er og kort vei til Solsiden og Midtbyen som byr på en rekke fasiliteter. Her bor man nært sentrum, men samtidig stille og tilbaketrukket.
Boligen har en åpen Stue- og kjøkkenløsning, baderom, 2 soverom og 2 terrasser.
Merk deg dette
- Store vindusflater
- Utsikt mot Nidarosdomen
- Kort vei til Solsiden og Midtbyen
- Peisovn i stue
- Barnevennlig område med gangeavstand til barne/ ungdomsskole
Velkommen til visning!
NB: Knappen for å vise hele beskrivelsen har kun en visuell effekt.
NB: Knappen for å vise hele beskrivelsen har kun en visuell effekt.
Salgsoppgaven beskriver vesentlig og lovpålagt informasjon om eiendommen
Se komplett salgsoppgaveNyttige lenker
Nærområdet
EIE eiendomsmegling Trondheim sentrum
Annonseinformasjon
| FINN-kode | 407959371 |
|---|---|
| Sist endret | 05. jan. 2026 12:36 |
| Referanse | 33251048 |
Annonsene kan være mangelfulle i forhold til lovpålagt opplysningsplikt. Før bindende avtale inngås oppfordres interessenter til å innhente komplett informasjon fra meglerforetaket, selger eller utleier.

































