Bildegalleri

EiendomsMegler1 ved Markus Tangvik har gleden av å presentere en fantastisk familiebolig i Jonsvannsveien 65 B. Foto: Krokstad&Nervik
Berg
STILFULL OG EKSKLUSIV ENEBOLIG FRA 2021 MED FANTASTISK UTSIKT OVER BYEN. Gode solforhold og fine uteplasser. Utleiedel.
Prisantydning18 900 000 kr
Nøkkelinfo
- Boligtype
- Enebolig
- Eieform
- Eier (Selveier)
- Soverom
- 5
- Internt bruksareal
- 287 m² (BRA-i)
- Bruksareal
- 287 m²
- Balkong/Terrasse
- 102 m² (TBA)
- Byggeår
- 2021
- Energimerking
- B - Oransje
- Rom
- 8
- Tomteareal
- 450 m² (eiet)
Fasiliteter
Barnevennlig
Balkong/Terrasse
Garasje/P-plass
Offentlig vann/kloakk
Parkett
Turterreng
Utsikt
Sentralt
Moderne
Rolig
Lademulighet
Balansert ventilasjon
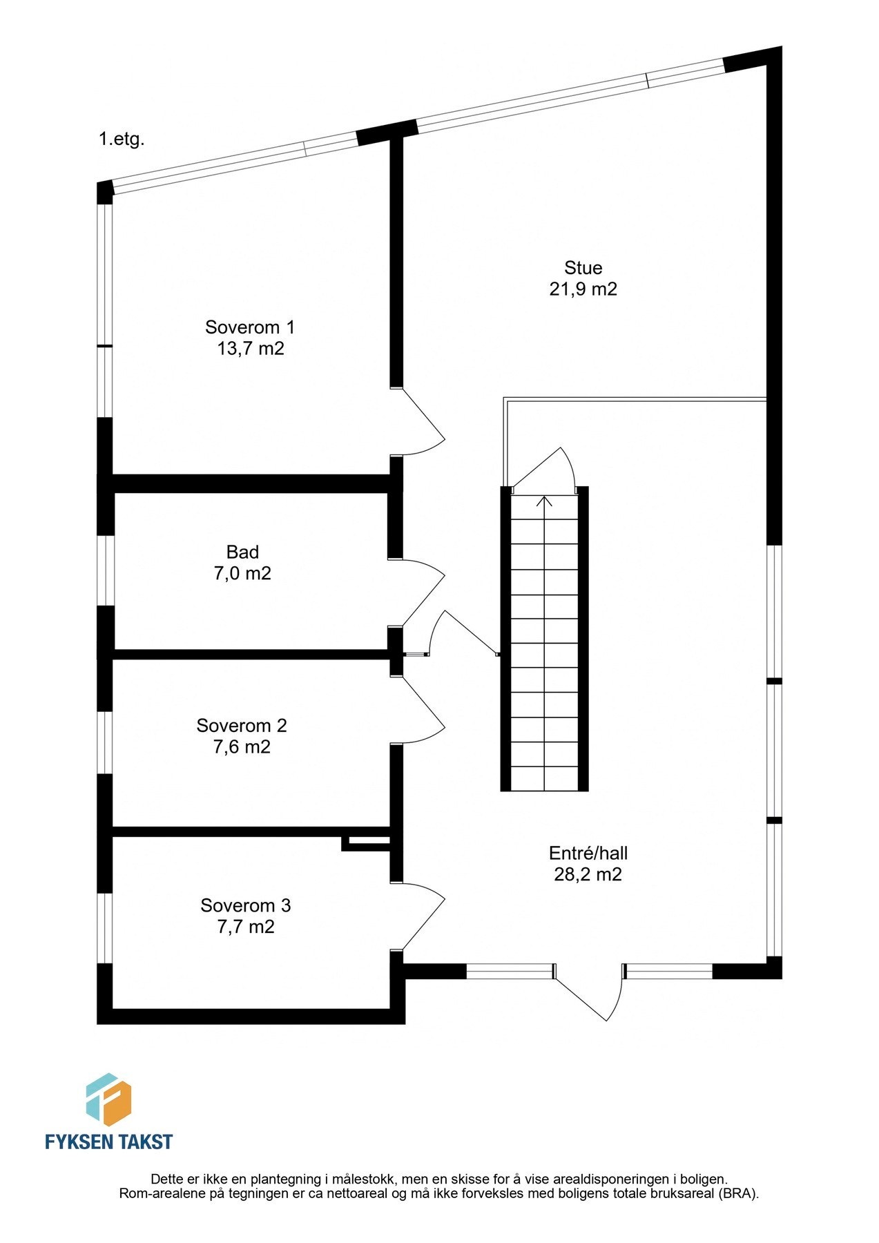
Om boligen
EiendomsMegler 1 ved Markus Tangvik har gleden av å presentere en stilfull enebolig med egen utleiedel i Jonsvannsveien 65 B på Berg. Boligen fra 2021 med fantastisk utsikt og nydelige solforhold. Her får du en moderne familiebolig med store uteplasser, flott hageområde, carport og eksklusive materialvalg.
Visningstidspunkt må avtales direkte med megler.
Kvaliteter:
- Særdeles stilig familiebolig fra 2021 med eksklusive materialvalg.
- Fantastisk takterrasse på 70 kvm med majestetisk utsikt over byen.
- 2 stk lekre baderom, eget toalettrom og praktisk vaskerom i hoveddel.
- God takhøyde og store vindusflater gir en luftig og god romfølelse.
- Flott utleiedel med egen inngang.
- Vannbåren gulvvarme.
- Godt med bodplass i kjelleretasje.
- 4 stk. soverom i hoveddel.
- Carport me elbil-lader.
Velkommen på visning!
Visningstidspunkt må avtales direkte med megler.
Kvaliteter:
- Særdeles stilig familiebolig fra 2021 med eksklusive materialvalg.
- Fantastisk takterrasse på 70 kvm med majestetisk utsikt over byen.
- 2 stk lekre baderom, eget toalettrom og praktisk vaskerom i hoveddel.
- God takhøyde og store vindusflater gir en luftig og god romfølelse.
- Flott utleiedel med egen inngang.
- Vannbåren gulvvarme.
- Godt med bodplass i kjelleretasje.
- 4 stk. soverom i hoveddel.
- Carport me elbil-lader.
Velkommen på visning!
NB: Knappen for å vise hele beskrivelsen har kun en visuell effekt.
NB: Knappen for å vise hele beskrivelsen har kun en visuell effekt.
Salgsoppgaven beskriver vesentlig og lovpålagt informasjon om eiendommen
Se komplett salgsoppgaveNærområdet
EiendomsMegler 1 Trondheim sentrum, Kongens gate
Vi loser deg trygt gjennom hele boligsalget
Annonseinformasjon
| FINN-kode | 407721835 |
|---|---|
| Sist endret | 21. jan. 2026 05:02 |
| Referanse | 32250104 |
Annonsene kan være mangelfulle i forhold til lovpålagt opplysningsplikt. Før bindende avtale inngås oppfordres interessenter til å innhente komplett informasjon fra meglerforetaket, selger eller utleier.

















































