Bildegalleri

Velkommen til visning i Lauritz Hervigs vei 120!
Solgt
Romslig 4-roms med moderniserings-behov | 2 Balkonger og panoramautsikt | Oppvarming og varmtvann inkl.
Prisantydning2 090 000 kr
Nøkkelinfo
- Boligtype
- Leilighet
- Eieform
- Andel
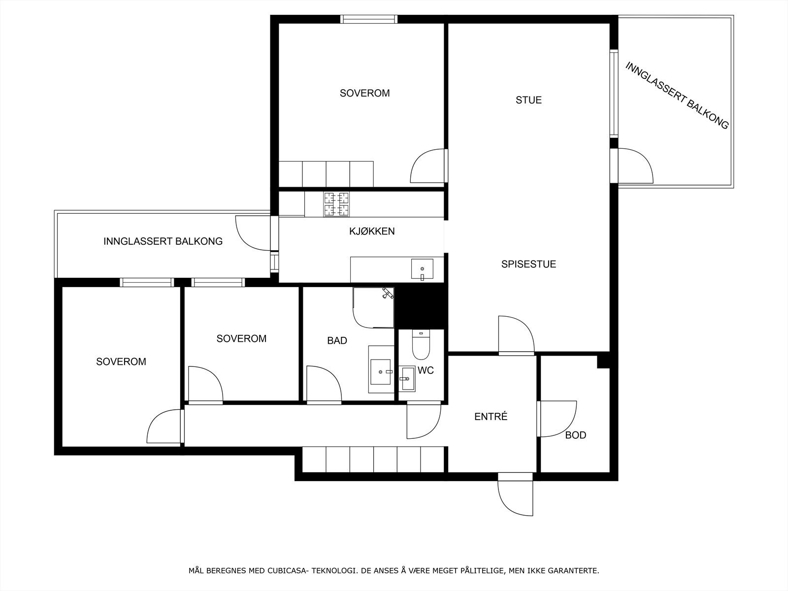
- Soverom
- 3
- Internt bruksareal
- 92 m² (BRA-i)
- Bruksareal
- 108 m²
- Eksternt bruksareal
- 3 m² (BRA-e)
- Innglasset balkong
- 13 m² (BRA-b)
- Etasje
- 10
- Byggeår
- 1970
- Rom
- 4
- Tomteareal
- 109 000 m² (eiet)
Fasiliteter
Balkong/Terrasse
Barnevennlig
Bredbåndstilknytning
Heis
Kjæledyr tillatt
Kabel-TV
Offentlig vann/kloakk
Rolig
Sentralt
Utsikt
Vaktmester-/vektertjeneste
Turterreng
Om boligen
Velkommen til Lauritz Hervigs vei 120 presentert av Alban Hasi V/Nordvik Eiendomsmegling.
Leiligheten ligger i 10. etasje og byr på en imponerende utsikt kombinert med svært gode solforhold. Med tre soverom og to innglassede balkonger, har du rikelig med plass til både hverdag og sosiale sammenkomster. Her bor du luftig og skjermet, samtidig som du har kort vei til natur, skoler og alle nødvendige fasiliteter.
Dette er en bolig med behov for modernisering og oppussing, her kan du selv utforme boligdrømmen!
Høydepunkter:
Leiligheten ligger i 10. etasje og byr på en imponerende utsikt kombinert med svært gode solforhold. Med tre soverom og to innglassede balkonger, har du rikelig med plass til både hverdag og sosiale sammenkomster. Her bor du luftig og skjermet, samtidig som du har kort vei til natur, skoler og alle nødvendige fasiliteter.
Dette er en bolig med behov for modernisering og oppussing, her kan du selv utforme boligdrømmen!
Høydepunkter:
- Panoramautsikt og flott beliggenhet i 10. etasje
- Skjermet og usjenert uten innsyn
- Boder i kjeller
- Svært gode solforhold
- Heis i bygget
- Meget god planløsning
- Oppgraderte radiatorer (2020) utført av borettslaget
NB: Knappen for å vise hele beskrivelsen har kun en visuell effekt.
NB: Knappen for å vise hele beskrivelsen har kun en visuell effekt.
Salgsoppgaven beskriver vesentlig og lovpålagt informasjon om eiendommen
Se komplett salgsoppgaveNyttige lenker
Nærområdet
Nordvik Grünerløkka
Annonseinformasjon
| FINN-kode | 407700415 |
|---|---|
| Sist endret | 03. feb. 2026 17:44 |
| Referanse | 64-0089/25 |
Annonsene kan være mangelfulle i forhold til lovpålagt opplysningsplikt. Før bindende avtale inngås oppfordres interessenter til å innhente komplett informasjon fra meglerforetaket, selger eller utleier.

























