Bildegalleri

Eiendomsmegler Norge v/ Johan R. Elieson har gleden av å ønske velkommen til visning av Østre Strandgate 51!
Kvadraturen
Flott 3-roms selveierleilighet med nydelig sjøutsikt, heis, balkong og garasjeplass i kjeller. Renovert i 2019.
Prisantydning6 490 000 kr
Nøkkelinfo
- Boligtype
- Leilighet
- Eieform
- Eier (Selveier)
- Soverom
- 2
- Internt bruksareal
- 108 m² (BRA-i)
- Bruksareal
- 112 m²
- Eksternt bruksareal
- 4 m² (BRA-e)
- Balkong/Terrasse
- 11 m² (TBA)
- Etasje
- 3
- Byggeår
- 1980
- Energimerking
- F - Rød
- Rom
- 3
- Tomteareal
- 2 015 m² (eiet)
Fasiliteter
Balkong/Terrasse
Barnevennlig
Garasje/P-plass
Heis
Sentralt
Utsikt
Vaktmester-/vektertjeneste
Turterreng
Lademulighet
Om boligen
Velkommen til visning av Østre Strandgate 51!
Her har vi gleden av å presentere en flott, nyere (2019) oppusset leilighet med en attraktiv beliggenhet i Østre Strandgate.
Fra leiligheten er det en flott utsikt til Christianholm småbåthavn, Bystranda og sjøen.
Gangavstand til alle byens fasiliteter.
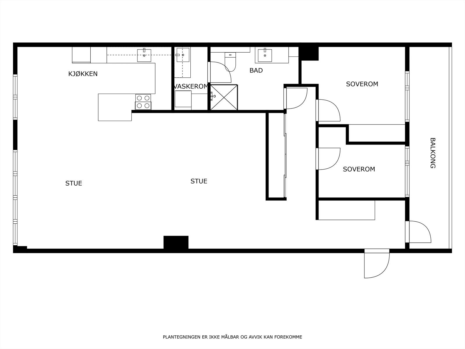
Leiligheten ligger i byggets 3. etasje og inneholder: Gang, romslig stue/ kjøkken, to soverom, baderom og vaskerom. Leiligheten ble reovert i 2019.
Det er utgang til terrasse (mot bakgård) med gode solforhold. Foldevinduer som kan åpnes, og skyves til siden i stuen.
Fast parkeringsplass i garasjekjeller med heis opp til leilighetens etasje. El.lader montert på parkeringsplassen.
Det medfølger en bod i kjeller, samt et skap i fryserom i 1. etasje.
Velkommen til visning!
Her har vi gleden av å presentere en flott, nyere (2019) oppusset leilighet med en attraktiv beliggenhet i Østre Strandgate.
Fra leiligheten er det en flott utsikt til Christianholm småbåthavn, Bystranda og sjøen.
Gangavstand til alle byens fasiliteter.
Leiligheten ligger i byggets 3. etasje og inneholder: Gang, romslig stue/ kjøkken, to soverom, baderom og vaskerom. Leiligheten ble reovert i 2019.
Det er utgang til terrasse (mot bakgård) med gode solforhold. Foldevinduer som kan åpnes, og skyves til siden i stuen.
Fast parkeringsplass i garasjekjeller med heis opp til leilighetens etasje. El.lader montert på parkeringsplassen.
Det medfølger en bod i kjeller, samt et skap i fryserom i 1. etasje.
Velkommen til visning!
NB: Knappen for å vise hele beskrivelsen har kun en visuell effekt.
NB: Knappen for å vise hele beskrivelsen har kun en visuell effekt.
Salgsoppgaven beskriver vesentlig og lovpålagt informasjon om eiendommen
Se komplett salgsoppgaveNyttige lenker
Nærområdet
Eiendomsmegler Norge Kristiansand
Best der du bor
Annonseinformasjon
| FINN-kode | 407665934 |
|---|---|
| Sist endret | 06. jan. 2026 09:12 |
| Referanse | 50250113 |
Annonsene kan være mangelfulle i forhold til lovpålagt opplysningsplikt. Før bindende avtale inngås oppfordres interessenter til å innhente komplett informasjon fra meglerforetaket, selger eller utleier.
































