Bildegalleri

Leilighet ligger i 3 etasje med vestvendt balkong.
Inaktiv
Horten Sentrum
Arealeffektiv 1-roms selveier med heis i Horten sentrum - Vektergården
Prisantydning1 950 000 kr
Nøkkelinfo
- Boligtype
- Leilighet
- Eieform
- Eier (Selveier)
- Soverom
- 0
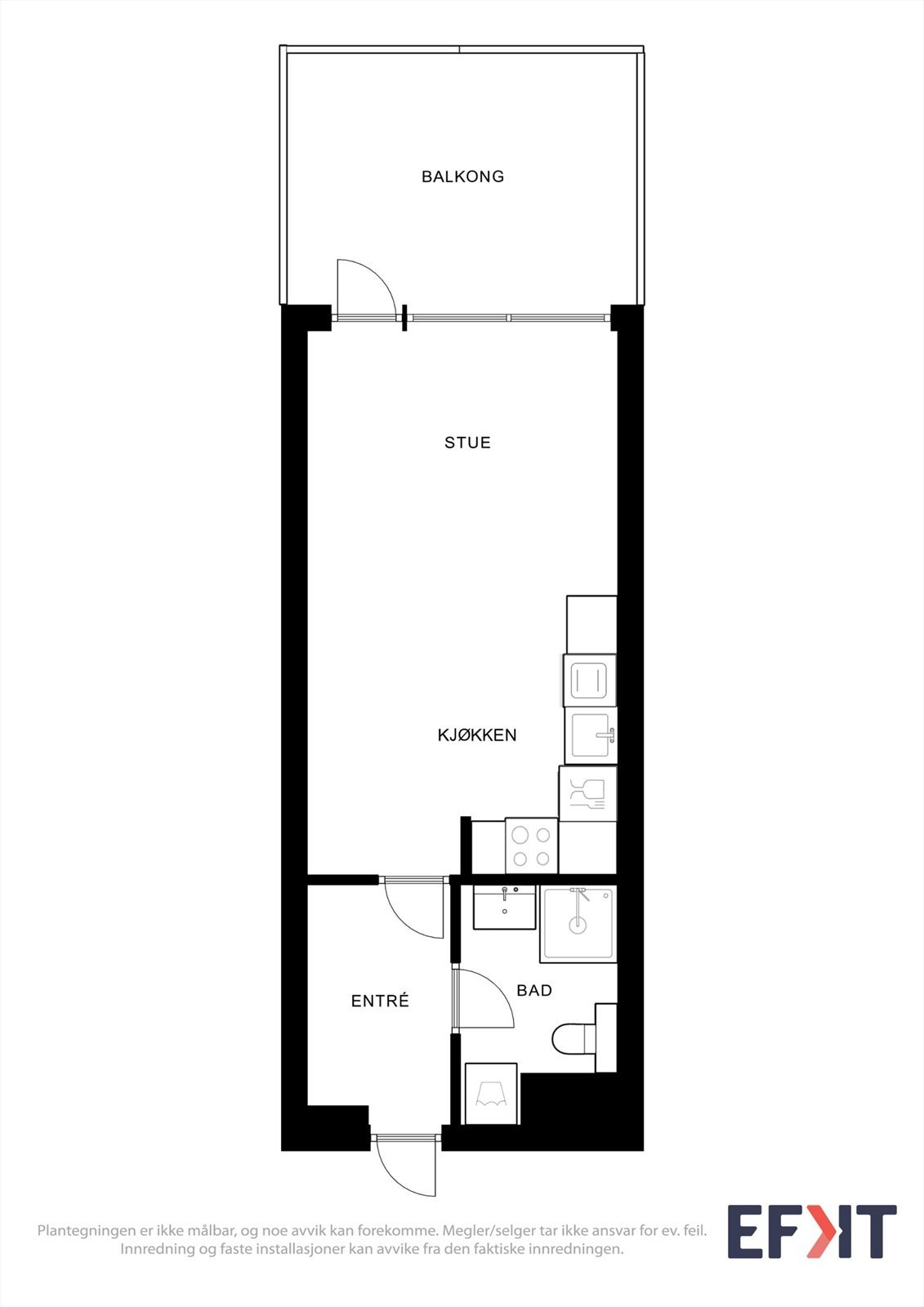
- Internt bruksareal
- 29 m² (BRA-i)
- Bruksareal
- 34 m²
- Eksternt bruksareal
- 5 m² (BRA-e)
- Balkong/Terrasse
- 9 m² (TBA)
- Etasje
- 3
- Byggeår
- 2019
- Energimerking
- B - Mørkegrønn
- Rom
- 1
- Tomteareal
- 5 817 m² (eiet)
Fasiliteter
Heis
Kjæledyr tillatt
Offentlig vann/kloakk
Parkett
Sentralt
Balansert ventilasjon
Visning
Dersom du planlegger å delta på visning bes du om å melde deg på visningen i forkant til megler. Trykk på påmeldingsknappen i annonsen eller kontakt megler. Frist for påmelding er visningsdagen innen kl. 12.00. Visninger uten påmelding, vil ikke bli avholdt.
VisningspåmeldingOm boligen
Leilighet med heis, og sentrum rett utenfor døra.
Leiligheten ligger i 3. etasje, i samme plan som sameiets flotte bakgård med sjøutsikt, lekeapparater og plasser å sette seg ned med en kaffekopp.
Inneholder gang, stue med utgang til egen overbygde veranda. Åpen stue og kjøkkenløsning hvor kjøkkenkrok er med integrert induksjonstopp, stekeovn, mikro, oppvaskmaskin og kjøl/frys som medfølger. Pent fliselagt bad/wc med dusjhjørne med glassdører, servant i innredning med skuffer, speil, vegghengt wc og opplegg for vaskemaskin.
Leiligheten ligger i 3. etasje, i samme plan som sameiets flotte bakgård med sjøutsikt, lekeapparater og plasser å sette seg ned med en kaffekopp.
Inneholder gang, stue med utgang til egen overbygde veranda. Åpen stue og kjøkkenløsning hvor kjøkkenkrok er med integrert induksjonstopp, stekeovn, mikro, oppvaskmaskin og kjøl/frys som medfølger. Pent fliselagt bad/wc med dusjhjørne med glassdører, servant i innredning med skuffer, speil, vegghengt wc og opplegg for vaskemaskin.
NB: Knappen for å vise hele beskrivelsen har kun en visuell effekt.
NB: Knappen for å vise hele beskrivelsen har kun en visuell effekt.
Salgsoppgaven beskriver vesentlig og lovpålagt informasjon om eiendommen
Se komplett salgsoppgaveNyttige lenker
Nærområdet
EiendomsMegler 1 Horten
et foretak i SpareBank 1 Sør-Norge konsernet
Annonsene kan være mangelfulle i forhold til lovpålagt opplysningsplikt. Før bindende avtale inngås oppfordres interessenter til å innhente komplett informasjon fra meglerforetaket, selger eller utleier.
















